| Titel: | Polytechnische Schau. |
| Fundstelle: | Band 335, Jahrgang 1920, S. 257 |
| Download: | XML |
Polytechnische
Schau.
(Nachdruck der Originalberichte – auch im Auszuge
– nur mit Quellenangabe gestattet.)
Polytechnische Schau.
Werkstattstechnik.
Torsiograph, Vibrograph und Leistungsmesser. –
Indikatoren-Leistungszähler. Nach Entwürfen von Dr. J. Geiger, Augsburg, baut die Firma Lehmann & Michels, Hamburg, drei im Aeußern
sich sehr ähnlich sehende, dagegen verschiedenen Zwecken dienende Meßgeräte.
Textabbildung Bd. 335, S. 257
Abb. 1.
Das erste, der Torsiograph (Abb.
1) dient zur genauen Bestimmung des Ungleichförmigkeitsgrades und der
Winkelabweichung von Maschinen, ferner zur Ermittlung der Drehbeanspruchung von
Wellen und zur Bestimmung der sogenannten kritischen Drehzahlen nach Lage und
Stärke.
Textabbildung Bd. 335, S. 257
Abb. 2.
Häufig kommt es vor, daß Wellen ohne irgend eine erkennbare Ursache brechen oder warm
laufen, daß Zahntriebe sich auffallend rasch abnutzen, daß das Licht von
angetriebenen Dynamos zuckt oder daß sonstige angetriebene Maschinen oder Seiltriebe
und dergl. unruhig laufen. In allen diesen Fällen gelingt es durch den
Torsiographen, rasch und sicher die Ursache dieser Störungen festzustellen. Eine
ganz leichte von der zu untersuchenden Welle durch ein unelastisches Band
angetriebene und daher genau so ungleichmäßig wie diese Welle rotierende Scheibe ist
elastisch mit einem schweren Schwungrad gekuppelt. Bei Verwendung einer Feder von
geeigneter Elastizität rotiert das Schwungrad gleichmäßig. Die zwischen
Riemenscheibe und Schwungscheibe entstehenden Relativverdrehungen, die unmittelbar
die Winkelabweichung der zu untersuchenden Welle dar stellen, werden durch zwei
Winkelhebel zunächst in radiale und in achsiale, im Achsenmittel der hohlen Welle
erfolgende verwandelt, durch eine Nadel aus dem rotierenden Raume in den ruhenden
übergeleitet und auf einem fortlaufenden Papierbande registriert. Der Apparat
liefert auch bei den höchsten Drehzahlen, z.B. bei Flugmotoren mit 2000 Umdrehungen
in der Minute noch genaue und deutliche Diagramme. Einige Proben zeigt Abb. 2.
Denkt man sich beim Torsiographen die Riemenscheibe festgestellt und die
Schwungscheibe durch eine zur Drehachse exzentrisch liegende träge Masse ersetzt, so
entsteht der Vibrograph (Abb.
3), der zur Untersuchung der Erschütterungen auf Schiffen, Fahrzeugen,
Motoren und dergl. dient.
Wie aus der Entstehungsweise und aus der Abbildung hervorgeht, lassen sich mit ihm
sowohl Horizontal- als auch Vertikal- oder irgendwie zur Horizontalen geneigte
Erschütterungen registrieren. Es ist nur nötig, die träge Masse so einzustellen, daß
sie, falls Horizontalschwingungen zu messen sind, ganz unten und bei
Vertikalschwingungen in gleicher Höhe mit der Achse sich befindet. Es lassen sich
mit dem Vibrographen sowohl langsame als auch besonders sehr schnelle
Erschütterungen wie z.B. an Motoren damit messen. Das Gerät wiegt nur 6 kg, so daß
es sich überall auch an Decken, Wänden auf Zylinderdeckeln usw. anbringen läßt.
Textabbildung Bd. 335, S. 257
Abb. 3.
Wenn durch eine Welle eine bestimmte Leistung übertragen wird, so verdrehen sich zwei
in einem bestimmten Abstand von einander befindliche Wellenquerschnitte um ein der
übertragenen Leistung proportionales Maß. Diese im rotierenden Raume erfolgende
Verdrehung wird bei dem Leistungsmesser durch geeignete
Mechanismen an eine bequem zugängliche Stelle geleitet, dort wie beim Torsiographen
und Vibrographen durch zwei Winkelhebel zunächst in eine radiale und dann in eine
achsiale im Achsenmittel der Hohlwelle des Apparates erfolgende verwändet und
entweder in genau derselben
Weise wie beim Torsiographen registriert oder auf einer Skala sichtbar gemacht.
Die Anordnung kann auch so getroffen werden, daß das mittlere Drehmoment –
unbeeinflußt von den während einer Umdrehung erfolgenden Schwankungen – ablesbar
ist. Der Apparat arbeitet dank seiner einfachen Konstruktion auch bei hohen
Drehzahlen und bei rasch und stark wechselnden Drehmomenten genau. Ein und dasselbe
Gerät eignet sich sowohl zur Messung sehr großer als auch sehr kleiner
Leistungen.
Textabbildung Bd. 335, S. 258
Abb. 4.
Textabbildung Bd. 335, S. 258
Abb. 5.
Bei dieser Gelegenheit sei noch auf einige ebenfalls wichtige und bewährte Apparate
für Betriebskontrolle hingewiesen, wie sie als „Lehmann-Außenfeder-Indikatoren mit Schutzhülse für das Schreibgestänge und
Präzisions-Kugel-Drucklager
mit und ohne Leistungszähler (Abb. 4, 5) nach Prof. Dr. Gümbel
auf den Markt gebracht werden. Versuche unter den schwierigsten Verhältnissen haben
gezeigt, daß die Arbeitsweise der Apparate als vollkommen einwandfreiangesehen
werden darf, worüber zahlreiche zustimmende Urteile hervorragender Fachautoritäten
vorliegen. Diese Indikatoren werden für Dampfmaschinen, Gasmaschinen, Kompressoren,
Dieselmotoren, Gebläse, Flugmooren usw. geliefert, sie können mit normaler Trommel
für Einzeldiagramme wie auch mit Trommel zur Aufnahme fortlaufender Diagramme
bezogen werden. Die Verwendung der Prof. Dr. Gümbelschen
Leistungszähler (für Kontrollversuche verbunden mit normalem Schreibindikator und
als Leistungszähler allein in besonderer Ausführung für Dauerversuche), ermöglicht
es, bei jedem Hub der Maschine die Diagramme aufzunehmen und sofort zu
planimetrieren, so daß die ganze Leistung ohne jede Mühe an einem Zählwerk abgelesen
werden kann, bzw. ein Wert, der nach einer einfachen Multiplikation sofort die
Leistung des Kraftmaschinenzylinders festzustellen gestattet. Diese Apparate wurden
auf Grund jahrelanger Versuche durchgeführt.
Kataloge und Sonderdruckschriften stellt die Firma Lehmann & Michels
Interessenten gern zur Verfügung.
Ein neuer Schlagwetteranzeiger ist von Professor Fleißner gebaut worden. Auch er beruht, ebenso wie die
Schlagwetterpfeife von Haber und Leiser, auf der Erzeugung eines Tones (Journal für Gasbeleuchtung und
Wasserversorgung, 16. Okt. 1920), insbesondere darauf, daß sich in einem langen,
engen Rohre mit einer Azetylenflamme eine sogen. „singende Flamme“
hervorrufen läßt.
Betriebsblätter. Der Ausschuß für wirtschaftliche
Fertigung beginnt mit der Herausgabe von „Betriebsblättern“, die in kurzen
Leitsätzen auf normalblattähnlichen Tafeln die Gesichtspunkte für bestimmte Arbeiten
der Praxis zusammenstellen und sich unmittelbar an die ausübenden Arbeiter richten.
Zurzeit sind die Entwürfe für folgende Blätter erschienen: „Behandlung der
Werkzeugmaschinen“, „Behandlung der Kugellager, der Einbau“,
„Behandlung der Kugellager, die Wartung“, „Gewindeschneiden auf der
Drehbank“. Kritik und Mitarbeit der gesamten Industrie ist sehr erwünscht.
(Betrieb 1920, Heft 13 u. 14.)
Abkürzung der Arbeitszeit durch elektrische Regelmotoren.
Der Einzelantrieb von Werkzeugmaschinen durch Regelmotoren gestattet die sehr
bequeme Einstellung jeder beliebigen Drehzahl der Maschine, also auch ihre Anpassung
an die jeweils größte zulässige Schnittgeschwindigkeit, die bei abgestuften
Drehzahlreihen der mechanisch angetriebenen Maschinen nur in wenigen Fällen erreicht
werden kann. Die Minderleistung der Maschine ist bei der Stufenregelung um so
größer, je größer der Sprung der Drehzahlen ist. Durch den Regelmotor wird die
grobgestufte „Drehzahltreppe“ sehr feinstufig, nähert sich also der
„Drehzahlrampe“. Eine noch bessere Ausnutzung der Werkzeugmaschinen wird
ermöglicht, wenn man außer dem Hauptantrieb auch noch den Vorschub durch einen
besonderen Regelmotor erfolgen läßt. Die Maschine kann dann leicht durch
entsprechende Vergrößerung des Vorschubes auf die mögliche Höchstleistung
eingestellt und diese durch ein Amperemeter bequem nachgeprüft werden. Die
Schnittgeschwindigkeit und der Vorschub können ohne Unterbrechung der Arbeit den
jeweils sich ändernden Verhältnissen angepaßt werden, z.B. beim Anschnitt, Auslauf
oder an harten Stellen verringert, an Aussparungen oder an unvorhergesehen sich gut
bearbeitenden Stellen vergrößert werden. Die Umsteuerung, die Einstell- und
sonstigen Manöverierbewegungen beim Zurichten, Aufspannen, Zentrieren, Rücklauf usw.
sind durch Regelmotoren leichter zu erreichen als durch mechanischen Antrieb. Die
Antriebsmechanismen (Räderkästen, Uebertragungswellen, Zahnräder usw.) bestehen beim
Antrieb durch Regelmotoren aus weniger Teilen, haben demnach einen besseren
mechanischen Wirkungsgrad und sind billiger in der Anschaffung.
Bei allgemeiner Einführung des Einzelantriebes durch Regelmotoren können bedeutende
Ersparnisse an Gebäudekosten erzielt werden, weil die Wände und Decken nicht für die
Beanspruchung durch die Transmission zu bemessen sind, also leichter gehalten werden
können. Die Aufstellung der Maschinen im Raume ist bedeutend freizügiger, die
Werkstatt wird durch das Fehlen der Riemen und des durch sie aufgewirbelten Staubes
heller und gesünder, die Unfallgefahr sinkt.
Die beste Stromart für verlustlose Regelung ist Gleichstrom, die wirtschaftlich
günstigste Spannung 220 Volt. Auch für Pressen, Stanzen, Scheren, Hämmer ist
Gleichstrom besser, weil der Antrieb während des eigentlichen Arbeitshubes
nachgiebig sein soll, damit die im Schwungrad aufgespeicherte Arbeit ausgenutzt
werden kann. Diese Nachgiebigkeit ist nur bei Gleichstrom ohne Verlust möglich.
Gleichstrom ist ohnehin für Aufspannplatten, Lastmagnete notwendig, für
Hebezeuge vorzuziehen, so daß Drehstrom nur für solche Motoren günstig erscheint,
die durchaus gleich schnell laufen sollen. (Betrieb 1920, Heft 14.)
Genauigkeit von Rachenlehren. Beim Messen mit festen
Rachenlehren wird diese stets etwas aufgeweitet, weil auch beim leichtesten
Darüberschieben immer noch ein gewisses Ueberzwängen vorgenommen wird, wenn die
Lehre nicht schlottern soll. Je straffer die Lehre über das zu messende Stück geht,
um so mehr wird sie aufgeweitet. Die Größe der Aufweitung wurde durch Versuche von
Prof. Dr. Berndt an verschiedenen Rachenlehren von 30 bis
95 mm Maulweite je nach deren mehr oder weniger kräftigen Bauart zu 1,25 bis 2,3 μ
für 1 kg Meßdruck bestimmt. Die bei sachgemäßer Behandlung im Betrieb vorkommenden
Meßdrücke sind so gering, daß eine dauernde Aufweitung nicht eintreten kann. In
verschiedenen Werkstätten wurden nach ein und derselben Lehre mehrere Scheiben
hergestellt. Beim genauen Nachmessen der Scheiben auf der Feinmeßmaschine stellte
sich heraus, daß die Scheiben etwas unrund und auch verschieden im Durchmesser
waren. Daraus ist zu schließen, daß die einzelnen Arbeiter mit individuell
verschiedenem Meßdruck arbeiten, und daß der Meßdruck und damit die Aufweitung
wesentlich von der Glätte und der Schmierung der zu messenden Fläche abhängt. Glatte
geölte Flächen lassen ein wesentlich größeres Uebermaß zu als rauhe trockene
Flächen, weil die Lehre über erstere leichter überzuzwängen ist. Unter
Berücksichtigung dieser Unterschiede ist zu schließen, daß Rachenlehren nur mit 1/100 mm
Genauigkeit messen können. Für größere Genauigkeiten müssen Lehren mit beweglichen
Meßbacken, also mit genau einstellbarem gleichbleibenden Meßdruck verwendet werden.
(Betrieb 1920, Heft 14.)
Neuzeitliche Betriebskontrolle. Anstatt des in D. p. J.
1920, Heft 11 beschriebenen Apparates zur Ueberwachung der Arbeitsleistung einer
Maschine kann, falls elektrischer Einzelantrieb vorliegt, ein selbstschreibendes
Amperemeter verwendet werden, welches dieselben Kurven aufzeichnet wie die in der
genannten Notiz Abb. 3 und 4 dargestellten. Aus den Kurven kann die richtige Ausnutzung der
Werkzeugmaschine nachgeprüft werden. Betrieb 1920, Heft 14.)
Ernst Preger.
Maschinentechnik.
Neue englische Lokomotiven. Die Midland-Bahn hat vor
kurzem eine 5/5 gekuppelte Vierzylinder-Heißdampflokomotive in den Dienst gestellt,
die die erste in England gebaute E-Lokomotive ist. Sie ist für Steigungen 1 : 37,5
bestimmt und ersetzt je zwei der vorhandenen 3/3 gekuppelten Güterzug Lokomotiven.
Der Kessel ist mit einer Belpaire-Feuerbüchse und mit einem Ueberhitzer ausgerüstet,
der 27 Elemente umfaßt. Der Kessel ist für 14 at gebaut, die vier Sicherheitsventile
von 80 mm ⌀ sind dagegen auf 12,6 at eingestellt Es sind zwei
Heißwasser-Dampfstrahlpumpen vorhanden. Das Tenderwasser wird durch den Abdampf der
Maschine vorgewärmt. Nach der Zeitschrift „The Locomotive Magazine“, April
1920 haben die Zylinder 425 mm ⌀ und 710 mm Hub. Die vier Zylinder treiben die
mittlere Achse an und haben gegen die Wagerechte eine Neigung 1 : 7. Je ein innerer
und ein äußerer Dampfzylinder bilden ein Gußstück und haben einen gemeinsamen
Schieberkasten. Der Kolbenschieberdurchmesser beträgt 255 mm. Es ist eine
Heusingersteuerung angeordnet. Die Umsteuerung geschieht mittels Dampfkraft. Der
Raddurchmesser beträgt 1410 mm. Die Räder werden einseitig von vorn gebremst. Der
Rost hat 2,9, die Heizfläche der Feuerbüchse 14,6, die der Rohre 144,3 und die
des Ueberhitzers 41,1 m2, so daß die gesamte
Heizfläche 200 m2 ist. Das Dienstgewicht ist 73,1
t. Da die Lokomotive nur zum Schiebedienst auf kurzer Strecke verwendet wird, so ist
es nicht notwendig, große Wasser- und Kohlen Vorräte mitzunehmen. Der Wasservorrat
ist dementsprechend 8 m3, der Kohlenvorrat 4
t.
Nach Mitteilungen der Zeitschrift „The Engineer“ vom 8. Mai 1920 hat die
englische Nordbahn neue 1 C-Drillingslokomotiven in den Dienst gestellt, die einige
bemerkenswerte bauliche Neuerungen aufweisen. Die Zylinder haben 470 mm ⌀ und 660 mm
Hub. Die inneren Schieber werden durch eine Verbundsteuerung angetrieben. Die
wagerechten Uebertragungshebel sind dabei nach vorn gelegt. Die Drehpunkte sind mit
Rollenlagern versehen. Auch hier ist die Heusingersteuerung verwendet. Der
Dampfdruck beträgt 12,6 at. Die Rostfläche hat 2,6, die Feuerbüchse 17, die
Kesselheizfläche 177 und die Ueberhitzerheizfläche 177 m2. Der mit Schmidt-Ueberhitzer versehene Kessel hat 1830 mm inneren
Durchmesser und ist nur 3650 mm lang. Die Feuerbüchse ist aus Kupfer, Treib- und
Kuppelstangen aus Chromnickelstahl hergestellt. Der Achsdruck der drei Treibachsen
beträgt 65 t. Das Dienstgewicht ist 77 t. Die Lokomotive besitzt eine große
Schleppfähigkeit, kann aber auch als Personenzuglokomotive verwendet werden. Sie hat
bereits Schnellzüge mit Geschwindigkeiten von 100 km/st befördert. Die Treibräder
haben 1730 mm ⌀.
W.
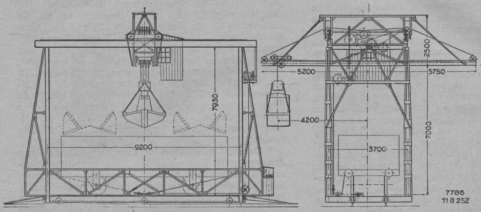
Demag-Umladekran für Verschiebebahnhöfe undAnschlußgleis. Eine vor einigen Jahren angestellte
Untersuchung hat ergeben, daß ein Güterwagen der deutschen Eisenbahnen in 24 Stunden
durchschnittlich nur drei Stunden rollt. Die übrige Zeit entfällt auf das Warten
beim Laden und Entladen. Durch Erhebung eines wesentlich höheren Standgeldes
versucht nun das Reichsverkehrsamt die Wartefristen zu verkürzen, um so mehr, als
sich durch die Abgabe von Eisenbahnwagen an unsere Gegner und durch die schlechte
Beschaffenheit der uns verbliebenen Wagen der gebrauchsfähige Bestand an rollendem
Material stark vermindert hat.
Zur Beschleunigung des Umladens kommt bei den heutigen hohen Löhnen wohl nur eine
gute Verladevorrichtung in Frage, bei der die Handarbeit möglichst ganz
ausgeschaltet wird. Eine derartige Vorrichtung soll hier kurz beschrieben werden. Es
handelt sich um den in der Abbildung dargestellten elektrisch angetriebenen
Umladekran. Wie aus der Stirnansicht zu ersehen ist, fährt er auf demselben Gleis,
auf dem die zu entladenden Wagen verkehren, so daß keine besonderen Laufschienen
notwendig sind. Dampfkrane würden ein zweites Gleis erfordern, da ein auf demselben
Gleis fahrender Kran den Verschiebedienst sehr behindern würde. Deswegen würde ein
solcher Kran, wo ein zweites Gleis nicht angelegt werden kann, nicht in Frage
kommen.
Der Umladekran besteht aus einer fahrbaren Bühne mit einem aufgebauten rahmenartigen
Gerüst, auf dem eine Laufkatze fahrbar angeordnet ist. Das Rahmengerüst ist so
geformt, daß Eisenbahnwagen sowohl auf dem eigenen Gleis als auch auf Nebengleisen
ungehindert verkehren können. Eine eingebaute Winde zieht die zu entladenden Wagen
über eine Auslaufzunge auf die Bühne. Durch das Gewicht des Wagens wird so die
Standfestigkeit des Kranes erhöht. Die Laufkatze bestreicht die ganze Ladefläche des
im Umladekrane stehenden Wagens, so daß ein Wagen ohne nochmaliges Verschieben
vollständig entleert werden kann.
Die Katze ist sowohl für Selbstgreiferbetrieb, siehe Abbildung, zum Verladen von
Kohle, Erz oder andere Massengüter, als auch für Stückgutbetrieb eingerichtet und
hat eine Tragfähigkeit von etwa 3000 kg. Bei einem Greiferinhalt von 1¼ m3 und den gebräuchlichen Geschwindigkeiten
läßt sich eine stündliche Leistung von 10 bis 15000 kg erzielen. Für das
Verschieben des Kranes ist kein besonderer Antrieb vorgesehen, da entweder eine etwa
vorhandene Verschiebelokomotive oder die in den Kran eingebaute Rangierwinde dazu
verwandt werden kann. Diese Winde hat bei einer Zugkraft von 2000 kg eine
Seilgeschwindigkeit von 14 m in der Minute. Der Führerstand ist so angeordnet, daß
der Führer das Arbeitsfeld des Greifers übersehen kann.
Textabbildung Bd. 335, S. 260
Diese Umladekrane, die von der Demag, Duisburg hergestellt
werden, können sowohl zum Laden oder Entladen von Eisenbahnwagen in Fuhrwerke oder
auf dem Nebengleis stehende Eisenbahnwagen verwandt werden. Die Bedienung ist
einfach und erfordert keinen besonders geschulten Führer. Die angeführte Leistung
von 10 bis 15000 kg in der Stunde beweist zur Genüge, daß der Umladekran das
geeignetste Hilfsmittel für Verschiebebahnhöfe und Anschlußgleise ist und dazu
beitragen kann, den Wagenumlauf erheblich zu beschleunigen.
Wärmekraftmaschinen.
Gasdampf-Maschinenanlage von Ford-Motor Co. In der
elektrischen Kraftanlage der Ford-Motor Co. in Highland
Park ist eine Zwillingsmaschine aufgestellt, von der eine Seite aus zwei
doppeltwirkenden Gasmaschinenzylindern in Tandemanordnung für Sauggasbetrieb, die
ändere aus einer Tandem-Verbunddampfmaschine mit Ventilsteuerung besteht. Die
Leistung ist 4000 kW Gleichstrom bei 80 Uml/min. Die Dampfmaschine leistet 2750 PS,
dabei hat der Hochdruckzylinder 920 mm, der Niederdruckzylinder 1727 mm ⌀. Der
gemeinsame Hub ist 1830 mm. Die Dampfspannung ist 12,5 at. Die Nennleistung der
Gasmaschine ist ebenfalls 2750 PS bei 1068 mm Zylinderdurchmesser und 1830 mm Hub.
Die Zylinder der Gasmaschine werden durch Frischwasser gekühlt, das dann als
Kesselspeisewasser dient. Das Kühlwasser des Kondensators wird durch die Mäntel der
Auspuffkessel geleitet. Ebenso dient ein Teil desselben zur Kolbenkühlung. Dies so
erhaltene Warmwasser dient als Waschwasser in der Fabrik. Ein Teil der Auspuffgase
wird durch die Heizmäntel des Hochdruckzylinders der Dampfmaschine geleitet, wodurch
Dampfverluste vermieden werden.
Bei den Abnahmeversuchen hat man die der Maschine insgesamt zugeführte Wärme aus dem
Dampfverbrauch und dem Verbrauch an Kraftgas berechnet. Bei einer Leistung von 4100
PSi berechnet sich daraus der
Gesamtwirkungsgrad, die mechanischen und elektrischen Verluste mitgerechnet, zu 17,3
v. H. Der thermische Wirkungsgrad der Dampfmaschine berechnet sich zu 20,4, der der
Gasmaschine zu 21,7 v. H. – Gleichgroße Wirkungsgrade lassen sich aber auch bei
wesentlich einfacheren Anlagen erreichen, sofern dieselben zweckmäßig gebaut sind.
Bemerkenswert ist noch die Feststellung, daß aus der Wärme des zugeführten
Generatorgases 21,5 v. H. in indizierte Arbeit umgewandelt werden, 20,7 v. H. werden
mit dem Kühlwasser der Zylinder, 23,5 v. H. mit dem Kühlwasser der Kolben und 2,5 v.
H. in der Heizung des Dampfzylinders nutzbar gemacht, so daß etwa 08 v. H. der
gesamten zugeführten Wärme nutzbar gemacht werden. (Power, 6. April 1920.)
W.
Wärmetechnik.
Ein Interpolationsverfahren für den Entwurf von p-, v- und i-Kurven
imt, s-Schaubilde. Für die
Lösung thermodynamischer Aufgaben findet in der Praxis das Temperatur-Entropie (t, s)-Diagramm eine immer ausgedehntere Verwendung.
Daß seine Bedeutung gegenwärtig in so weitgehendem Maße gewürdigt wird, ist zum
Teile dem Wirken von Prof. Ostertag
, Winterthur, zu verdanken, der sich seit Jahren
bemüht, die Aufmerksamkeit auf die Vorzüge der genannten zeichnerischen Darstellung
zu lenken In diesem Bestreben gab er seiner 1913 erschienenen Schrift über die
Berechnung der Kältemaschinen auch eine Entropietafel für Wasserdampf bei. Dem
Entwürfe der Drucklinien legte er die Annahme zugrunde, daß im Ueberhitzungsgebiete
die spezifische Wärme bei gleichbleibendem Drucke cp
unveränderlich sei. Ostertag hielt dieses Verfahren für
zulässig, da sein t, s-Schaubild vor allem der
rechnerischen Behandlung des Kälteprozesses dienen sollte. Stellt man aber
weitergehende Anforderungen, so darf die spezifische Wärme des Heißdampfes
keinesfalls als Festwert betrachtet werden. Ihre Abhängigkeit vom Drucke p und der Temperatur t ist
vielmehr seit geraumer Zeit der Gegenstand eingehender Forschungen und kann jetzt
nahezu bei allen Spannungen und Wärmegraden, die praktisch in Frage kommen, als
bekannt angesehen werden. Die neuesten auf diesem Gebiete erzielten
Versuchsergebnisse wurden durch Dipl.-Ing. Eichelberg,
Zürich, in der 220. Forschungsarbeit auf dem Gebiete des Ingenieurwesens rechnerisch
ausgewertet. Hierbei zeigte sich, daß man für den Wärmeinhalt i und die Entropie s des
Heißdampfes als Funktionen von Druck und Temperatur Gleichungen finden kann, die
allen Anforderungen entsprechen. Allerdings muß man außer cp = f (p, t)
noch die zusammengehörenden Werte p, t und i beziehungsweise die Verdampfungswärme r für einen Punkt der Sättigungsgrenze kennen, wenn man
die Integrationskonstanten feststellen will, die bei der rechnerischen Bestimmung
von i und s auftreten.
Sofern es aber gelungen ist, die erwähnten Gleichungen zu finden, vereinfacht sich
der Entwurf von Entropietafeln wesentlich, da ein Planimetrieren von cp- und \frac{c\,p}{t}-Kurven zur
Berechnung von i und s
fortfällt. Zunächst zieht man die Isothermen im t,
s-Diagramm. Für die Feststellung der übrigen Kurven macht Eichelberg folgende, sehr beachtenswerte Vorschläge von dem Gedanken
ausgehend, daß ein zu dichtes Liniennetz in Rücksicht
auf die Uebersichtlichkeit vermieden werden muß. Er verlängert die Ordinate t des t, s- Schaubildes
nach unten und trägt auf der Verlängerung die Drücke p
ab. Hierdurch entsteht unter der t, s Tafel ein p, s-Diagramm, in welches Isothermen wiederum ohne
Schwierigkeit eingezeichnet werden können. Die Linien gleichen Druckes sind im p, s-Schaubilde wagerechte Gerade. Man kann sie in die
t, s-Tafeln übertragen, indem man ihre
Schnittpunkte mit den Isothermen auf die entsprechenden Isothermen im t, s-Diagramm hinauflotet. Dessen Abszisse s erfährt nun eine Verlängerung nach links, auf welcher
die Werte pv abgetragen werden. Es ist somit links von
dem p, s-Schaubilde ein p,
pv- Diagramm entstanden. In dieser Darstellung findet man die Isothermen
durch Beachtung der Zustandgleichung. Sie wären bei idealen Gasen Parallele zur p-Achse, da bei gleichbleibender Temperatur pv = konstant ist. Für Wasserdampf ergeben sich durch
den Einfluß des Berichtigungsgliedes in der Zustandgleichung schwach geneigte
Kurven. Eine durch den Koordinatenanfangspunkt gelegte Gerade ist eine Linie
gleichen Volumens, denn für ihren Verlauf gilt
\frac{p\,v}{p}=v=\mbox{konstant}. Durch Uebertragen ihrer
Schnittpunkte mit den Isothermen findet man, wie leicht ersichtlich, die v Kurven in den t,
s-Tafeln. Werden fernerhin auf der pv-Achse nicht
nur die Werte des Produktes aus spezifischem Druck und Volumen, sondern auch die
Wärmeinhalte i abgetragen, so entsteht links vom t, s Diagramm bzw. über dem p,
pv-Schaubilde eine i, t-Tafel. Die Isobaren
lassen sich in dieselbe eintragen, da i als Funktion
von Druck und Temperatur bekannt ist. Ferner sind die Linien gleichen Wärmeinhaltes
Parallele zur i-Achse. Ueberträgt man ihre
Schnittpunkte mit den Isobaren auf die entsprechenden Isobaren im t s-Diagramm, so erhält man die i-Kurven in der letztgenannten Darstellung. Die drei von Eichelberg den ts-Tafeln
beigegebenen Schaubilder; welche die p, s- und p, pv-Isothermen sowie die i,
t-Isobaren enthalten, machen es also möglich, jede beliebige p, v- und i-Linie zu
finden. Auch für die Bestimmung der Kurven im Sättigungsgebiete gibt Eichelberg
bemerkenswerte Fingerzeige. Eingehendes Studium seiner wertvollen Arbeit ist jedem
zu empfehlen, der an der Entwicklung der Wärmelehre Anteil nimmt.
Schmolke.
Elektrotechnik.
Ein Verfahren zur Bestimmung des Nutzeffekts von
Bügeleisen. In der Elektrotechnischen Umschau 1920, Heft 19, S. 298
beschreibt Engelhardt ein von ihm bei der
Physikalisch-Technischen Reichsanstalt ausgearbeitetes Verfahren zur Bestimmung des
Nutzeffekts von elektrisch beheizten Bügeleisen. Die Prüfeinrichtung ist ein
eigenartiges Kalorimeter; es besteht aus einem gut mit Filz isolierten offenen
rechteckigen Gefäß von 26 × 16 cm Fläche und 3 cm Tiefe, welches mit destilliertem
Wasser gefüllt wird. Es ist durch ein Rohr mit einem kleinen offenen Gefäß von 5 × 5
cm Fläche und gleicher Tiefe verbunden, in das ein geschlossener, gleichfalls mit
destilliertem Wasser gefüllter Glasballon mit seinem unteren Ende eintaucht. Das zu
prüfende Bügeleisen taucht mit seiner unteren Fläche bis zu etwa 1 bis 2 mm in das
große Gefäß ein. Wird das Bügeleisen elektrisch beheizt, so fängt das Wasser an zu
sieden. Das verdunstende Wasser wird selbsttätig aus dem Inhalt des Glasballons
nachgefüllt. Die in der Zeiteinheit verbrauchte Wärmemenge ist
q=\frac{4,19\,.\,m}{T}\,.\,(100-t+539) Watt Dabei ist m die aus dem Ballon verdampfte Wassermenge, t die Temperatur des Wassers im Ballon, T die Versuchsdauer. Die Korrektion, die wegen der
Wärmeableitung des Gefäßes außerdem noch angebracht werden muß, bestimmt Engelhardt dadurch, daß er einen Heizwiderstand, der die
gleiche elektrische Leistung aufnehmen kann, wie ein Bügeleisen, ganz in das Wasser
des großen Gefäßes eintaucht. Die elektrisch zugeführte Energie (Wechselstrom) wird
von diesem Widerstand vollständig an das Wasser abgegeben. Um die Wärmeabfuhr von
der Oberfläche des Wassers zu vermeiden, wurde eine 1 cm dicke isolierende Platte
von etwa derselben Fläche wie die Grundfläche des zu prüfenden Bügeleisens über dem
Heizwiderstand 1 bis 2 mm tief in das Wasser eingetaucht, auf diese Platte das
Bügeleisen aufgesetzt und gerade so viel angeheizt, daß die durch die isolierende
Platte abgeführte Wärmemenge durch die vom Bügeleisen zugeführte Wärmemenge
kompensiert wurde. Die Gleichheit beider Wärmemengen wurde dadurch festgestellt, daß
ein Thermoelement, das in die isolierende Platte 1 mm unter ihrer oberen Fläche
angebracht wurde, einem gleichen 1 mm von der unteren Fläche entfernten
Thermoelement entgegengeschaltet wurde. Zeigt ein hochempfindliches in den
Thermoelementenkreis eingeschaltetes Galvanometer Null, so ist die zugeführte
Wärmemenge gleich der abgeführten. Der Wärmeverlust des Kalorimeters wurde so zu
26,4 ± 1,7 W. bestimmt. Dieser Wert muß zu der bei der eigentlichen Prüfung
gemessenen Wärmeabgabe des Bügeleisens hinzugerechnet werden. Es wurde an zwei
ähnlichen Bügeleisen, die jedoch Grundplatten aus verschiedenem Material hatten,
gemessen:
Wärmeleistung der Grundplatte
302,4
und
299,4
W.,
Aufgenommene elektr. Leistung
342,2
und
339,7
W.,
also Nutzeffekt
88,4
und
88,1
v. H.
Die Meßgenauigkeit ist dabei ±
1,7 W.
oder
± 0,5
v. H.
Die Bügeleisen waren neu und hatten eine hochglanzpolierte
Oberfläche.
Schml.
Feuerungstechnik.
Oelfeuerung. Die französische Gesellschaft „La
Combustion Industrielle Rationelle“ hat einen neuen Brenner gebaut, bei dem
das Oel durch Dampf zerstäubt wird.
Textabbildung Bd. 335, S. 261
Nach der Abbildung fließt der flüssige Brennstoff durch Filter
i in den Behälter g.
Von hier tritt er durch einen zweiten Filter h in die
Leitung e, an deren unterem Ende sich das
Regulierventil c befindet. Von hier tritt der
Brennstoffstrahl in die Regulierdüse 2 über, die sich
in der Zerstäubervorrichtung 1 befindet. Der
Zerstäubervorrichtung 1 wird der Dampf von etwa 4 at
Spannung durch die Leitung i1 zugeführt. Von der Dampfleitung i1 zweigen Nebenleitungen ab, die, wie die
Abbildung zeigt, zur Vorwärmung des Oeles dienen. Der Dampf wird in den Brenner
durch eine ringförmige Kammer 4 zugeführt. Durch die
dabei entstehende Injektorwirkung wird durch die Düse 2
hindurch Luft angesaugt. Der Mischung von Brennstoff und Zusatzluft wird in der
Mischkammer 7 die notwendige Verbrennungsluft durch die
Stutzen 12 zugeführt, in denen die Luft durch geeignete
Vorrichtung gezwungen ist, sich schraubenförmig zu bewegen. Durch
die konische Düse 8 und Rohransatz 10 strömt das Brennstoffluftgemisch in das Rohr 13, in dem dasselbe durch schraubenförmig angeordnete
Leitbleche eine entsprechende Drehbewegung erhält, in den Feuerraum. (La Technique
Moderne, Februar 1920.)
W.
Wärmewirtschaft.
Sparöfen. Das Kgl. Ungarische Handelsministerium hat einen
Wettbewerb für die Konstruktion solcher Oefen und Sparherde ausgeschrieben, in
welchen aus ungarischen Gruben stammende Braunkohlen am sparsamsten und
zweckmäßigsten verbrannt werden können. Die Ungarische Regierung plant, die Firma,
die bei dem Wettbewerb für die Lieferung am geeignetsten erscheint, und die beste
Konstruktion herausbringt, mit großen Aufträgen zu versehen. Es sollen sämtliche
Neubauten und vorhandenen großen Staatsgebäude (Eisenbahn, Post, Gericht, Schule
usw.) zwecks Kohlenersparnis und rationeller Verbrennung mit den neuen Modellen
ausgestattet werden. Einlieferungstermin 15. März 1921. Die Unterlagen können unter
Voreinsendung von 3 M vom Forschungsinstitut für rationelle Betriebsführung im
Handwerk, E. V., Karlsruhe, Kaiserstraße 108 bezogen werden.
Gastechnik.
Ueber die Wasserstofferzeugung im Kriege nachdem Messerschmitt-Verfahren macht Diplom-Ingenieur F. Müller ausführliche Mitteilungen. Den militärischen
Anforderungen an eine leistungsfähige Wasserstoffanlage wird das Messerschmitt-Verfahren in weitgehendem Maße gerecht. Die
kontinuierliche Gaserzeugung vollzieht sich dabei in drei Perioden, der Reduktion-
oder Heizperiode, der Spül- und der Dampfperiode. In der Folge wurde in jeden
Arbeitgang nach der Dampfperiode noch eine Lüftungperiode eingeschaltet. Die
Einrichtung des Generators, wie er in den Militärwasserstoffgasanstalten Köln,
Königsberg, Mannheim und Schneidemühl im Kriege benutzt wurde, wird näher
beschrieben. Die besten Ergebnisse wurden mit Siegerländer Brauneisenerz erhalten,
weniger gut bewährten sich Rostspat, Kiesabbrände oder Gemische dieser beiden. Ein
Generator von 250 cm äußerem Durchmesser faßt 3000 bis 3500 kg Eisenerz. Die
Reduktion des Erzes erfolgte mit Hilfe von Wassergas, das in einer besonderen Dellwik-Fleischer-Anlage erzeugt wurde; es dient
gleichzeitig zum Anheizen des Generators und seiner Füllung auf 700 bis 900°. Das
erste Aufheizen dauert 7 bis 8 Stunden, im laufenden Betrieb jedoch nur 17 bis 19
Minuten. Ehe die Wasserstofferzeugung beginnt, wird der Generator mit überhitztem
Wasserdampf 5 bis 10 Sekunden lang ausgespült, um die letzten Reste von Wassergas
und Luft zu verjagen. Dann wird in umgekehrter Richtung wie vorher Dampf
eingeblasen, der durch das glühende Eisen zersetzt wird, wobei sich dieses wieder
oxydiert. Diese Dampfperiode dauert 8 Minuten, unmittelbar danach wird 3 bis 5
Minuten lang Luft durchgeblasen, um den abgeschiedenen Kohlenstoff (ev. auch
Schwefel) zu verbrennen.
Mit einer Generatorfüllung von 3000 bis 3500 kg Brauneisenerz lassen sich in den
ersten Betriebtagen 70 bis 75 m3 Wasserstoff bei
jeder Dampfung erzeugen (das sind bei 47 Dampfungen in 24 Stunden rd. 3400 m3 Wasserstoff), durch Verkleinerung der
Reaktionsoberfläche infolge von Sinterung der Erzmasse geht aber die Ausbeute
allmählich auf 30 bis 40 m3 Wasserstoff bei jeder
Dampfung (also 1650 m3 bei 47 Dampfungen in 24
Std.) zurück. Aus gutem Erz lassen sich bei sorgfältigem Arbeiten mit einer
Erzfüllung 60000 bis zu 100000 m3 Wasserstoff
herstellen. Das Gas hatte im Durchschnitt ein spez. Gewicht von 0,08 (bezogen auf
Luft = 1), das ist ein Auftrieb von 1189,4 g für 1 m3 bei 0° und 760 mm Druck, entsprechend 98,9 Gewichtsprozenten. Das Rohgas
wird in einem Wäscherturm auf 80° abgekühlt und hierbei zum Teil von Kohlensäure und
Schwefelwasserstoff gereinigt, es wird dann durch einen 200 m3 fassenden Druckausgleichbehälter und schließlich
durch mehrere Trockenreiniger geleitet, die teils mit Luxmasse, teils mit gelöschtem
Kalk gefüllt sind. Der so gereinigte Wasserstoff, der nur noch durch geringe Mengen
Kohlenoxyd und Methan verunreinigt ist, strömt durch eine Gasuhr hindurch in einen
3000 m3 fassenden Behälter, aus dem er von den
Kompressoren der Abfüllanlage angesaugt wird. Neben den üblichen Stahlflaschen des
Handels wurden auch noch sog. Feldgasflaschen benutzt, die etwas kleiner waren und
in denen der Wasserstoff auf 175 at verdichtet wurde. Die Luftschiffhäfen waren
außerdem noch mit einer größeren Anzahl von unterirdischen Hochdruckbehältern von je
10 m3 Inhalt ausgerüstet, in denen das Gas unter
100 at Druck für unvorhergesehene Fälle aufgespeichert wurde. Zum Versand von
verdichtetem Wasserstoff ins Feld dienten besondere Kesselwagen, die entweder zwei
große liegende Kessel für 100 at Druck oder 6 bzw. 14 kleinere Behälter für 175 at
Druck enthielten; ein solcher Wagen faßte 1800 bis 2000 m3 Gas. Die Gasanstalten verfügten über vier
Wasserstoff- und zwei Wassergasgeneratoren, von denen je einer als Reserve diente.
(Ztschr. f. kompr. u. flüss. Gase 1919/20, Bd. 20, S. 4 bis 8.)
Sander.
Metallkunde.
Die Deutsche Gesellschaft für Metallkunde hielt am 21. und
22. September d. J. ihre erste Hauptversammlung in der Technischen Hochschule
Charlottenburg ab unter dem Vorsitz von Geheimrat Prof. Heyn. An Vorträgen wurden gehalten: Prof. Dr. Fränkel über vergütbare Aluminiumlegierungen; Obering. Czochralski über Schwärzung von Aluminium durch
Leitungswasser; Obering. Stendel über einfache
Materialprüfungsvorrichtungen; Dr. Masing über
Rekristallisation; Dr.-Ing. E. H. Schulz über Ersatz des
Kupfers durch andere Metalle; Dr. Mäkelt über
Metallersatz bei chemischen Vorgängen; Prof. Dr. Gürtler
über systematische Ausblicke in die Möglichkeiten künftiger Legierungskunst.