| Titel: | Anlage zur Beförderung von Fässern, Säcken und Kisten. |
| Autor: | C. Guillery |
| Fundstelle: | Band 324, Jahrgang 1909, S. 373 |
| Download: | XML |
Anlage zur Beförderung von Fässern, Säcken und
Kisten.
Entworfen und ausgeführt von Amme, Giesecke und Konegen, A.-G. in
Braunschweig.
Anlage zur Beförderung von Fässern, Säcken und Kisten.
Die Anlagen zur selbsttätigen Beförderung- von Gütern aller Art innerhalb der
Fabriken und Magazine, sowie von der Eisenbahn oder dem Schiffe zu den Lagerplätzen
und umgekehrt, mehren sich erfreulicherweise auch bei uns in stets zunehmendem
Grade. Es wird dadurch Geld und Arbeitszeit erspart, dem allzu starken Anwachsen der
Arbeiterzahl für die minderwertige Beförderungsarbeit wird vorgebeugt, und an die
Stelle einer solchen, mehr für Lasttiere passenden Beschäftigung wird die
handwerksmäßige Tätigkeit der mit der Herstellung, Beaufsichtigung und
Instandhaltung der entsprechenden Vorrichtungen betrauten Arbeiter gesetzt.
Textabbildung Bd. 324, S. 373
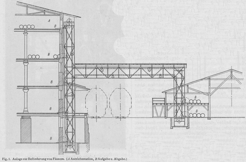
Fig. 1. Anlage zur Beförderung von Fässern. (A
Antriebsstation, B Aufgabe u. Abgabe.)
Unter anderen von der Fabrik von Amme, Giesecke u. Konegen, A.-G. in Braunschweig ausgeführten und
erprobten Anlagen zur Beförderung von Massengütern oder einzelnen Stücken
verschiedener Art, verdient eine neuere, aber schon in einer chemischen Fabrik mit
bestem Erfolg ausgeführte Anlage zur Beförderung von Fässern, Säcken Kisten und
Ballen hervorgehoben zu werden.
Die Anlage (Fig. 1) dient zur Beförderung der Güter
in wagerechter und senkrechter Richtung, von einer einzigen Antriebmaschine aus,
gegebenenfalls gleichzeitig vorwärts und rückwärts, und kann so zur selbsttätigen
Entnahme wie auch zur Abgabe der Güter in beliebigen Stockwerken eines Magazins und
zur Weiterbeförderung auf beliebig weite Strecken verwendet werden.
Das Beförderungsmittel besteht in einer endlosen, durch Maschinenkraft bewegten Kette
nebst den an diese angehängten, eigenartig gebauten Mitnehmern, auf welchen das Gut
während der Beförderung gelagert ist (Fig. 2). Diese
Mitnehmergestelle sind so geformt, daß zwei an der betreffenden Abgabe- oder
Entnahmestelle angebrachte Ausleger unter das Gut fassen können, und dieses entweder
von dem sich niederwärts bewegenden Mitnehmer abheben, oder es an den aufwärts
gehenden leeren Mitnehmer abgeben. Die Form des Mitnehmergestells im Grundriß, nebst
der Anordnung der Ausleger für Abgabe und Empfangnahme, zeigt Fig. 3 in schematischer Skizze. Für den Vorwärts- und
den Rückwärtsgang der Beförderungseinrichtung sind je auf einer Seite der Hebetürme
besondere Ausleger a u. b
zur Empfangnahme und Abgabe des Gutes angeordnet, die je in besondere Ausschnitte
der an die Förderkette angehängten Mitnehmergestelle c hineingreifen.
Textabbildung Bd. 324, S. 373
Fig. 2. Hebevorrichtung und Abgabe der Fässer an das Magazin.
In Fig. 4 ist schließlich ein auf den nach auswärts
geklappten Abgabeauslegern ruhendes und der Weiterbeförderung durch den nächst
ankommenden Mitnehmer harrendes Faß zu erkennen. Die entsprechenden Ausleger sind an ihrem freien
Ende mit einer Auskehlung zur sicheren Lagerung- des abzuholenden Fasses versehen,
das dann durch den aufwärts fahrenden Mitnehmer abgehoben wird. Aus Fig. 3 u. 4 sind
ferner zwei geradlinige, aus ⊏-Eisen gebildete Ausleger zu ersehen, welche über die
vorher erwähnten Ausleger geklappt werden können und alsdann in schwach nach innen
zu geneigter Lage stehen bleiben, wenn die Vorrichtung zur Abgabe eines abwärts
ankommenden Fasses an die Ausleger und zum Abrollen desselben in das Magazin dienen
soll. Durch Einwärtsklappen sämtlicher Ausleger wird dagegen die Bahn vollständig
freigegeben für den Fall, daß in dem betreffenden Stockwerk weder Empfangnahme noch
Abgabe eines Gutes stattfinden soll. Ballen, Kisten und Säcke werden ähnlich
behandelt.
Textabbildung Bd. 324, S. 374
Fig. 3. Schema der Aufgabevorrichtung im Grundriß.
Dadurch, daß die Förderkette samt den Mitnehmern sowohl vorwärts wie rückwärts laufen
kann und daß sowohl die aufsteigende Kette zur Empfangnahme des Gutes, als die
abwärtsgehende zur Abgabe- und zwar nach Bedarf beides gleichzeitig – benutzt werden
kann, ist es ermöglicht, auf jeder Seite der beiden in Fig. 1 dargestellten Hebetürme sowohl ein-wie ausladen zu können, und
zwar in jedem beliebigen Stockwerk.
Für besondere Zwecke erhält die Vorrichtung entsprechende anderweitige
Ausbildung.
Die in der Zeichnung dargestellte Beförderungseinrichtung kann mit zwei verschiedenen
Geschwindigkeiten betrieben werden, je nachdem es sich um die Beförderung von leeren
oder vollen Fässern handelt. Die zum Betrieb erforderliche Maschinenleistung ist
sehr gering und beträgt bei einer Gesamtlänge der Förderstrecke von etwa 100 m, wenn
sämtliche Mitnehmer beladen sind, unter Voraussetzung angemessener Ausführung der
Förderkette und der Rollentriebe, sowie entsprechender Unterhaltung nur 1 bis 2
PS.
Die Einrichtung arbeitet weit billiger als ein Aufzug, weil die erhebliche
Leergangsarbeit des letzteren wegfällt, sie ist auch weit leistungsfähiger und
gestattet überdies die Beförderung auch im wagerechten Sinne nach beliebiger
Richtung. Ferner kann ein Aufzug nicht in gleichem Grade selbsttätig arbeiten und
braucht deshalb weit mehr Bedienung. Die Anlagekosten der beschriebenen
Beförderungseinrichtung machen sich deshalb bei der Anwendung an geeigneter Stelle,
in Brauereien, Farbwerken, Oelmühlen und -raffinerien, Faß- und Zementfabriken, sehr
bald bezahlt.
Textabbildung Bd. 324, S. 374
Fig. 4. Aufgabe der Fässer auf die Fördervorrichtung.
C. Guillery, Kgl. Baurat.