| Titel: | Die Betoneisenbauten im Hafen von Talcahuano, Chile. |
| Autor: | F. Kerdijk |
| Fundstelle: | Band 323, Jahrgang 1908, S. 755 |
| Download: | XML |
Die Betoneisenbauten im Hafen von Talcahuano,
Chile.
Von Ing. F. Kerdijk,
Hengelo.
Die Betoneisenbauten im Hafen von Talcahuano, Chile.
Bei den teilweise fertiggestellten und teilweise noch in Ausführung begriffenen
Arbeiten für den Ausbau des Hafens von Talcahuano, Chile, wird von armiertem Beton
bei der Konstruktion der Kaimauern, Wellenbrecher und Schutzmauern ein
allgemeiner Gebrauch gemacht. Obwohl der vollständige Entwurf für den Hafenausbau
auch einen Handelshafen umfaßt, ist vorläufig aus Mangel an den erforderlichen
Geldmitteln nur der Kriegshafen in Angriff genommen worden, dessen Ausführung einer
Chilenischen Ingenieurfirma unter der Leitung von A. Lira
Orrego, jedoch unter der Bedingung übertragen wurde, daß mit den
Betoneisenbauten eine Firma mit spezieller Erfahrung auf diesem Gebiete zu
beauftragen sei.
Textabbildung Bd. 323, S. 756
Fig. 1.A, B, C Wellenbrecher. D, E Landungssteg, F-L Kaimauer, M. N
Schutzmauer, O Eisenbahn, P Werkstätte, Q Schuppen, R Dock, S Magazine, T Kanal,
U Hafen für Docktüre, V Leuchtturm, W Boje, X Auszutiefen bis – 10 m.
Textabbildung Bd. 323, S. 756
Fig. 2.Kaimauer. Querschnitt und halber Grundriß. C Mauerwerk, D-E
Steinschüttung, F Bodenfüllung, G Füllbeton.
Es wurde denn auch für diese ein Unterkontrakt mit dem in
Santiago errichteten Zweigbureau der Hollandsche Maatschappy
tot het maken van werken in Gewapend Beton abgeschlossen, welche
Gesellschaft, obwohl die Einzelheiten der Ausführung bei der Verdingung schon
festgestellt waren, die Gewähr für die richtige Bemessung der Unterteile zu
übernehmen hatte. Sie konnte dabei natürlich Aenderungen vorschlagen, wovon
namentlich für die Zusammensetzung des dem Seewasser ausgesetzten Betons Gebrauch
gemacht wurde, indem die ursprünglich in Aussicht genommene Mischung viel zu schlaff
geurteilt und eine Mischung von 2 Zement: 3 Sand: 5 Steinschlag verwendet wurde.
Ausführliche Mitteilungen über das Entstehen des Entwurfs und die Ausführung der
betr. Arbeiten hat einer der Oberingenieure der genannten Betoneisen-Gesellschaft,
W. C. van Manen, kürzlich in einem VortragDe Ingenieur 1908, Heft 35. im Kon.
Inst. van Ingenieurs gemacht, aus dem die wichtigsten Angaben hier zusammengefaßt
sind.
Die Arbeiten können in vier Gruppen verschiedener Bauart eingeteilt werden; sie
umfassen: einen Wellenbrecher A B C (Fig. 1), einen Landungssteg D
E, eine Kaimauer F G H I K L und eine
Schutzmauer M N. Abgesehen vom Landungssteg beruht das
Prinzip für die Bauten darauf, daß auf dem Lande große, hohle BetoneisentrogeAehnliche Kaimauertroge aus Eisenbeton werden
auch im Hafen von Rotterdam verwendet und haben in Talcahuano zum Vorbilde
gedient. Siehe D. p. J. Bd. 322, Heft
39. auf dafür hergestellte Gerüste aufgebaut werden; nach genügender
Erhärtung, und je nachdem die Baggerarbeiten fortschreiten, läßt man diese Troge
mittels einer besonders zu diesem Zweck konstruierten Vorrichtung von Stapel und
schleppt sie schwimmend an den Aufstellort, wo sie durch Einpumpen von Wasser auf
den vorbereiteten Meeresboden gesenkt und schließlich mit Beton oder mit Steinen und
Sand angefüllt werden, wonach gegebenenfalls die Hinterfüllung des Bodens und die
Aufmauerung der Oberkonstruktion erfolgen kann.
Textabbildung Bd. 323, S. 756
Fig. 3.Wellenbrecher (Querschnitt).D Feine Steinschüttung, E Grobe
Steinschüttung, H Stein- und Sandfüllung, Y Meeresboden.
Der für die Kaimauern gewählte Querschnitt ist aus Fig.
2 ersichtlich. Der eigentliche Mauerkörper ist sehr schmal gehalten, aber
durch die weit nach hinten ausragende und mittels kräftiger, dreieckiger Rippen mit
dem Trogkörper A verbundene Bodenplatte B, auf die der unmittelbar hinter der Mauer liegende
Boden lastet, hat man erreicht, daß die Resultierende aus den äußeren Kräften –
Bodendruck und Gewicht – innerhalb des Kernes der Grundfläche bleibt. Die Forderung
einer möglichst billigen Bauart, sowie die Schwerpunktswahl des Troges derart, daß
ein Schwimmen in angenähert senkrechtem Zustande möglich wird, führte zu der nach
unten verjüngten Form des Trogkörpers. Zur Erhöhung der Standsicherheit ist die
durch Rippen versteifte und ein wenig gewölbte Bodenplatte B nach vorne verbreitert und hier ebenfalls mittels dreieckiger Rippen
versteift, die je in einer Ebene mit denen an der Hinterseite, sowie mit den Querschotten im
Innern des Troges liegen.
Textabbildung Bd. 323, S. 757
Fig. 4.Schutzmauer (Querschnitt). D Steinschüttung. H Stein- und
Sandfüllung.
Die Höhe der Betoneisenkonstruktion beträgt 10,35 m (für einen Teil der Kaimauern
9,65 m), die Breite oben 3 m, unten 6,50 m, die Troglänge 10 m, das Gewicht des
leeren Troges etwa 215 t, nach Füllung mit Beton 620 t. Ueber die ganze Länge (1113
m) dieser Kaimauern ist das Mauerwerk c aus
Bruchsteinen mit einer Kanalaussparung a für
hydraulische, elektrische und Gasleitungen errichtet.
Textabbildung Bd. 323, S. 757
Fig. 5.Landungssteg. Querschnitt und Grundriß. Z Felsboden.
Vor der Aufstellung der Betoneisentroge wird eine 12 m breite Rinne bis auf- 10,5 m
ausgebaggert und in diese Rinne eine 0,5 m dicke Schicht D aus feinem Steinschlag geschüttet, die von einem Taucher möglichst
geebnet wird.
Zur Verringerung des Bodendruckes ist hinter der Mauer ein dreieckiges Prisma aus
Steinschüttung E vorgesehen, das von der Oberkante der
Betoneisenkonstruktion unter einem Neigungswinkel von 45° ausgeht.
Der in Fig. 3 im Querschnitt dargestellte
Wellenbrecher, dessen Form Und Abmessungen aus der Fig. hervorgehen, ruht auf einer
0,5 m dicken Schicht feiner Steinschüttung D und ist
mit Stein und Sand gefüllt, Während zum allmählichen Brechen der Wellen auf der
Nordseite eine grobe Steinschüttung E unter einem
Neigungswinkel von 1½: 1 angebracht wird, deren äußere Schicht aus Blöcken mit
einem Mindestgewicht von 2000 kg bestehen muß. Für die Strecke B C (Fig. 1) ist der
Wellenbrecher um 1 m tiefer gegründet als in Fig. 3
angegeben und sind die Betoneisentroge deshalb 1 m höher. Auch die Troge A für den Wellenbrecher sind 10 m lang und durch drei
Querschotten in vier gleiche Abschnitte geteilt. Die beiden Stirnwände eines jeden
Troges sind mittels drei wagerechter Rippen verstärkt.
Textabbildung Bd. 323, S. 757
Fig. 6.Unterstützung der Troge auf der Längsbahn. K Kupplung.
Ueber die ganze Länge (553 m) des Wellenbrechers, der durch einen breiteren
Stirnblock mit kleinem Leuchtturm abgeschlossen wird, ist eine Brustwehr auf der
Nordseite bis auf + 4 m angebracht und auf die Troge ist eine dreigleisige Bahn
verlegt.
Textabbildung Bd. 323, S. 757
Fig. 7.Unterstützung der Troge auf der Querbahn. K Kupplung.
Auch die Schutzmauer, deren Länge 253 m betragen wird, setzt sich aus 10 m langen
Trogen zusammen, deren Querschnitt und Abmessungen aus Fig. 4 hervorgehen. Da der Unterboden am Aufstellungsort sehr weich ist,
soll hier bis auf – 11 m eine 12 m breite Rinne ausgebaggert und mit Steinen
vollgeschüttet werden. Die Troge werden nur bis auf – 6 m mit Steinen und Sand
gefüllt, um den auf den Boden lastenden Druck möglichst zu beschränken. In den
Seitenwänden der Troge werden 60 cm im Geviert große Löcher ausgespart, um das
Wasser in den Trogen mit den wechselnden Gezeiten auf und nieder gehen zu
lassen.
Eine von den vorbesprochenen vollständig abweichende Konstruktion wurde für den
Landungssteg (Fig. 5) gewählt. Hätte man hier
ebenfalls zum Trogbau gegriffen, so wäre, wie aus der Fig. ersichtlich, eine
bedeutende und kostspielige unterseeische Felsauf räumung notwendig gewesen zur
Erweiterung des schon bestehenden, zum Dock führenden Zugangskanals. Bei der jetzt
zur Ausführung gelangenden Bauart werden hohle Betoneisensäulen auf dem Lande
fertiggestellt, schwimmend zum Bauplatz geschleppt und mit Hilfe eines Schwimmkranes
in Löcher aufgestellt, die vorher mittels Druckluft-Caissons in den Meeresboden
ausgehauen sind. Die Standsicherheit der Pfähle wird dadurch erreicht, daß ein
Taucher den freibleibenden Raum in den Löchern um die Pfahlfüße herum mit
schnellerhärtendem Zementbeton ausfüllt, nachdem die Säulen selbst in ihrer ganzen
Höhe mit Beton gefüllt worden sind. Die Säulen werden durch Kupplungsbalken in der
Längs- und Querrichtung miteinander verbunden, während schließlich eine durch
schwere Rippen verstärkte Deckenkonstruktion auf die Säulen angebracht wird. Der
Bodendruck wird durch ∟-förmige, gegen die hintere Säulenreihe aufgestellte
Betoneisenkonstruktionen aufgenommen, für welche die Troge ebenfalls auf dem Lande
ausgeführt und schwimmend zur Baustelle geschleppt werden. Jeder dieser Troge reicht
von einer Säule zur zweitnächsten und besitzt fünf dreieckige Verstärkungsrippen,
welche die senkrechte Wand mit der Grundplatte verbinden.
Textabbildung Bd. 323, S. 758
Fig. 8.Trog vor dem Hinunterlassen.
Die Art, wie die Kaimauertroge von dem Bauort ins Wasser gelassen werden, möge noch
an Hand der folgenden Figuren erklärt werden. Der Zusammenbau findet auf über
Gleisbahnen aufgestellten Gerüsten statt, die parallel zueinander und mit der Küste
des Arbeitsplatzes verlegt sind. Nach der Fertigstellung wird jeder Trog auf zu
diesem Zwecke konstruierte Wagen über diese Längsbahnen zu einer Querbahn geführt,
die das Hinunterlassen ins Wasser gestattet. Die etwa 210 bis 220 t schweren Troge
(Fig. 6) werden durch sechs Wagen in solcher
Weise unterstützt, daß ein statisch bestimmtes System entsteht. Dazu sind auf der
der Stirnwand zunächst gelegenen Bahn je zwei Wagen miteinander verbunden und stützt
der Trog sich hier auf je einem gemeinsamen Balken. Die beiden Wagen des hinteren
Gleises sind mit hydraulischen Hebevorrichtungen versehen, deren Kupplung K eine gleiche Belastung dieser beiden Wagen bewirkt.
Dadurch ist ein statisch bestimmtes Belastungssystem erzielt, das den Vorteil hat,
unvorhergesehenen Formänderungen des Trogkörpers vorzubeugen, da event. örtliche
Senkungen der Gleisbahnen ohne Einfluß auf die Stützpunktreaktionen bleiben. Dadurch
wurde auch eine kostspielige Unterrammung der Bahnen vermieden, die sonst bei der
Beschaffenheit des dortigen Bodens nötig gewesen wäre.
Textabbildung Bd. 323, S. 758
Fig. 9.Trog auf der Querbahn.
Textabbildung Bd. 323, S. 758
Fig. 10.Trog beim Schleppen durch die Bucht.
Auf die unter einer Neigung von 1: 100 verlegte Längsbahn wird der Trog zum
Kreuzpunkt mit der Querbahn gefahren, wo er mittels acht hydraulischer Pressen und
vier fester Stützpunkte von den Wagen gehoben wird, um letztere für die nun folgende
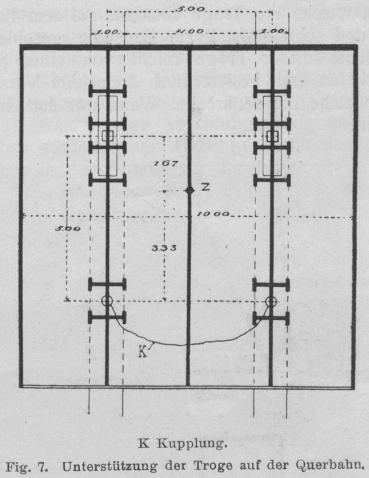
Querbewegung drehen zu können. Wie diese auf der Querbahn zu stehen kommen, geht aus
Fig. 7 hervor, während Fig. 8 eine Ansicht des Troges in diesem Stande gibt, wo auch die
Zugseile zum Halten des Troges beim Abfahren zu sehen sind. Dabei werden die Seile
von einer Winde allmählich nachgelassen, wobei die ursprünglich 1: 100 betragende
Neigung der Querbahn unmittelbar vor der Wasserlinie in eine solche von 1: 3
übergeht. Der Trog kommt dadurch in gleicher Lage ins Wasser, den er in schwimmenden: Zustand einnimmt
und hebt sich gleichmäßig von seinen Stützpunkten ab. Die Abfahrt auf der letzten
Streke ist noch durch Fig. 9 veranschaulicht.
Nachdem die Troge durch einen Schlepper (Fig. 10)
an Ort und Stelle gebracht sind, werden sie mit Hilfe eines Schwimmkranes
gekantet, mit Wasser vollgepumpt, bis sie auf den vorbereiteten Boden aufruhen und
schließlich mit Beton gefüllt.