| Titel: | Neuere Pumpen und Kompressoren. |
| Autor: | Fr. Freytag |
| Fundstelle: | Band 323, Jahrgang 1908, S. 327 |
| Download: | XML |
Neuere Pumpen und Kompressoren.
Von Prof. Fr. Freytag,
Chemnitz.
(Fortsetzung von S. 285 d. Bd.)
Neuere Pumpen und Kompressoren.
Neben den vorgenannten metallenen Ringventilen werden von der Gebr. Körting A.-G. seit einiger Zeit auch Gummiringventile, der Fig.
91 ersichtlichen Bauart verwendet, deren bewegliche Teile aus in Rinnen
liegenden Gummiringen bestehen. Durch sorgfältig erprobte Wahl des Materials und der
Formgebung der Ringe sowohl, wie auch des Ventilkörpers ist es gelungen, diesen
Ventilen eine außerordentliche Dauerhaftigkeit zu geben, so daß ihre sonstigen
vorteilhaften Eigenschaften, wie das vollkommen geräuschlose Arbeiten und der selbst
bei unreinem oder nicht ganz sandfreiem Wasser dauernd dichte Abschluß voll zur
Geltung kommen. Diese Ventile haben sich derart vorzüglich bewährt, daß z.B. die
Stadt Posen nach Versuchen mit einem solchen für ihre älteren Wasserwerkspumpen
sieben Gummiringventile nachbestellte.
Fig. 92 zeigt eine einfachwirkende, mit
Gummiringventilen arbeitende schnellaufende Kolbenpumpe der Gebr.
Textabbildung Bd. 323, S. 326
Fig. 91.Gummiringventil von Gebr. Körting A.-G.
Körting A.-G. Die Ventile sind hier
konzentrisch hintereinander liegend angeordnet, derart, daß Saug- und Druckventil
miteinander vereinigt und nach Lösen eines hinteren Deckels leicht aus dem
Pumpenkörper zu entfernen sind.
Textabbildung Bd. 323, S. 327
Fig. 92.Schnellaufende Kolbenpumpe mit Gummiringventilen von Gebr.
Körting A.-G.
Beim Saughube des mit doppelter Ledermanschettendichtung ausgebildeten Plungerkolbens
werden die Ringe des Saugventils von ihren Sitzen abgehoben, diejenigen des
Druckventils auf dieselben gepreßt; das Umgekehrte findet beim Druckhube des Kolbens
statt.
Der Kurbelmechanismus ist in einem vollständig eingekapselten Gehäuse untergebracht,
das gleichzeitig zur Aufnahme des für die Tauchschmierung der Kurbel und des Kolbens
dienenden Oeles ausgebildet ist.
Mit dem Pumpengehäuse ist eine gemeinschaftliche Saug- und Druckhaube verbunden. Bei
höheren Umlaufzahlen und größeren Saughöhen empfiehlt sich jedoch, in möglichster
Nähe der Pumpe einen besonderen Saugwindkessel anzuordnen. Körtings schnellaufende Pumpen mit Gummiringventilen werden für Leistungen
bis zu 6 cbm/Std. und 40 m Förderhöhe ausgeführt; die größte Umlaufzahl beträgt ∾
300 i. d. Minute.
Zum Zwecke der Förderung kleinerer Wassermengen auf niedrige Höhen liefert die
genannte Firma mit Verbrennungskraftmaschinen vereinigte Wasserpumpen stehender
Anordnung.
Wie Fig. 93 ersichtlich, wird die als
Differentialpumpe ausgebildete Hebemaschine mittels Zahnradvorgelege von der
Kurbelwelle der Gasmaschine aus angetrieben. Letztere arbeitet nach dem
Viertaktsystem mit Ventilsteuerung und Glüh- oder elektrischer Zündung. Als
Betriebsmittel sind Leuchtgas, Benzin, Benzol, Spiritus, Petroleum und andere
flüssige Brennstoffe verwendbar.
Wenn der Wasserspiegel im Brunnen oder dergl. so weit sinkt, daß eine Saugwirkung der
Pumpe nicht mehr möglich ist, kann dieselbe abgekuppelt und tiefer als die
Antriebsmaschine gestellt werden; sie wird dann durch ein Gestänge vom
Zahnradvorgelege aus angetrieben.
Die Pumpen werden für Leistungen von 3–24 cbm/Std. und für Förderhöhen bis zu 30 m
gebaut.
Textabbildung Bd. 323, S. 327
Fig. 93.Mit Gasmaschine gekuppelte Differentialpumpe von Gebr. Körting
A.-G.
Die für größere Wasserversorgungsanlagen von Gemeinden, Städten und dergl. von der
Gasmotorenfabrik Deutz in Köln-Deutz gebaute
liegende doppelwirkende Plungerpumpe ist in Fig. 94
ersichtlich.
Der Antrieb geschieht zumeist von einem Gasmotor aus durch Riemen- oder Seil-,
in seltenen Fällen auch durch Zahnradübertragung.
Textabbildung Bd. 323, S. 328
Fig. 94.Doppeltwirkende Plungerpumpe der Gasmotorenfabrik Deutz.
Der in Bajonettform ausgeführte Rahmen bildet mit dem Hauptkurbellager mit
vierteiligen, durch Druckschrauben nachstellbaren Schalen und der am Pumpenanschluß
behufs bequemer Zugänglichkeit der Stopfbüchse sehr geräumig gehaltenen runden
Kreuzkopfführung ein einziges Gußstück. Die Pumpenkörper sind auf einem gemeinsamen
Saugwindkessel befestigt, bei kleineren Typen mit demselben auch aus einem Stück
gegossen. Die Saug- und Druckventile, deren Sitze durch von außen stellbare
Druckstifte gehalten werden, sind übereinander angeordnet und unmittelbar über den
letzteren kugelförmige Drucklufthauben angebracht. Die vom Plungerdruck herrührenden
achsialen Kräfte zwischen den beiden Pumpenkörpern werden durch ein Zwischenstück
aufgenommen, welches gleichzeitig zur Zentrierung der beiden Körper und als
Wassertrog für die Stopfbüchse dient.
Textabbildung Bd. 323, S. 328
Fig. 95.Pumpenventil mit Rohrgummifedern der Gasmotorenfabrik
Deutz.
Die Bauart der mit Rohrgummifedern belasteten Ventile zeigt Fig. 95.
Bei Drücken über 200 m Wassersäule werden statt der Ventile mit metallenen
Dichtungsflächen solche mit Lederstulpdichtung (Fig.
96) verwendet. Der Ventilteller ist auch hier mit einer Rohrgummifeder
belastet.
Die Saughöhe kann bei diesen Pumpen bis zu 8 m betragen, ohne daß die Ventile
Geräusch verursachen bezw. der Lieferungsgrad der Pumpe hierdurch merklich
beeinflußt wird. Als Druckhöhe ist für die normale Ausführung 100 m angenommen; für
höhere Drücke kann die Pumpe leicht verstärkt werden. Sie wird für Leistungen von 13
bis 316 bezw. als doppeltwirkende Zwillingspumpe für solche von 50–632 cbm/std. bei
80–55 Uml./Min. gebaut.
Textabbildung Bd. 323, S. 328
Fig. 96.Pumpenventil mit Lederstulpdichtung der Gasmotorenfabrik
Deutz.
Fig. 97 zeigt eine liegende, doppeltwirkende
Kolbenpumpe der Gasmotorenfabrik Deutz, wie sie für
kleinere Leistungen – 5,5–80 cbm/Std. bei 120–70 Uml./Min. – eine Gesamtförderhöhe
von 50 m und für Saughöhen bis 7 m vielfach ausgeführt ist.
Der Riemenantrieb der Pumpe kann unmittelbar vom Motor oder von einer
Wellenleitung aus erfolgen.
Textabbildung Bd. 323, S. 329
Fig. 97.Doppeltwirkende Kolbenpumpe der Gasmotorenfabrik Deutz.
Der mit der runden Kreuzkopfführung zusammengegossene Gabelrahmen besitzt unter 45°
geteilte Lager. Die Pumpe arbeitet mit Gruppenventilen der Fig. 98 ersichtlichen Konstruktion.
Je ein Saug- und Druckventil sitzen auf einer gemeinsamen Spindel und werden durch
eine Druckschraube im Pumpenkörper gehalten, nach deren Lösen sie sofort entfernt
werden können. Gegen das Gehäuse sind sie durch Rundgummischnüre abgedichtet, die
Ventilteller durch Gummifedern belastet.
Innerhalb des runden Pumpenkörpers ist zu beiden Seiten jedes Saugventils und in
deren unmittelbaren Nähe ein Saugwindkessel und über den Druckventilen eine
reichlich groß bemessene Windhaube vorgesehen. Für Saugleitungen bis 50 m und für
Druckleitungen bis 150 m Länge können infolgedessen besondere Windkessel entbehrt
werden.
Textabbildung Bd. 323, S. 329
Fig. 98.Gruppenventil für Kolbenpumpen der Gasmotorenfabrik Deutz.
Der Kolben wird bis 40 m Druckhöhe mit Lederstulpen ausgerüstet, darüber hinaus
jedoch mit metallenen Dichtungsringen versehen.
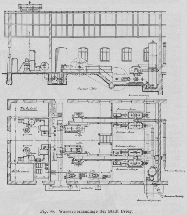
Eine von der Gasmotorenfabrik Deutz im Jahre 1906
ausgeführte Wasserwerksanlage der Stadt Brieg zeigt Fig.
99. Sie besteht aus zwei voneinander unabhängingen Maschinensätzen, von
denen jeder 4,5 cbm/Min. Rohwasser auf etwa 15 m und 4,18 cbm/Min. Reinwasser auf
etwa 37,5 m Gesamthöhe fördert. Je ein liegender 70 pferdiger Sauggasmotor
treibt mittels Riemen eine doppeltwirkende Zwillingsplungerpumpe der Fig. 97 ersichtlichen Bauart, deren eine Hälfte das
Rohwasser und deren andere Hälfte das Reinwasser hebt.
Textabbildung Bd. 323, S. 329
Fig. 99.Wasserwerksanlage der Stadt Brieg.
(Fortsetzung folgt.)