| Titel: | Versuche über Torsion rechteckig-prismatischer Stäbe. |
| Autor: | August Hempelmann |
| Fundstelle: | Band 322, Jahrgang 1907, S. 773 |
| Download: | XML |
Versuche über Torsion rechteckig-prismatischer
Stäbe.
Von August Hempelmann, Diplomingenieur.
Versuche über Torsion rechteckig-prismatischer Stäbe.
Einführung.
Für den Verdrehungswinkel eines prismatischen, rechteckigen Stabes unter
Torsionsbelastung wird zur Zeit fast allgemein die Formel
D=C\cdot \frac{M}{G}\cdot \frac{b^2+c^2}{b^3\cdot c^3}
benutzt, in welcher bedeutet:
D den Drall, d.h. die Verdrehung auf
die Längeneinheit,Siehe Brauer, Festigkeitslehre, S. 107
unten.
M das Torsionsmoment in kg/mm,
G den sogenannten Gleitmodul in kg/qmm,
b u. c
die halben Seiten des rechteckigen Querschnittes in mm.
Der konstante Faktor C wird innerhalb ziemlich weiter
Grenzen, nämlich von 0,1875 bis 0,281Siehe Brauer, Festigkeitslehre, S. 111.
verschieden angegeben, so daß die nach der Formel berechneten Werte Unterschiede von
rd. 50 v. H. in bezug auf den kleineren Wert ergeben können. Da keine Aussicht
vorhanden ist, die Unsicherheit durch theoretische Erwägungen zu beseitigen, so kann
man nur auf experimentellem Wege prüfen, welcher der verschiedenen Werte von C der Wahrheit am nächsten kommt. Einen Beitrag zur
Klärung dieser Frage bilden die in vorliegender Arbeit beschriebenen Versuche,
welche ich im Mechanischen Laboratorium der Technischen Hochschule zu Karlsruhe
durchgeführt habe. Für die Anregung sowohl wie für fortlaufende Unterstützung bin
ich Herrn Geh. Hofrat Prof. E. Brauer zu wärmstem Dank
verpflichtet.
Nachdem eine ältere Theorie die Torsionsbeanspruchung unter der Annahme eben
bleibender Normalschnitte behandelt hatte, hat bekanntlich de Saint-Venant in seinen berühmten AufsätzenDie Veröffentlichungen de Saint-Venants sind erschienen in den Comptes rendus des séances
de l'Académie des sciences in den Jahrgängen 1842, 1847, 1853, 1878 und
1879. Siehe auch Hermann: „Vollständige
Lösung des de Saint-Venantschen
Problemes“. Zeitschrift des österr. Ingenieur- und
Architekten-Vereins 1881, S. 122 u. folg., sowie Jahrg. 1883, S. 169 u.
folg. gezeigt, daß diese Annahme für andere als kreisförmige
Querschnitte nicht mit der Wirklichkeit in Uebereinstimmung zu bringen ist. De Saint-Venant
hat seine Untersuchungen über die Spannungsverteilung und Formänderung
prismatischer Stäbe bei reiner Drehungsbelastung auf Grund der mathematischen
Elastizitätstheorie aufgestellt. Diese Betrachtungen haben sich nicht so eingeführt,
wie es ihrer Bedeutung wohl entsprochen hätte; sie führen zu ziemlich umständlichen
Entwicklungen für die verschiedenen Querschnitte, insbesondere für den hier näher zu
behandelnden rechteckigen Querschnitt. Hierin liegt wohl der Grund, daß GrashofGrashof„Theorie der Elastizität und Festigkeit“, S. 133 und folg.
versucht hat, das Problem auf etwas andere, einfachere Weise zu behandeln. L. Henneberg, der diese beiden Methoden – die de Saint-Venantsche und die von Grashof herrührende – nach ihren Voraussetzungen und Ergebnissen
miteinander vergleicht, sagt am Schlusse seiner BetrachtungenHenneberg,„Zur Torsionsfestigkeit“. Zeitschrift für Mathematik und Physik 1904,
Bd. 51, S. 225 u. folg. von der letzteren, die er „technische
Methode “ nennt: „Man muß es sich zur Regel machen, keine Formel, die
sich durch die technische Methode ergeben hat, bei seinen Berechnungen zu
verwenden, von der nicht durch Versuchenachgewiesen ist, daß sie eine genügende
Annäherung an die tatsächlichen Spannungsverhältnisse liefert. Hier ist dem
kontrollierenden Experiment ein weiter Spielraum gegeben“. –
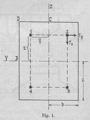
Textabbildung Bd. 322, S. 772
Fig. 1.
Bei Ermittlung der Spannungsverteilung nach Grashof
ergeben sich folgende Formeln (Fig. 1) für τy und τz:Zu demselben Ergebnis auf einem anderen Wege –
Drehungsspannungen als Schubspannungen von auf Biegung beanspruchten
Stabelementen – gelangt B. Schulz in seiner
Arbeit „Beitrag zur Torsionsfestigkeit“. Zeitschrift für Architektur
und Ingenieurwesen 1899, S. 202 u. f.
\left{{\tau_y=-\frac{9}{16}\cdot \frac{M}{b\cdot c^3}\,\left(1-\frac{y^2}{b^2}\right)\,z,}\atop{\tau_z=\frac{9}{16}\cdot \frac{M}{b^3\cdot
c}\,\left(1-\frac{z^2}{c^2}\right)\,y,}}\right\ .\ .\ .\ .\ 1)
für die resultierende Spannung τ
\tau=\frac{9}{16}\cdot \frac{M}{b\cdot c}\,\sqrt{\frac{z^2}{c^4}\,\left(1-\frac{y^2}{b^2}\right)^2+\frac{y^2}{b^4}\,\left(1-\frac{z^2}{c^2}\right)^2} 2)
und die größte Schubspannung τmax, wenn c > b und y = b, z = 0 ist zu
\tau_{\mbox{max}}=\frac{9}{16}\cdot \frac{M}{b^2\cdot c} . . . . . 3)Dieser Wert für τmax stimmt mit dem Saint-Venantschen Wert ziemlich genau überein,
er ist etwas kleiner.Autenrieth hat in seinem Aufsatz „Beitrag zur
Bestimmung der größten Schubspannung im Querschnitt eines geraden auf
Drehung beanspruchten Stabes“. Zeitschrift d. Vereins deutsch.
Ingenieure 1901, S. 1099 u. f. für den rechtwinkligen Querschnitt die größte
Spannung mit dem Wert\tau_{\mbox{max}}=\frac{9}{14}\cdot \frac{M}{b^2\cdot c}gefunden, während Herrmann In dem schon zitierten Aufsatz (Seite 3, Anm. 3) für die
größte Spannung den Wert\tau_{\mbox{max}}=0,60375\,\frac{M}{b^2\cdot c}berechnet.
Der Drallwinkel nach verschiedenen
Berechnungsverfahren.
I. Verfahren nach Föppl.
Föppl bestimmt den Drallwinkel auf Grund der ArbeitSiehe Föppl,
Technische Mechanik Bd. III, 2. Aufl., S. 362.. Die elastische
Energie eines tordierten Stabes f. d. Längeneinheit beträgt
A=\frac{1}{2}\,M\cdot D . . . . . . 4)
Ebenso groß muß die in den einzelnen Volumenelementen (d V) vorhandene Deformationsarbeit sein.
Diese innere Arbeit ergibt sich aus der Gleichung
A = ∫dV
∫(τyδγy
+ τzδγz) . . . 5)
Nun ist bekanntlich
τy= G . γy, τz= G . γz, τy2 + τz2 = τ2,
dV = l . dF .
l = 1.
Somit läßt sich schreiben
A = ∫dF
∫(Gγyδγy
+ Gγzδγz)
oder
A=\frac{1}{2\,G}\,\int\,\tau^2\,d\,F . . . . . 6)
Aus Gleichung 4 und 6 folgt
A=\frac{1}{2}\,M\,D=\frac{1}{2\,G}\,\int\,\tau^2\,d\,F
oder
D=\frac{1}{G\cdot M}\cdot \int\,\tau^2\,d\,F,
nach Gleichung 2 ist
\tau^2=0,316\,\frac{M^2}{b^2\cdot c^2}\,\left[\frac{z^2}{c^4}\,\left(1-\frac{y^2}{b^2}\right)^2+\frac{y^2}{b^2}\,\left(1-\frac{z^2}{c^2}\right)^2\right],
\left(\frac{9}{16}\right)^2=0,316.
D=\frac{4\cdot 0,316\cdot M}{b^6\cdot c^6\cdot G}\,\left[\int\int\,(z^2\,b^4-2\,z^2\,b^2\,y^2+z^2\,y^4)\,d\,y\,d\,z+\int\int\,(y^2\,c^4-2\,y^2\,c^2\,z^2+y^2\,z^4)\,d\,y\,d\,z\right],
D=\frac{4\cdot 0,316\cdot M}{b^6\cdot c^6\cdot G}\,\left[\frac{8}{45}\,b^5\,c^3+\frac{8}{45}\,b^3\,c^5\right],
D=\frac{9\cdot 9}{16\cdot 16}\cdot \frac{4\cdot 8}{45}\cdot \frac{M}{G}\cdot \frac{b^2+c^2}{b^3\cdot c^3},
und wir erhalten einen ersten Wert für den Drall:
D=\frac{9}{40}\cdot \frac{M}{G}\cdot \frac{b^2+c^2}{b^3\cdot c^3};\ \frac{9}{40}=0,225 . . . 7)
II. Verfahren nach
Grashof.
Grashof leitet für den Drehungswinkel eine theoretische
Formel ab; er findet für den DrallGrashof, Elektrizität und Festigkeit, S. 143
Gleichung 240 und S. 144 Gleichung 245.
D=\frac{9}{32}\cdot \frac{M}{G}\,\left(\frac{1}{b^3\cdot c}+\frac{1}{b\cdot c^3}\right).
Daraus ergibt sich
D=\frac{9}{32}\cdot \frac{M}{G}\cdot \frac{b^2+c^2}{b^3\cdot c^3};\ \frac{9}{32}=0,281 . . 8)
III. Ein dritter Wert für D nach
Grashof.
Aus Gleichung 4 und 9 läßt sich die Arbeit berechnen, welche ein Stab bei gegebener
Anstrengung in sich aufzunehmen vermag.
A=\frac{M^2}{2\,G}\cdot \frac{9}{32}\cdot \frac{b^2+c^2}{b^3\cdot c^3} . . . 9)
M durch τmax (Gleichung 3) ausgedrückt
A=\frac{\tau_{\mbox{max}}^2}{2\,G}\cdot \frac{8}{9}\cdot \frac{b}{c}\,(b^2+c^2),
oder mit F = 4 b . c
A=\frac{\tau_{\mbox{max}}^2}{2\,G}\cdot \frac{2}{9}\cdot \frac{b^2+c^2}{\tau^2}\cdot F . . . 10)
Nun liefert nach den Wertheimschen VersuchenGrashof, Elastizität und Festigkeit, S.
147. Gleichung 9 etwas zu große Werte. Mit Rücksicht darauf hat
GrashofGrashof, Elastizität u. Festigkeit, S. 395 und
396 Gl. 700. Gleichung 10 mit einem Korrekturwert \frac{2}{3}\,n
multipliziert.
A=\frac{\tau_{\mbox{max}}^2}{2\,G}\cdot \frac{4}{27}\cdot n\cdot \frac{b^2+c^2}{c^2}\cdot F,
n wird nun als Mittelwert = 1,35
gesetzt,
A=\frac{{\tau_{\mbox{max}}}^2}{2\,G}\cdot \frac{b^2+c^2}{5\,c^2}\cdot 4\,b\cdot c . . 11)
Nach Einsetzung des Wertes für τmax berechnet sich D mit
D=\frac{2\cdot A}{M}=\left(\frac{9}{16}\right)^2\cdot \frac{M}{b^4\cdot c^2}\cdot \frac{b^2+c^2}{5\,c^2}\cdot \frac{4\,b\cdot
c}{G}
D=\frac{81}{320}\cdot \frac{M}{G}\cdot \frac{b^2+c^2}{b^3\cdot c^3}; \frac{81}{320}=0,253 . . . 12)
IV. Verfahren nach Bredt.
Eine andere Näherungstheorie zur Torsionsfestigkeit ist von Bredt aufgestellt worden.R. Bredt,„Kritische Betrachtungen zur Drehungselastizität“. Zeitschr. d.
Vereins deutscher Ingenieure 1896, S. 785 und 813. Nach ihm
lautet die Formel für den Drall
D=\frac{1}{2\,F\cdot G}\,\int\,\tau\,ds . . . . . . . 13)
für den vierten Teil des Rechtecks, F
= b . c (Fig. 1) ergibt sich
\int\,\tau\,ds=\int_0^c\,\tau_z\,dz-\int_b^0\,\tau_y\,(-dy)=\int_0^c\,(\tau_z)_{y=b}\cdot dz+\int_0^b\,(\tau_y)_{z=0}\,dy.
Nach Einsetzung der Werte findet man
\int\,\tau\,ds=\frac{3}{8}\,M\cdot \frac{b^2+c^2}{b^2\cdot c^2}
Damit wird
D=\frac{1}{2\,b\cdot c\cdot G}\cdot \frac{3}{8}\cdot M\cdot \frac{b^2+c^2}{b^2\cdot c^2}
und wir erhalten einen vierten Wert
D=\frac{3}{16}\cdot \frac{M}{G}\cdot \frac{b^2+c^2}{b^3\cdot c^3}; \frac{3}{16}=0,1875 . 14)
V. Ein fünfter Wert für D.
Aus Gleichung 13
∫τds = 2GFD
läßt sich für ein Flächenelement dy . dz die schon von Bredt gegebene GleichungSiehe den
schon zitierten Aufsatz von Bredt, S. 787, Gl.
3 und Brauer, Festigkeitslehre, S.
110.
\frac{\delta\,\tau_z}{\delta\,y}-\frac{\delta\,\tau_y}{\delta\,z}=2\,G\,D . . . . . 15)
ableiten. Diese Gleichung ist nun mit dem von Grashof angenommenen Spannungsgesetz und dem Resultate
in den Gleichungen 1 nicht zu vereinigen, denn wir erhalten aus Gleichungen 1
für
\frac{\delta\,\tau_z}{\delta\,y}=\frac{9}{16}\cdot \frac{M}{b^3\cdot c^3}\cdot (c^2-z^2)
-\frac{\delta\,\tau\,y}{\delta\,z}=\frac{9}{16}\cdot \frac{M}{b^3\cdot c^3}\,\left(b^2-y^2)\right),
und der Drall wird damit
D=\frac{9}{32}\cdot \frac{M}{G}\cdot \frac{b^2+c^2-y^2-z^2}{b^3\cdot c^3};\ \frac{9}{32}=0,281 . . 16)
Für z = 0, y = 0 erhalten wir die von Grashof abgeleitete, theoretische Formel (Gleichung 8).
Für die Mitte der großen Seite, z = 0, y = b, wird
D=\frac{9}{32}\cdot \frac{M}{G}\cdot \frac{1}{c\cdot b^3}
für die Mitte der kleinen Seite, y
= 0, z = c,
wird
D=\frac{9}{32}\cdot \frac{M}{G}\cdot \frac{1}{b\cdot c^3}
und für die Ecke, y = b, z = c wird
D = 0.
Der Drallwinkel ist also in den verschiedenen Elementen verschieden; das Resultat
stimmt nicht mit der Hypothese überein, daß die Querschnitte sich in der yz Projektion nicht ändern, da D von y und z
nicht unabhängig ist.
(Fortsetzung folgt.)