| Titel: | Nordamerikanische Eisenbauwerkstätten. |
| Autor: | H. Reissner |
| Fundstelle: | Band 321, Jahrgang 1906, S. 164 |
| Download: | XML |
Nordamerikanische Eisenbauwerkstätten.In Fig. 53–54 sind noch nachträglich die Aussenansichten,
sowie die Längs- und Querschnitte der Hauptwerkstatt und Haupthalle des
Ambridge-Werkes der American Bridge Co. gegeben, die auf Seite 145–149
beschrieben sind.
Von Dr.-Ing. H.
Reissner, Berlin.
(Fortsetzung von S. 149 d. Bd.)
Nordamerikanische Eisenbauwerkstätten.
Hilfsbrückenwerkstatt.
Die Hilfsbrückenwerkstatt mit den Abmessungen 180 . 584' (54,9 . 178 m) wird
entsprechend der anliegenden Hauptwerkstatt gebaut und ausgerüstet werden, nur dass
sie keine Endquerhalle erhalten soll.
Textabbildung Bd. 321, S. 164
Fig. 53. Ambridge-Werk der American Bridge Co. Aussenansichten der
Hauptwerkstatt.
Die Maschinen werden dieselben oder ähnliche wie in der Hauptwerkstatt und
hauptsächlich für genietete Stützen, Fachwerkträger und ähnliche leichte Arbeit
geeignet sein. Das Eisengewicht für dies Gebäude wird etwa 1900 t betragen.
Augenstabwerkstatt.
Der Entwurf des Gebäudes, wie ihn Fig. 55 zeigt, ist
der Aufstellung der schweren Schmiedemaschinen und den Forderungen für Transport und
Bearbeitung langer, schwerer Flacheisen angepasst. Trotz der Abmessungen von 67 .
68,6 m stehen im Innern der Halle selbst nur zwei Stützen, welche
Fachwerkträger zur Auflagerung der inneren Binder aufnehmen.
Das Gebäude besteht aus einer hohen Mittelhalle, in der die Maschinen selbst stehen
und die durch einen 20 t Laufkran bedient wird, und zwei niedrigeren Seitenhallen,
von denen erst eine für die Arbeitstische derdMaschinen, für den Ausglühofen und die
Ausbohrmaschinen benutzt wird, während die andere für die spätere Unterbringung
der Ausrüstung für leichte Augenstäbe bis zu 8'' (20,3 cm) breit, bestimmt ist. Beide
werden von je zwei quer zu den Tischen und Bindern laufende Laufschienengleise mit 5
t Laufkränen beherrscht, die mit Hebebalken ebenso wie einige der in der
Hauptwerkstatt beschriebenen für die langen sich sonst durchbiegenden Flacheisen
versehen sind.
Textabbildung Bd. 321, S. 165
Fig. 54a. Ambridge-Werk der American Bridge Co. Längs- und Querschnitte durch
Längsschiff der Haupthalle.
Textabbildung Bd. 321, S. 165
Fig. 54b. Ambridge-Werk der American Bridge Co. Querschnitt des Querschiffes
der Haupthalle.
Zum Ein- und Ausfahren laufen an den Wänden parallel mit den Tischen zwei
Schmalspurgleise durch die Werkstatt hindurch, von denen das Einfahrgleis eine
dritte Schiene für Vollspurwagen besitzt.
Textabbildung Bd. 321, S. 166
Fig. 55. Ambridge-Werk der American Bridge Co. Grundriss und Querschnitte der
Augenstabwerkstatt.
Textabbildung Bd. 321, S. 166
Fig. 57. Ambridge-Werk der American Bridge Co. Gesenkschmiedepresse der
Augenstabwerkstatt.
Das Druckwasser für die hydraulischen Maschinen wird von einer Worthington-Duplexpumpe in der Hauptkraftzentrale
geliefert.
Die Wände sind in einer Höhe von 2½ m aus Beton, darüber befindet sich ein
ununterbrochener Gürtel von 3,05 m hohen Fenstern, über denen sich dann ein Streifen
von galvanisch verzinkter Eisenblechauskleidung erstreckt.
Das Dach der Mittelhalle ist als Oberlicht ausgebildet, an das sich dann in den
Seitenhallen quer dazu laufende, aufgesetzte Oberlichter anschliessen.
Die Aufstellung der Maschinen in der Augenstabwerkstatt ist in Fig. (55a) gegeben. Der Arbeitsgang, den die Augenstäbe in
diesen Maschinen durchzumachen haben, ist der folgende:
Warmmachen und Stauchen.
Augenstabflacheisen werden vom Wagen durch Laufkran entladen und auf Schienenböcken
vor den Glühöfen aufgestapelt. Sie werden in die Oefen ein- und ausgeführt mit Hilfe
einer besonderen Lademaschine, die auf den Krangleisen des Seitenschiffes läuft.
Fig. 56 zeigt die Maschine schematisch im
wesentlichen als einen Laufkran von 2772' (8,38 m) Spannweite mit einem
Versteifungshebebalken von 41' (12,5 m) Länge, der ebenso mit Parallelführung
aufgehängt iwt wie die Versteifungsbalken einiger Laufkräne in der Hauptwerkstatt.
Da der Balken beim Einschieben der Flacheisen in die Oefen in seiner Längsrichtung
auszuweichen sucht, ist er mit zwei teleskopisch ineinander verschiebbaren von
Balken bis Kranbrücke
Textabbildung Bd. 321, S. 167
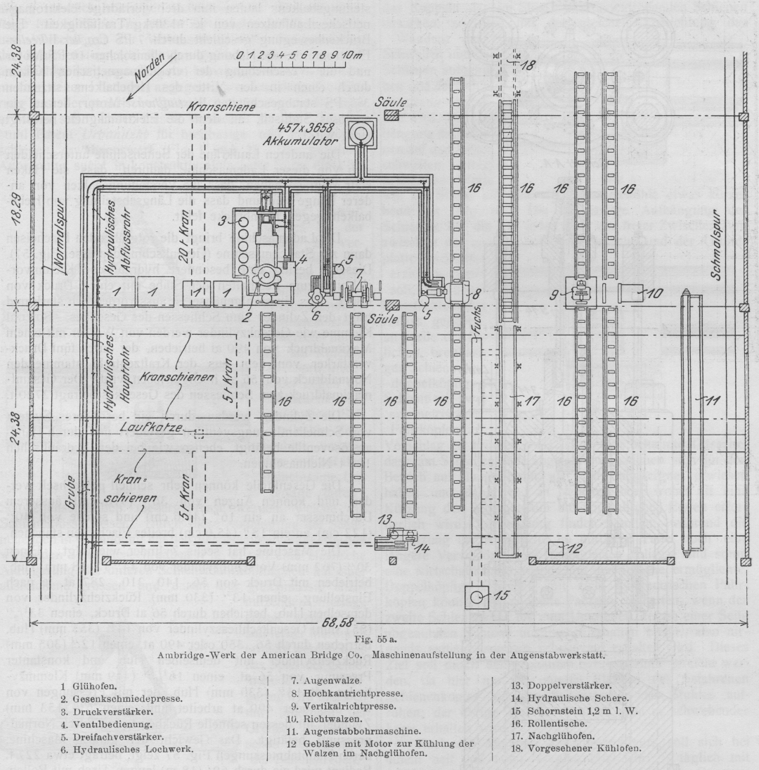
Fig. 55a. Ambridge-Werk der American Bridge Co. Maschinenaufstellung in der
Augenstabwerkstatt.
1 Glühofen; 2.
Gesenkschmiedepresse; 3. Druckverstärker; 4. Ventilbedienung; 5.
Dreifachverstärker; 6. Hydraulisches Lochwerk; 7. Augenwalze; 8.
Hochkantrichtpresse; 9. Vertikalrichtpresse; 10. Richtwalzen; 11.
Augenstabbohrmaschine; 12. Gebläse mit Motor zur Kühlung der Walzen im
Nachglühofen; 13. Doppelverstärker; 14. Hydraulische Schere; 15. Schornstein 1,2
m l. W.; 16. Rollentische; 17. Nachglühofen; 18. Vorgesehener Kuhlofen
Textabbildung Bd. 321, S. 167
Fig. 56. Ambridge-Werk der American Bridge Co. Lademaschine für die Glühofen
der Augenstabwerkstatt.
Textabbildung Bd. 321, S. 168
Fig. 58. Ambridge Werk der American Bridge Co. Hydraulische Schere in der
Augenstabwerkstatt.
laufenden senkrechten Zylindern versehen, die gegeneinander
durch Diagonalen versteift sind. Auf den Innenflanschen des als Kastenträger
ausgebildeten Versteifungsbalkens laufen nun drei vierrädrige elektromagnetische
Laufkatzen von je 1130 kg Tragfähigkeit. Die Brückenbewegung geschieht durch 7 PS
Crocker-Wheeler-Elektromotor, die Hebung durch
ebensolchen 10 PS Motor und die Verschiebung der elektromagnetischen Katzen durch
einen in der glitte des Hebebalkens sitzenden 3½ PS staubgeschützten Westinghouse-Motor, der auf ein endloses Stahlseil, an
dem die Elektromagnete befestigt sind, wirkt.
Die anderen Laufkräne der Seitenschiffe unterscheiden sich von dieser Lademaschine
dadurch, dass sie Haken statt Magnete haben, dass die Versteifungsbalken von anderer
Länge sind und dass die Längsabsteifung von Hebebalken gegen Kranbrücke fehlt.
Die Lademaschine bringt die rotglühenden Flacheisen dann zur Stauchmaschine
(Gesenkschmiedepresse, Fig. 57). Dieselbe besitzt
eine besondere hydraulische Klemmvorrichtung zum Festhalten der Stäbe mit einem
Druck von 680 t. Das Gusstahlgehäuse ist ausserordentlich stark und trägt den
Zylinder zum Schliessen des Gesenkes. Sowohl Klemme wie Gesenkzylinder werden von
Wasser mit einem Maximaldruck von 490 at betrieben, der durch fünf Druckverstärker
von dem aus der Kraftzentrale stammenden Normaldruck von 56 at hochgetrieben wird.
Der Gesamtmaximaldruck zum Schliessen des Gesenkes beträgt 2720 t.
Die Zylinder werden durch ein besonderes System von Schnellentlastungsventilen
gesteuert und durch Handauslöseventile betätigt, ebenso wie bei den hydraulischen
100 t-Nietmaschinen.
Die Gesenkteile können sehr schnell gewechselt werden und können Augen von 36'' (915
cm) äusserem Durchmesser an ein 16'' (40,6 cm) und solche von 40'' (122 cm) an ein
18'' (45,6 cm) breites Flacheisen stauchen.
Die Maschine hat sechs Zylinder wie folgt: Einen 30'' (762 mm) Vorschubzylinder von
44'' (1118 mm) Hub. betrieben mit Druck von 56, 140, 210, 287 at, je nach
Einstellung, einen 13'' (330 mm) Rückziehzylinder von demselben Hub, betrieben durch
56 at Druck, einen 33½'' (851 mm) Gesenkschliesszylinder von 14'' (355 mm) Hub.
betrieben durch 56, 350 oder 490 at, einen 12'' (305 mm) Rückziehzylinder mit
demselben Hub und konstanter Pressung von 56 at, einen 16½'' (419 mm) Klemmzylinder
mit 13'' (330 mm) Hub, der mit Pressungen von 56, 350 oder 490 at arbeitet und einen
6'' (153 mm) Zylinder für dessen schnelle Rückbewegung durch Normalpressung
betätigt. Das Gewicht der ganzen Maschine, deren Hauptabmessungen Fig. 57 zeigt, beträgt etwa 227 t. Bedient wird sie
durch 60' (18 m) langen Tisch mit Rollen, die durch eine Spindel mit
Schneckenverzahnung und einen 5½ PS Westinghouse-Motor
getrieben werden. Die Bewegung der Rollen ist umkehrbar und gibt die vollständige
Herrschaft über die Bewegung des Flacheisens, so dass sehr wenig Einstellung von
Hand nötig ist. Solche Rollentische besitzen auch die anderen hydraulischen
Pressmaschinen.
(Fortsetzung folgt.)