| Titel: | Die Drahtseilbahnen. |
| Autor: | Stephan |
| Fundstelle: | Band 319, Jahrgang 1904, S. 680 |
| Download: | XML |
Die Drahtseilbahnen.
Von Regierungsbaumeister Stephan.
(Fortsetzung von S. 537 d. Bd.)
Die Drahtseilbahnen.
Textabbildung Bd. 319, S. 680
Fig. 32. Leichte Zugseiltragrolle.Fig. 33. Tragseilspannfeder.
Das Zugseil muss auf den Stützen ebenfalls Auflagerung finden. Die hierzu dienenden
Gusseisenrollen erfahren nun eine sehr starke Abnutzung, weshalb man sie entweder
ganz besonders leicht, etwa nach Fig. 32 ausführt, so
dass die Erneuerung nur geringe Kosten verursacht, oder um eine längere Haltbarkeit
zu erzielen, eine recht schwere Konstruktion mit besonders starkem Laufmantel wählt
(vergl. Fig. 30, S. 535). Als zweckmässigste
Ausführung hat sich eine Verbindung beider Gesichtspunkte herausgestellt, eine
gusseiserne Rolle mit schwerem Laufmantel, der in der Mitte, wo das Seil am
stärksten angreift, mit einem leicht auswechselbaren Schmiedeiseneinsatz versehen
ist. Da die normalen Wagen je nach dem Inhalt des Wagenkastens eine von Oberkante
Tragseil bis Unterkante des Wagenkastens gemessene Höhe von 1,75–1,90 m haben, so
ist damit die Höhenlage der Zugseiltragrollen festgelegt, die naturgemäss so hoch
als möglich angeordnet werden sollen.
Textabbildung Bd. 319, S. 680
Fig. 34. Tragseilspannvorrichtung.
Die Tragseile werden in der einen Endstation fest verankert und am anderen Ende meist
durch angehängte Gewichte gespannt. Da die Seile zur Führung über die nötigen
Ablenkungsscheiben zu steif sind, so werden sie mit Hilfe einer Endkupplung, deren
Konstruktion ganz den Zwischenkupplungen entspricht, gewöhnlich mit einer über die
Ablenkungsrollen gehenden Kette verbunden, an der das Gewicht hängt. Weil die Kette
ständige, wenn auch nur kleine Bewegungen macht, so nutzen sich die einzelnen
Kettenglieder sehr schnell ab; man ist deshalb in letzter Zeit dazu übergegangen,
hier die flachlitzigen Seile von Felten & Guilleaume zu verwenden, die bei sehr glatter
Oberfläche sich den Rollen gut anschmiegen. Allerdings können die Kettenrollen
wesentlich kleiner ausgeführt werden als die je nach der Seilstärke etwa 0,8 bis 1,2 m
messenden Seilscheiben. Die Anschlussketten oder Seile sollenmit
Berücksichtigung der Biegungs-Beanspruchung immer noch dieselbe Sicherheit haben wie
das Tragseil. Eine Tabelle der flachlitzigen Seile findet sich „Hütte“ I, S.
657.
Die Spanngewichte wurden früher allgemein als Holzkästen konstruiert, die mit Steinen
oder Eisenbruch angefüllt wurden. Besser nehmen sich die Mäntel alter Dampfkessel
aus. Neuerdings werden die Gewichte vielfach aus Zementbetonplatten gebildet, die
auf einer kleinen, gusseisernen Grundplatte, in deren Mitte eine Zugstange angreift,
aufeinandergesetzt werden. Bisweilen findet man auch keine selbsttätige
Spannvorrichtung, sondern die Tragseile werden mit Hilfe eines eingeschalteten
Flaschenzuges nach Bedarf durch eine Winde angezogen. Für ganz kurze Bahnstrecken
bis zu 120 m Länge genügt die Anspannung durch am Ende angebrachte Federn. Eine
solche Federvorrichtung ist in Fig. 33
abgebildet.
Textabbildung Bd. 319, S. 681
Fig. 35. Tragseilspannvorrichtung in Eisen.
Textabbildung Bd. 319, S. 681
Fig. 36. Längsprofil einer Bahn deutschen Systems.
Textabbildung Bd. 319, S. 681
Fig. 37. Uebertriebstation.
Da die Auflagerschuhe der freien Bewegung der Tragseile, besonders bei Stützen, die
durch den Seilzug stark belastet werden, einen gewissen Widerstand entgegensetzen,
für den der Reibungskoeffizient μ = 0,1 angenommen
werden kann, so ist es nötig, sobald die Bahn länger als 2,5 km ist, die Tragseile
in Entfernungen von etwa 2 km zu unterbrechen und dort eine Spannvorrichtung
anzuordnen. An der Unterbrechungsstelle laufen die Wagen auf Hängebahnschienen wie
in den Stationen. Die Konstruktions-Einzelheiten einer derartigen, in Holz
ausgeführten Spannvorrichtung gibt Fig. 34 nach
einer Ausführung von Th. Otto in Schkeuditz. Die zu
spannenden Tragseile sind durch nahezu wagerecht liegende Rollen nach der Mitte
abgelenkt und werden vermittels angeschlossener flachlitziger Seile durch die in
hölzernen Kasten untergebrachten Gewichte angezogen. Statt der Ablenkungsrollen
werden auch gebogene Schienen von grossem Radius benutzt, die sorgfältig geglättet
sind (vergl. Fig. 38). Die fest zu verankernden
Seile werden über entsprechend geformte Ablenkungstragschuhe nach der ebenfalls in
der Mitte befindlichen Verankerung geführt. Um zu starkes Pendeln der Wagen beim
Durchlaufen der Spannstation zu verhindern, sind im vorliegenden Falle noch
besondere Führungsschienen angeordnet worden, die häufig auch weggelassen werden,
wie Fig. 35 zeigt, die eine Spannvorrichtung mit
eisernem Gestell nach einer Pohligschen Ausführung
darstellt. Wenn grosse Spannweiten in der Strecke vorkommen, die unter der
wechselnden Belastung grössere Verschiebung der Seile hervorrufen, so sind die
Spannvorrichtungen in entsprechend kürzeren Abständen anzuordnen.
Textabbildung Bd. 319, S. 682
Fig. 38. Führung- des Zugseiles in den Stationen.
Ein interessantes Beispiel hierfür und für die Art der Seilführung gibt Fig. 36, die das Profil einer 8 km langen, von J. Pohlig zum Transport von Holz für eine stündliche
Leistung von 10 t gebauten Drahtseilbahn zeigt. Wie man sieht, schliesst sich die
Bahn in den grossen Tälern dem Terrain so weit als möglich an.
Der Antrieb der in Fig. 36 dargestellten Bahn
befindet sich etwa in der Mitte der ganzen Anlage, wo ein Winkelpunkt der Bahntrace
liegt. Im allgemeinen pflegt man bei Bahnen über 7 km Länge das Zugseil nicht mehr
in einer Länge durchzuführen, sondern zerlegt es in zwei getrennte Kreisläufe, die
hier sehr vorteilhaft in der Winkelstation ihren gemeinsamen Antrieb erhalten.
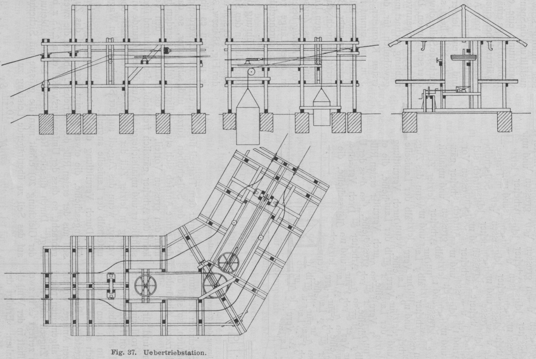
Erfolgt der Antrieb in einer Endstation, so ist in der Mitte eine
Uebertriebstationeinzurichten, Vielfach wird das eine Zugseil über eine
festgelagerte Endseilscheibe geführt und bewegt mit Hilfe eines Kegelräderpaares
eine wagerechte Welle, die ihrerseits die Antriebsscheibe des zweiten Seilkreises
wieder durch ein gleiches Zahnräderpaar antreibt. Wenn es irgend angängig ist, tut
man besser, die Räderübersetzung wegzulassen und die Scheiben beider Kreisläufe auf
derselben dann senkrecht stehenden Welle anzuordnen, wie es Fig. 37 an Hand einer Ausführung von Ceretti & Tanfani
zeigt.
Im übrigen können die Einzelheiten der Station dieselben sein wie die einer
Endstation. Die Wagen müssen von Hand auf Hängebahnschienen durch die Station bewegt
werden, doch ist es auch möglich, durch Neigung der Schienen im Verhältnis 1 : 50
die Wagen durch ihr Eigengewicht weiter laufen zu lassen, wenn die
Kupplungsvorrichtung so eingerichtet ist, dass sie vollkommen selbsttätig arbeitet.
Der Grund für die Anordnung von Zwischenstationen ist der, dass bei zu grosser Länge
und ungünstigem Terrain das ganze Zugseil unnötig schwer ausfällt und die
Spannvorrichtung eine erhebliche Länge erhält, während bei einer Teilung das vom
Antrieb entferntere Seil und, wenn letzterer in der Mitte liegt, sogar beide Seile
schwächer sein können. Die Länge der Spannvorrichtung rechnet man gewöhnlich für den
ersten Kilometer zu 3 m und nimmt für jeden folgenden Kilometer 1 m mehr. Bemerkt
sei noch, dass unter günstigen Umständen das Zugseil von J.
Pohlig bereits in einer Länge von 10 km durchgeführt worden ist.
Die Führung des Zugseiles in den Stationen ergibt sich aus den Fig. 38 bezw. 39, je
nachdem es über oder unter dem Tragseil liegt. Im ersteren Falle werden die Achsen
der Seilscheiben kürzer und schwächer, so dass der ganze Antrieb sich etwas billiger
stellt, ausserdem hat man den grossen Vorteil, dass die Station für den Verkehr der
Arbeiter gänzlich freibleibt, also bedeutend übersichtlicher und unfallsicherer ist.
Aus diesem Grunde wird häufig in letzter Zeit der Antrieb selbst dann nach oben
verlegt, wenn das Zugseil auf der Strecke an den Wagen unterhalb der Laufseile
angreift.
Durch Vermittlung der kleineren, vorgelegten Umführungsscheibe, die etwas geneigt
liegt, wird das Zugseil aus der ersten Rille der Antriebsscheibe auf die zweite
gebracht, so dass der Umfassungswinkel etwa 2,75 π
beträgt. Durch dieselbe Rechnung wie bei der Ableitung der Gleichung 20) erhält man
die grösste mit Sicherheit auf das Seil zu übertragende Leistung zu
N=\frac{10,25}{1000}\,S\,v . . . . 30)
worin S die Spannung des auflaufenden Seiltrums
ist, die, wenn die Bahn eine Bergkuppe überschreitet, nicht mehr die grösste im Seil
auftretende Spannkraft zu sein braucht. Ist letzteres doch der Fall, so ergibt sich
wieder unter Benutzung der Gleichungen 3) und 4) und des Zusammenhanges
q\,\sim\,\frac{1}{2}\,\pi\,\frac{d^2}{4}
N\,\sim\,\frac{4\,C}{1000}\,d^2\,v . . . . 31)
worin die Seilstärke d in cm und
die Geschwindigkeit v in m/sek gegeben ist.
(Fortsetzung folgt.)