| Titel: | Der neue Portaldrehkran für den Ostkai des Freibezirks des Stettiner Hafens. |
| Autor: | Heinr. Rupprecht |
| Fundstelle: | Band 319, Jahrgang 1904, S. 8 |
| Download: | XML |
Der neue Portaldrehkran für den Ostkai des
Freibezirks des Stettiner Hafens.
Von Dipl.-Ing. Heinr. Rupprecht, Magdeburg.
Der neue Portaldrehkran für den Ostkai des Freibezirks des
Stettiner Hafens.
Nachdem die städtische Hafendeputation in Stettin die
Erweiterung der Krananlagen beschlossen hatte, erhielt die bekannte Kranbauanstalt
von Ludwig Stuckenholz in Wetter a. d.
Ruhr, die auch vor Jahren die gesamten, damals noch hydraulischen
Portaldrehkrane für den Frei- und Holzhafen in Bremerhaven geliefert hat, den
Zuschlag auf Lieferung eines elektrisch angetriebenen Vollportaldrehkranes für 10000
kg Tragfähigkeit bei 11,50 m Ausladung des drehbaren Auslegers. Der Kran sollte
gemäss den Bedingungen ausschliesslich Zuleitung und Sandballast das Gewicht von
50000 kg erhalten, das sich mit 17000 kg auf das Portalgerüst und mit 33000 kg auf
die Drehscheibe und die übrigen Konstruktionsteile verteilte; ein Unterschied von 3
v. H. nach ober- oder unterhalb dieser Grenzen wurde als zulässig gewährt.
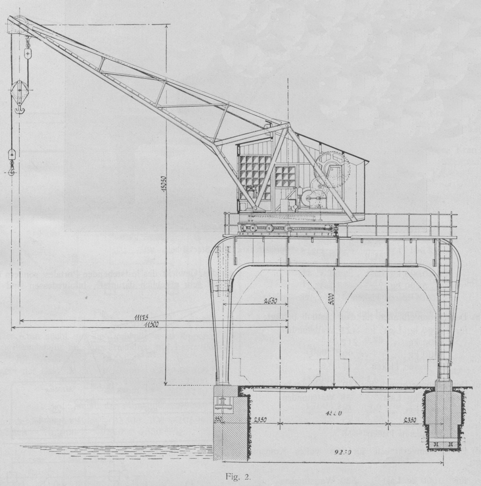
Die Gesamtanordnung des Kranes (s. Fig. 1–3) besteht im wesentlichen aus zwei Teilen: aus dem
feststehenden Portalgerüst und dem auf demselben gelagerten, drehbaren Kran. – Das
gesamte Portalgerüst ist aus Schmiedeeisen hergestellt und besteht aus den beiden,
als vollwandige Blechträger ausgebildeten Portalhauptträgern, die durch zweckmässige
Versteifungen zu einem konstruktiven Ganzen verbunden sind. Oberhalb der
Portalträger liegt zwischen denselben, auf der Südseite, eine bequeme Galerie, die
mit kiefernen Bohlen abgedeckt ist und durch eine bequeme Handleiter mit
zweiseitigen Handleisten ein sicheres Besteigen des Portales gestattet. Um auch die
Zugänglichkeit des Kranes in jeder Stellung des Auslegers zu ermöglichen, ist der
Laufsteg noch in entsprechender Weise über die Hauptportalträger fortgeführt und
durch ein kräftiges, schmiedeeisernes Rundeisengeländer die Gefahr des Abstürzens
der das Portal begehenden Bedienungsmannschaft vermieden. Nach der Landseite hin ist
die Fläche zwischen den Portalhauptträgern nicht abgedeckt, um den freien Ausblick
des Kranführers zwischen den Trägern hindurch auf das Arbeitsfeld nicht zu
beeinträchtigen.
Auf der mittleren oberen Fläche des Portals ist ein schmiedeeiserner Ring angeordnet,
welcher die Laufschienen für die Drehrollen des Drehkranzes aufnimmt. Damit der Ring
nirgends ganz frei liegt, ist eine Zwischenkonstruktion mit durchlaufenden Trägern
zum Tragen des Ringes angeordnet, so dass Durchbiegen des Ringes durchaus vermieden
ist. Gleichzeitig dient die Zwischenkonstruktion zur Lagerung des Mittelzapfens, der
die Zentrierung des drehbaren Auslegers und des Rollenkranzes bezweckt. – Der
drehbare Ausleger ist aus leichtem Fachwerk ausgebildet und trägt an seinem oberen
Ende den zur Führung des Lastorgans dienenden Rollenkopf, dessen Besteigung durch
eine zwischen den Trägern angeordnete Leiter ermöglicht ist. Er ist unmittelbar mit
der mittels Laufrollen auf vorerwähntem Ring sich drehenden Drehscheibe verbunden,
auf welcher in der Mitte zwischen der Trägerkonstruktion des Auslegers das
Führerhaus mit den elektrischen Steuerapparaten und Antriebs-vorrichtungen sich
befindet. Der vordere Teil des Führerhauses ist als vollständiger Glaskasten
ausgebildet, um dem Kranführer einen bequemen Ueberblick über das gesamte
Arbeitsfeld des Kranes zu gestatten; im übrigen ist das Kranhaus mit Pitchpineholz
verkleidet und vollkommen dicht, um die Motoren und Antriebsteile gegen die
Witterungseinflüsse zu schützen. Der Zugang istdurch zwei verschliessbare Türen
ermöglicht, zu denen Aufstiege mit Handleitern vorgesehen sind. Dem Ausleger
diametral gegenüber sitzt auf der Drehscheibe der aus Schmiedeeisen hergestellte
Ballastkasten.
Textabbildung Bd. 319, S. 8
Fig. 1.
Von Interesse sind noch besonders die Antriebsmechanismen des Hub- und des Drehwerks.
Als Lastorgan ist ein biegsames Stahldrahtseil gewählt, das sich auf eine
gusseiserne Trommel mit vorgedrehten Rillen in einfacher Lage aufwickelt. Letztere
erhält ihren Antrieb von einem 42 PS-Motor der Allgemeinen
Elektrizitäts-Gesellschaft zu Berlin, welcher in der Minute 700 Umdrehungen
macht und durch drei Stirnradvorgelege auf die Trommel treibt. Das erste Vorgelege
läuft in einem geschlossenen, mit Oel gefüllten Kasten. Das Heben der Last erfolgt
mit elektrischer Energie, während das Lastsenken stromlos vor sich geht, und somit
günstigster Stromverbrauch gewährleistet ist. Zu diesem Zwecke ist im zweiten
Vorgelege das Ritzel desselben mit der Bremsscheibe verkeilt und beide sind lose auf
der Achse laufend. Durch ein Klemmgesperre bekannter Konstruktion, das fest auf der Achse sitzt,
wird die Bremsscheibe, bezw. das mit derselben fest verbundene Ritzel nur dann
mitgenommen, sobald die Antriebswelle vom Elektromotor aus betätigt wird.
Der Antrieb der Drehbewegung erfolgt vom Motor aus auf ein wagerecht angeordnetes
Schneckengetriebe, dessen Achsialdruck durch Kugellager aufgenommen wird. Die
senkrechte Schneckenradwelle ist nach unten verlängert und zu einer verzahnten Achse
ausgebildet, die in einen Zahnkranz eingreift. Für letzteren wurde
Triebstockverzahnung gewählt, weil dieselbe infolge der mit grösserer Genauigkeit
ausführbaren Durchbildung gegenüber dem Antrieb mit gegossenen Zähnen vorteilhafter
ist. Um dem bei derartigen Drehscheibenkranen in der Praxis sich häufig sehr rasch
zeigenden Verschleiss des Druckrollenringes Rechnung zu fragen, ist für dessen
rasche und bequeme Auswechslung gesorgt durch Herstellung desselben aus einzelnen
Stahlgussegmenten, die mit dem schmiedeeisernen Träger einfach verschraubt sind. Die
Zentrierung des ganzen Rollenkranzes und der oberen Drehscheibe ist durchden
aus geschmiedetem Stahl hergestellten Königszapfen bewirkt, der durchbohrt ist, um
somit in einfachster Weise die Stromzuführung zu erzielen. Als Zuleitung sind
eisenbandarmierte Kabel von 310 qmm Querschnitt und 740 m Länge verwendet.
Der Kran arbeitet mit folgenden Geschwindigkeiten und Motorenstärken:
Heben„„
von„des
10000 kg 5000 kgleeren Hakens
mit„„
91836
mmm
i. d.„„
Min.„„
Motor: 42 PSbei 700 Um-drehungen.
Die Senkgeschwindigkeit kann bis zu 60 m in der Minute gesteigert werden.
Textabbildung Bd. 319, S. 9
Fig. 2.
Textabbildung Bd. 319, S. 9
Fig. 3.
Das Drehen kann bis zu einer Umfangsgeschwindigkeit von 60 m in der Minute am
Lasthaken bei einer Belastung von 10000 kg erfolgen mit einem Motor von 12 PS und
900 minutlichen Umdrehungen.
Die Arbeitsverteilung sowie der Stromverbrauch des Kranes sind folgendermassen
festgesetzt:
a) Der Nutzeffekt der im Kran vorhandenen theoretischen Hubarbeit beträgt:
für
10000
kg
Last
63
v. H.
„
5000
kg
„
61
v. H.
„
den leeren
Haken
31,5
v. H.
b) Der Stromverbrauch für den Lasthub beträgt:
für
10000
kg
Last
423
Wattstunden
„
5000
kg
„
212
„
„
3000
kg
„
90
„
„
den leeren
Haken
17
„
c) Der Stromverbrauch für 130° Drehung beträgt:
für
10000
kg
Last
58
Wattstunden
„
5000
kg
„
55
„
„
3000
kg
„
53
„
„
den leeren
Haken
50
„
d) Der Stromverbrauch für ein volles Kranspiel beträgt:
für
10000
kg
Last
550
Wattstunden
„
5000
kg
„
340
„
„
3000
kg
„
220
„
„
Leerlauf
150
„
Bezüglich des Stromverbrauchs für die Drehbewegung ist angenommen, dass ein
Arbeitswinddruck von 20 kg/qm herrsche.
Textabbildung Bd. 319, S. 10
Fig. 4. Portaldrehkran von Stuckenholz.
Zum Schlusse seien noch über die Standfestigkeit des Kranes, der in Fig. 4 in Ansicht dargestellt ist, einige kurze
Angaben gemacht. Der Kran kann noch, wenn auch mit geringer Ueberlastung, mit einem
Winddruck von 50 kg/qm anstandslos mit voller Belastung arbeiten und der unbelastete Kran ist
noch einem Winddruck von 200 kg/qm gegenüber ausreichend stabil. Die Grösse des
Ballastes ist derart angenommen, dass bei grösster zulässiger Belastung der
Schwerpunkt immer innerhalb des unterstützenden Rollenkranzes fällt,
wodurchniemals eine Beanspruchung des Mittelzapfens auf Zug eintritt. Bei
Ueberschreitung der grössten zulässigen Belastungen wird der Mittelzapfen allerdings
etwas auf Zug beansprucht; die Kraft ist jedoch niemals grösser als das Gewicht des
feststehenden Portales, sondern bleibt immer sehr erheblich darunter. Infolgedessen
sind auch
Textabbildung Bd. 319, S. 10
M.
Schwerpunkt
des
Portales.
S.
„
„
unbelasteten Kranes.
G.
„
„
belasteten Kranes.
W1.
Angriffspunkt
des
Winddrucks
auf
den
Ausleger mit Last
W2.
„
„
„
„
„
unteren Kranteil.
die Fundamente des Kranes nie auf Zug, sondern immer nur auf
Druck beansprucht.
Die statische Berechnung ergibt folgende Werte:
1. Drehbarer Oberteil (Fig. 5).
Textabbildung Bd. 319, S. 11
Durch Berechnung ist festgestellt, dass der Schwerpunkt des unbelasteten drehbaren
Kranoberteils 1,0 m ausserhalb der Drehmittellinie liegt.
Der Kran sucht um die Drehrolle a zu kippen:
a) Berechnung für Vorwärtsfahren mit Last: (Winddruck = 50 kg/qm):
Moment
der
Last
= 10000 . 9,5 =
95000
kg/m
„
des
Winddruckes
= 600 . 3,5 =
2100
„
„
„
„
= 900 . 2,5 =
2250
„
––––––––––––––––––––––––––––––––
Summe der Momente =
99350
kg/m.
Moment des Eigengewichtes = 35300 . 3,0 = 105900 kg/m. Unterschied
= 105900 – 99350 =6550 kg/m.
Der Schwerpunkt des belasteten Kranes fällt also innerhalb der Drehrollen und
zwar:
\frac{10000\,\cdot\,11,5-35300\,\cdot\,3}{45300}=1,76\mbox{ m}
von der Kranmitte entfernt.
b) Berechnung für Rückwärtsfahren ohne Last (Winddruck = 200 kg/qm):
Moment
des
Winddruckes
=
3600 . 2,5
=
9000 kg/m.
„
„
Eigengewichtes
=
35300 . 1,0
=
35300 kg/m.
Unterschied: 35300 – 9000 = 26300 kg/m.
2. Fundamentdrücke des Kranes mit Portal.
a) Fundamentdrücke bei belastetem Kran (Fig. 6).
α) Druck auf Fundament a
=\frac{1}{2}\,\cdot\,\frac{17000\,\cdot\,4,6}{9,25}+\frac{45300\,\cdot\,4,07}{5,6}\,\cdot\,\frac{7,8}{9,25}=32030\mbox{ kg}
β) Druck auf Fundament b:
=\frac{1}{2}\,\cdot\,\frac{17000\,\cdot\,4,65}{9,25}+\frac{45300\,\cdot\,4,07}{5,6}\,\cdot\,\frac{1,45}{9,25}=9440\mbox{ kg}.
b) Fundamentdrücke bei unbelastetem Kran und 200kg/qm Winddruck (Fig. 7):
α) Druck auf Fundament a:
\frac{3600\,\cdot\,7,3}{5,6}\,\cdot\,\frac{6,6}{9,25}=
3320 kg
\frac{4000\,\cdot\,5,5}{5,6}\,\cdot\,\frac{1}{2}=
1950 kg
\frac{35300\,\cdot\,3,8}{5,6}\,\cdot\,\frac{6,6}{9,25}=
17100 kg
\frac{17000\,\cdot\,2,8}{5,6}\,\cdot\,\frac{6,6}{9,25}=
6080 kg
–––––––––––––––
Zusammen:
28450 kg
β) Druck auf Fundament b:
\frac{3600\,\cdot\,7,3}{5,6}\,\cdot\,\frac{2,65}{9,25}=
1350 kg
\frac{4000\,\cdot\,5,5}{5,6}\,\cdot\,\frac{1}{2}=
1950 kg
\frac{35300\,\cdot\,3,8}{5,6}\,\cdot\,\frac{2,65}{9,25}=
6900 kg
\frac{1700\,\cdot\,2,8}{5,6}\,\cdot\,\frac{4,6}{9,25}=
4210 kg
–––––––––––––––
Zusammen:
14410 kg