| Titel: | Ausnutzung des Auspuffdampfes von Dampfmaschinen in einer mit einem Wärmespeicher verbundenen Niederdruckdampfturbine. |
| Fundstelle: | Band 318, Jahrgang 1903, S. 660 |
| Download: | XML |
Ausnutzung des Auspuffdampfes von Dampfmaschinen
in einer mit einem Wärmespeicher verbundenen Niederdruckdampfturbine.
Ausnutzung des Auspuffdampfes von Dampfmaschinen usw.
In Belgien und Frankreich ist schon seit einiger Zeit ein Vorschlag viel
besprochen, den der bekannte. Professor M. A. Rateau
gemacht hat; und nachdem jetzt seit Monaten die von ihm vorgeschlagene Anlage im
Betriebe sich durchaus bewährt hat, möge im folgenden eine kurze Beschreibung der
ganzen Einrichtung nebst näheren Angaben über die Betriebsergebnisse gegeben sein.
Wir folgen darin einem Aufsatze, den Rateau selbst in
dem Bulletin de la Société de l'Industrie Minérale veröffentlicht hatQuatrième Série Tome II, Ire Livraison, 1903.. Wir
müssen, um zu begreifen, um was es sich handelt, zunächst kurz darauf eingehen,
welche Energie sich einer Dampfmenge von bestimmter Spannung entziehen lässt. Die
Wärmetheorie lehrt, dass bei vollständiger Expansion eines kg trocken gesättigten
Dampfes von einem Druck P auf einen Gegendruck p eine Leistung von
N=E\,\left[r\cdot \frac{T_1-T_2}{T_1}+\int_{T_2}^{T_1}\,C\cdot \frac{T-T_2}{T}\cdot d\,T\right]
erzielt werden kann, wobei E das
mechanische Wärmeäquivalent, T1 und T2 die den Drucken P und p entsprechenden Temperaturen, C die spezifische Wärme des Wasserdampfes bei der
Temperatur T, und r die Verdampfungswärme des
Wasserdampfes bezeichnen. In einem ausserordentlich lesenswerten Aufsatze, den Rateau seinerzeit in der Revue Mécanique hat erscheinen
lassenAugust
1900., ist dargelegt, wie der Verfasser für eine grosse Reihe von
verschiedenen Drucken N den theoretischen Dampf
verbrauch K für eine PS und Stunde bestimmt hat, den
man aus jenem Werte N erhält, indem man 270000 durch
N teilt. Indem nun die so erhaltenen Zahlen für
diesen theoretischen Dampfverbrauch in ein Liniennetz eingetragen wurden, bei dem
die Abzissen den Gegendruck, die Ordinaten den Anfangsdruck darstellten, ergab sich,
dass die gleichen Werte für K nebeneinander auf einer
graden Linie lagen und es konnte für K die folgende
Gleichung aufgestellt werdenProfessor Mollier hat in der Zeitschr. d. Vereins
deutscher Ingenieure vom 18. Juni 1898 eine ganz ähnliche, wenn auch um ein
Geringes ungenauere Gleichung gegeben, die etwas einfacher ist. Im obigen
folgen wir aber in allen Punkten den Ausführungen von Rateau.
K=0,85+\frac{6,95-0,92\cdot log\,p}{log\,P-log\,p}
oder
K=\frac{6,95-0,07\cdot log\,P+0,85\cdot log\,p}{log\,\frac{P}{p}}
Aus der Gleichung von Rateau ist ohne weiteres der Grund
ersichtlich, weshalb die Anwendung der Kondensation bei Dampfmaschinen einen Vorteil
bringt. Geht doch der Dampfverbrauch für eine PS und Stunde umsomehr
herunter,je grösser das Verhältnis \frac{P}{p} wird. Dann ist aber auch mit
Hilfe dieser Gleichung das folgende bemerkenswerte Ergebnis zu erhalten: Bei einem
Druck P gleich 6 kg/qcm und p gleich 1 kg, beträgt der theoretische Dampfverbrauch 8,8 kg für eine PS
und Stunde, während er nur 9,3 kg bei den Drucken P
gleich 1 und p gleich 0,15 wird, wie er in gewöhnlichen
Kondensatoren erzielt werden kann. Es ist selbstverständlich, dass in Wirklichkeit
die angegebenen Ziffern nicht erreicht werden. Würde man eine Kolbendampfmaschine
mit diesen Drucken P gleich 1 und p gleich 0,15 arbeiten lassen, so würde der thermische
Wirkungsgrad im besten Falle wohl höchstens 40 v. H. betragen, da gerade bei diesen
niedrigen Drucken die Abkühlungsverluste bei solchen Maschinen ganz beträchtlich
werden. Günstiger liegen die Verhältnisse für eine Dampfturbine, bei der bekanntlich
diese Abkühlungsverluste deswegen soviel geringer sind, weil alle Teile stets mit
Dampf von derselben Spannung in Berührung kommen; hier ist ein Wirkungsgrad von 65
v. H. ohne weiteres erzielbar. Bei Ausnutzung dieses Dampfes von einer Atmosphäre in
einer Kolbendampfmaschine würden also rund 23 kg zur Erzeugung einer PS nötig sein,
während bei einer Dampfturbine hierzu nur 14,3 kg erforderlich wären. Bekanntlich
verursacht nun die gewöhnliche Anwendung der Kondensation bei Dampfmaschinen eine
beträchtliche Ersparnis im Dampfverbrauch, die im günstigsten Falle bis auf 35-40 v.
H. steigen kann. Bei einzelnen Maschinen wird diese Zahl aber nicht annähernd
erreicht, so namentlich in den Fällen, wo wir es mit Maschinen zu tun haben, die nur
intermittierend arbeiten, wie dies z.B. bei Fördermaschinen und Walzenzugmaschinen
der Fall ist. Für diese hat nun Rateau vorgeschlagen,
den Auspuffdampf in einen Wärmespeicher übergehen zu lassen, von dem aus er zu einer
Maschine hinüberfliesst, in der er weiter ausgenutzt wird; und wie wir gesehen
haben, ist das Vorteilhafteste in solchem Falle, eine Dampfturbine zu verwenden.
Dabei dient der Wärmespeicher dazu, in Zeiten des grossen Dampf Verbrauches der
Fördermaschine diejenige Menge Dampf, welche nicht in der Turbine verbraucht wird,
in sich aufzunehmen und sie während der Zeiten des Stillstandes der Fördermaschine
an die Turbine abzugeben, also den unterbrochen stattfindenden Ausfluss aus der
Fördermaschine in einen ununterbrochenen Zufluss zur Dampfturbine zu verwandeln.
Dieser Apparat ist in Fig. 1 u. 2 dargestellt. Er besteht
aus einem schmiedeeisernen, senkrechten Kessel CC, in dem eine Reihe von wagerechten Schalen A1, B1, A2, B2, An, Bn eingebaut sind. Diese sind
teilweise mit Wasser gefüllt und ruhen eine auf der anderen. Durch kleine Absätze
sind Zwischenräume von einigen Zentimetern zwischen den einzelnen Schalen
hergestellt. Der zylindrische Kessel erhält einen Dampfeinlasstutzen D und einen Dampfauslasstutzen E. Der eintretende Dampf gelangt zu den einzelnen Schalen durch einen
mittleren Kanal F und der Teil, welcher sich nicht
kondensiert, geht an den Wänden entlang bis zum Austrittsstutzen E. Fährt nun die Fördermaschine an, so wird sie eine grosse
Menge Dampf plötzlich in dem geschilderten Apparat entsenden. Dadurch, dass dieser
teilweise kondensiert, wird das Wasser in den Schalen erhitzt. Hört alsdann der
Zufluss des Dampfes auf, so wird eine lebhafte Wiederverdampfung des erwärmten
Wassers eintreten und während vorhin der Ueberschuss an Dampf, welcher nicht durch
den Apparat hindurchging, sich niederschlug, wird jetzt die fehlende Dampfmenge in
ihm sich neu bilden.
Textabbildung Bd. 318, S. 661
Schnitt P-Q.
Das Ergebnis wird also ein ununterbrochener Ausfluss von Dampf
aus dem Austrittsstutzen E sein. Selbstverständlich
sind, damit dieser Vorgang stattfinden kann, Temperatur- und Druckschwankungen im
Apparat vorhanden. Sie sind aber, wie die Praxis gezeigt hat, nicht gross. Es
handelt sich um 3-6° C. oder um 0,15-0,25 kg/qcm, beider Grösse des
Wärmespeichers, wie er jetzt ausgeführt wird. Natürlich kann man, indem man den
Apparat im Verhältnis zu der vorhandenen Dampfmenge vergrössert, die Schwankungen
noch mehr herabziehen.
Da in dem eintretenden Dampf häufig Wasser vorhanden ist, so wird naturgemäss die
Wassermenge in den Schalen etwas steigen und es sind daher Ueberlaufröhrchen b vorgesehen, sodass das Wasser von einer Schale zur
arideren rieseln kann. Schliesslich sammelt es sich am Boden des Kessels an und wird
hier durch ein im weiteren Verlauf als Siphon ausgebildetes Rohr d e abgezogen.
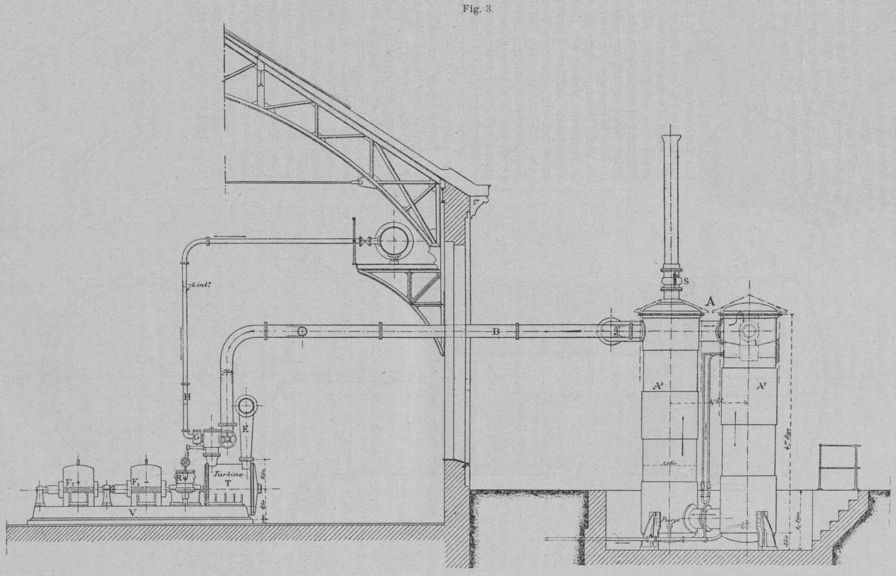
Die gesamte Anordnung eines solchen Wärmespeichers in Verbindung mit der Turbine, wie
sie zum erstenmale auf der Zeche Bruay in Nord-Frankreich im Kohlenbecken von
Pas-de-Calais aufgestellt ist, wird durch Fig. 3 u.
4 wiedergegeben. Der von der Fördermaschine
kommende Dampf gelangt durch die Rohrleitung V in den
Wärmespeicher A, der hier in 3 gleiche Apparate A1, A2, A3 zerlegt
wurde, da er sonst zu grosse Abmessungen angenommen hätte. Von ihm geht durch die
Rohrleitung B der Abdampf zu der Turbine T, die er
durch das Auspuffrohr E wieder verlässt. Die Turbine
treibt zwei Dynamomaschinen F1 und F2, die zur Erzeugung von elektrischer
Energie dienen. Ein Anschluss H ermöglicht den Zutritt
von Frischdampf von der Kesselanlage aus zur Turbine. In ihm ist ein selbsttätig
wirkendes Dampfdruckverminderungsventil G
eingeschaltet, dass den Frischdampf nur dann eintreten lässt, wenn die Spannung in
dem Wärmespeicher unter eine festbestimmte Grosse sinkt, die nach Belieben gross
gehalten werden kann. Durch das Auspuffrohr E wird der
Dampf zu irgend einen beliebigen Kondensator geführt. Auf dem Wärmespeicher selbst
ist ein selbsttätig wirkendes Sicherheitsventil S
angebracht, das sich in dem Augenblick öffnet, wo der Druck im Wärmespeicher eine
bestimmte Grosse überschreitet. Ein sehr empfindlicher Regulator R sorgt dafür, dass die Geschwindigkeit der Turbine
trotz der Veränderungen des im Wärmespeicher herrschenden Druckes und trotz der
wechselnden Belastung der Dynamomaschine höchstens um 2 v. H. schwankt.
Durch diese Anordnung ist eine vollständige Unabhängigkeit der beiden Maschinen, der
Fördermaschine und der Turbine, erreicht; denn wenn die Letztere nicht den ganzen
von der Ersteren kommenden Dampf verbraucht, so öffnet sich selbsttätig das
Sicherheitsventil, und es findet ein Auspuff ins Freie statt. Sind andererseits die
Arbeitspausen der Fördermaschine so gross, dass diese nicht genügend Dampf zum
Betrieb der Turbine abgibt, so öffnet sich das Dampfdruckverminderungsventil und es
wird die Turbine unmittelbar aus den Kesseln gespeist. Selbstverständlich kann durch
einen Schieber in der Leitung B für vollständiges
Abschliessen des Wärmespeichers gegenüber der Turbine gesorgt werden und diese kann
dann zu Zeiten, wo die Fördermaschine überhaupt nicht arbeitet, mit Frischdampf
betrieben werden. Wie aus Fig. 3 u. 4 ersichtlich, nimmt die ganze Anordnung
ausserordentlich wenig Platz fort. Es ist ja bekannt, dass dies ein Vorzug der
Dampfturbine vor Kolbendampfmaschinen überhaupt ist. Der Wärmespeicher selbst aber
kann draussen im Freien in irgend einer sonst nicht benutzten Ecke aufgestellt
werden und es ist ein sorgfältiger Schutz gegen Regen nicht notwendig, wenn man auch
für irgendeine Isolationsschicht sorgen wird, um die Ausstrahlung des Apparats
möglichst zu verkleinern.
Man kann der ganzen Anordnung vorwerfen, dass zu Zeiten, wo ein Frischdampfverbrauch
eintritt, die Turbine ungünstig arbeitet. Dieser Vorwurf wird dann von geringer
Bedeutung sein, wenn man es mit einer sehr regelmässig arbeitenden Fördermaschine zu
tun hat. Im entgegengesetzten Falle aber kann man auf zweierlei Weise diesem
Uebelstande abhelfen. Entweder kann man anstatt der einen Turbine zwei benutzen,
welche auf dieselbe Welle montiert sind und von denen die eine nur mit Abdampf vom
Wärmespeicher her, die andere nur mit Frischdampf von den Kesseln arbeitet. In
diesem Falle wird die letztere von vorneherein für hohen Druck konstruiert und wird
dann 8-9 kg Dampf für eine elektrische PS bei voller Belastung verbrauchen, also
sehr wirtschaftlich arbeiten. Das zweite Mittel besteht darin, den Gegendruck der
Fördermaschine zu erhöhen, sodass diese mit einer Auspuffspannung von vielleicht 3 kg/qcm
arbeitet. Der Frischdampf wird dann nicht auf so sehr niedrige Spannung herab
gemindert, wie es im ersteren Falle notwendig war, und infolgedessen wird auch der
Verbrauch der Dampfturbine an Frischdampf nicht so erheblich sein. Er wird
vielleicht 10 kg für eine PSe und Stunde
betragen, also nicht mehr wie bei einer mittelguten Kolbendampfmaschine, die mit
Verbundwirkung und Kondensation arbeitet. Dieses Mittel hat ausserdem noch den
Vorteil, dass der Dampfverbrauch der Fördermaschine wahrscheinlich zurückgehen wird.
Er erhöht sich zwar durch die Vergrösserung des Gegendruckes, dafür werden aber die
Abkühlungsverluste, weil jetzt die Temperaturen im Zylinder nicht mehr so stark
wechseln, beträchtlich kleiner.
Ohne auf die Rechnungen, die Rateau anstellt und die im
besonderen auf französische Zustände zugeschnitten sind, weiter einzugehen, wollen
wir doch die Hauptergebnisse seiner Ueberlegungen kurz anführen. Er behauptet, dass
bei einer Zeche, die mit einer Zwillingsmaschine ohne Kondensation arbeitet, welche
einen Dampfverbrauch von 8000 kg in der Stunde hat, 400 elektrische PS bequem
gewonnen werden können. Indem er den Dampf, der von den anderen auf der Zeche
aufgestellten Maschinen kommt, ebenfalls mit zum Betrieb der Turbine benutzt, will
er einen Gewinn von 1000 PS erreichen. Aehnliche Rechnungen führt er auch für ein
Walzwerk und andere mit intermittierend arbeitenden Maschinen versehene Fabriken
aus. Aber die Anwendung des geschilderten Systems bringt auch dann einen Nutzen,
wenn die Hauptmaschinen bereits mit Kondensation versehen sind, wie z.B. folgende
Ueberlegung zeigt. Eine Fördermaschine möge 6000 kg verbrauchen, durch einen
Anschluss an eine Kondensation würden 900-1200 kg gespart werden. Mit diesen könnte
man in einer gewöhnlichen Kolbendampfmaschine 90 bis 120 PSe erzielen. Lässt man den Dampf der
Fördermaschine jedoch in einen Wärmespeicher auspuffen, so werden von den 6000 kg
ungefähr 80 v. H., also 4800 kg trockener Dampf zur Ausnutzung in der Turbine
gelangen können, 20 v. H. sind für Abkühlungsverluste abgezogen. Diese 4800 kg sind
aber imstande in der Turbine eine Leistung von 300 PSe zu erzeugen, gegenüber den 90-120 bei der
normalen Ausbildung der Maschine mit Kondensation. Dass auf diese Weise ganz
beträchtliche Ersparnisse sich erzielen lassen, liegt ohne weiteres auf der Hand,
zumal wenn man bedenkt, dass ausser der Ersparnis an Brennstoffkosten auch die
Bedienungskosten für Kessel fortfallen, die im anderen Falle zur Erzeugung der
notwendigen Dampfmenge aufgestellt werden müssten, und wenn man ferner erwägt, dass
die Anschaffungskosten eines solchen Wärmespeichers und einer Turbine auf jeden Fall
geringer sind, als die einer Kesselanlage mit der zugehörigen Kolbendampfmaschine;
denn der Wärmespeicher wird nicht entfernt soviel Ausgaben wie neue Kessel
verursachen.
Die auf der Zeche Brücy vorgenommenen Versuche lieferten zunächst nicht die günstigen
Ergebnisse, welche im voraus berechnet waren. Es lag dies aber an verschiedenen
Umständen, welche mit dem System selbst nichts zu tun hatten und diesem daher nicht
zur Last gelegt werdenkönnen. Einerseits war der Wärmespeicher etwas zu klein;
es ist zu bedenken, dass man es hier mit der ersten Ausführung eines solchen
Apparates zu tun hatte. Andererseits war die Arbeit der Fördermaschine noch nicht so
gross, wie sie späterhin zweifellos werden wird, da die Zeche sich noch nicht in
vollem Betrieb befindet, und schliesslich war das durch den Kondensator
hervorgerufene Vakuum nicht so hoch wie erwartet.
Textabbildung Bd. 318, S. 662
Fig. 3.
Der zu kleine Wärmespeicher verursachte etwas zu grosse
Schwankungen in der Spannung, wie das auch aus dem Diagramm (Fig. 5) hervorgeht, das mit einem selbsttätig
aufzeichnenden Druckmesser am Wärmespeicher abgenommen wurde. Die Tatsache, dass die
Fördermaschine noch
nicht die erwartete Dampfmenge hergab, und noch nicht so regelmässig arbeitete, wie
sie das späterhin bei vollem Betriebe tun wird, verursachte ein zu häufiges Arbeiten
der Turbine mit Frischdampf, und das relativ schlechte Vakuum im Kondensator trieb
den Dampf verbrauch von einer PS und Stunde in die Höhe. Fig. 5, die aus der Zahl der von Rateau
gegebenen Diagramme herausgegriffen ist, wird ohne weiteres verständlich sein.
Textabbildung Bd. 318, S. 663
Fig. 4.
Die Strecke von A-B stellt eine
Periode in der Arbeit der Fördermaschine dar. Im Anfang hatte die Maschine längere
Zeit stillgestanden und nachdem die Spannung im Punkte H bis unter Atmosphäre gesunken war, öffnete sich das
selbsttätigeDruckverminderungsventil in der Frischdampfleitung bis zu dem
Augenblick, wo die Fördermaschine von neuem zu arbeiten begann. Im Punkte 0 fing das
Sicherheitsventil, das hier auf 0,4 kg/qcm gestellt war, an abzublasen. Während der
Zeit, wo dieses Diagramm abgenommen wurde, betrug der Druck vor der Turbine P = 0,89 kg/qcm hinter ihr p = 0,266 kg/qcm, und es wurden 198 PS geleistet. Der mutmassliche
Dampfverbrauch, wie er sich aus den Versuchen schliessen liess, den die Turbine vor
ihrem Einbau auf der Zeche in der Werkstätte zu bestehen gehabt hatte, war annähernd
5000 kg. Später sind, als der Kondensator besser arbeitete, von der Zeche selbst,
unter Leitung des belgischen Professors Hubert nochmals
Versuche unternommen worden und es sind dabei die in unserer Zahlentafel S. 664
niedergelegten Ergebnisse erzielt worden.
Textabbildung Bd. 318, S. 663
Fig. 5.
Textabbildung Bd. 318, S. 663
Fig. 6. Umlauf-Geschwindigkeit; Gesamtwirkungsgrad.
Textabbildung Bd. 318, S. 663
Fig. 7. Belastung; Gesamtwirkungsgrad.
In dieser sind neben dem gemessenen Dampfverbrauch stets die
theoretisch berechneten Dampfverbrauchszahlen eingetragen und aus beiden in der
letzten Spalte der Gütegrad der Turbine berechnet. Es konnte eine grössere Belastung
wie 241 PS aus örtlichen Gründen nicht herbeigeführt werden, nur für einen
Augenblick stieg einmal die Leistung auf den zu No. 6 angegebenen Wert von 282
Pferden, bei dem aber natürlich keine genaueren Beobachtungen gemacht werden
konnten. Es entsprechen diese hier erhaltenen Ziffern im grossen und ganzen
denjenigen, die an der Turbine in der Werkstatt vor ihrer Montage gefunden wurden.
Die Ergebnisse dieser Versuche sind in den durch die Fig.
6, 7 und 8
dargestellten Kurven niedergelegt worden. In Fig. 6
ist der Gesamtwirkungsgrad in Funktion der Geschwindigkeit aufgetragen. Die
punktierten Aeste der Kurve sind nicht durch Beobachtungen erhalten, sondern nur
hinzugezeichnet, um zu zeigen, dass der beste Wirkungsgrad von etwa 65 v. H. bei
ungefähr 2500 Umdrehungen erreicht worden wäre. Fig.
7 gibt den Gesamtwirkungsgrad in Funktion der Belastung für zwei
verschiedene Geschwindigkeiten, nämlich von 1600 und 1800 Touren. Die Belastung
selbst ist hierbei nicht absolut, sondern in Hundertteilen der Vollast aufgetragen
und diese Kurven zeigen, dass der Wirkungsgrad der Turbine bei Herabgehen der
Belastung bis auf 0,35 der Vollast nur wenig sinkt. Fig.
8 endlich zeigt den Gesamtdampfverbrauch in Kilogramm f. d. Stunde in
Funktion der Belastung in Kilowatt. Zu dieser Darstellung ist eine weitere Erklärung
unnötig.
Textabbildung Bd. 318, S. 664
Fig. 8. Belastung in Kilowatt; Gesamt-Dampfverbrauch.
Es dürfte vielleicht von Interesse sein im Anschluss an obige Ausführungen noch
ganz kurz einige Worte über die Konstruktion der benutzten Turbine zu vernehmen. Es
ist dieses eine nach dem System des Professors Rateau
gebaute Dampfturbine mit einer grösseren Anzahl von Rädern, die auf dieselbe
wagerechte Achse montiert sind. Diese drehen sich zwischen Scheiben, die fest in dem
Zylinder angebracht sind und am Umfang einzelne Oeffnungen, die Leitschaufeln,
tragen. Das ganze bildet also eine Hintereinanderschaltung von Dampfturbinen mit
teilweiser Beaufschlagung, welche der Dampf gleichlaufend zur Achse durchströmt,
wobei er abwechselnd durch einen Kreis von festen Schaufeln und einen solchen von
beweglichen hindurchtritt. Die Expansion des Dampfes vollzieht sich nur in den
Leitschaufeln, sodass der Dampf auf die Schaufeln der Triebräder einzig und allein
durch seine lebendige Kraft wirkt. Es ist infolgedessen ein solches Triebrad auf
beiden Seiten von Dampf gleicher Spannung umgeben und es können deshalb die
Zwischenräume zwischen den Schaufeln und den angrenzenden Teilen verhältnismässig
gross gemacht werden, ohne dass zu beträchtliche Lässigkeitsverluste zu erwarten
wären. Die radiale Ausdehnung der Triebschaufeln und der Querschnitt der
Leitschaufeln vergrössern sich mehr und mehr, je später sie vom Dampf durchströmt
werden, sodass die Durchströmungsquerschnitte für den Dampf mit der Grosse seines
Volumens, das ja durch die Expansion stetig wächst, zunehmen.
Wenn auch die auf die ganze Anordnung gesetzten Hoffnungen sich vielleicht nicht in
dem Masse erfüllen werden, wie Rateau dieses hofft, so
halten wir doch die Anordnung für ausserordentlich zukunftsreich und glauben, dass
man ihr auch in Deutschland das grösste Interesse schenken sollte. Allerdings wird
ja der Einführung zunächst das Bedenken entgegenstehen, dass der
Fördermaschinenbetrieb dadurch verwickelt und gefährlich gemacht werden könnte. Wir
sind aber der Ansicht, dass dies nicht in nennenswertem Masse der Fall ist, und dass
ein Fördermaschinist sich mit Leichtigkeit auch in den derartig veränderten Betrieb
wird hineinfinden können.
Zahlentafel.
Nummer
Umdrehungenin der Minute
ElektrischePferdestärken
Absolute Spannungen
Gesamt-Dampf-verbrauchl
i. d. Std.
Dampfverbrauchin kg für 1 PS und
Std.
Gütegrad
AnfangsdruckPkg/qcm
Enddruckpkg/qcm
Gemessenkg
Theoretischkg
1
1580
0
0,11
0,085
600
–
–
–
2
1585
79
0,35
0,095
1920
24,3
13,80
0,570
3
1620
115
0,50
0,115
2750
23,9
12,15
0,515
4
1610
213
0,75
0,141
4120
19,3
10,55
0,550
5
1610
241
0,82
0,141
4500
18,7
10,10
9,545
6
1610
282
0,85 bis 1,0
0,154
?
?
–
–