| Titel: | Moderne Dampfkesselanlagen. |
| Autor: | O. Herre |
| Fundstelle: | Band 318, Jahrgang 1903, S. 392 |
| Download: | XML |
Moderne Dampfkesselanlagen.
Von O. Herre, Ingenieur und Lehrer in
Mittweida.
(Fortsetzung von S. 378 d. Bd.)
Moderne Dampfkesselanlagen.
Die Fig.
158-160 bringen den Wasserröhrenkessel System Gehre nach der Ausführung der Sächsischen Maschinenfabrik vorm. Rich. Hartmann in
Chemnitz zur Darstellung.
Besonderes Interesse bietet bei diesem Kessel die eigenartige Ausbildung der vorderen
Wasserkammer.
Durch dampfdicht eingenietete horizontale ∪ Eisen wird
diese Kammer in ebenso viele Abteilungen zerlegt als wagerechte Rohrreihen vorhanden
sind. Diese Einzelkammern stehen durch kleine Rohrstutzen, Fig. 161 und 162,
derartig mit einander in Verbindung, dass der in den Röhren entwickelte Dampf sich
zunächst in der zugehörigen Einzelkammer fängt und nach Herabdrückung des
Wasserspiegels bis unter die Unterkante der Rohrstutzen durch diese in die nächst
höhere Kammer und schliesslich durch weite Rohre von der obersten Einzelkammer in
den Dampfraum des Oberkessels entweicht.
In der geneigt angeordneten Wasserkammer stellen sich natürlich die Wasserspiegel in
den Einzelkammern wagerecht ein und bewirken dadurch, dass die schrägstehenden
Rohrstutzen auch bei ganz geringer Dampfentwicklung am unteren Ende bereits einen
kleinen freien Querschnitt zum Entweichen des Dampfes bieten.
Mit zunehmender Beanspruchung des Kessels vergrössert sich dieser Querschnitt und
stellt sich bei gleichmässiger Dampfentnahme konstant ein.
Es ist also beim Gehre kessel die belastende
Wassersäule, welche sich dem Dampfaustritt hemmend entgegenstellt, vollständig
beseitigt und durch die sinnreiche Konstruktion der Wasserkammer ein durch sämtliche
Einzelkammern bis in den Oberkessel kommunizierender Dampfraum geschaffen.
Die verdampfende Oberfläche wird durch diese Anordnung ganz bedeutend vergrössert und
es ist zweifellos, dass der Kessel infolgedessen einen verhältnismässig trockenen
Dampf erzeugt.
Das durch Verdampfung entfernte Wasser kann den Wasserröhren nicht nur durch die
hintere, sondern auch durch die vordere Wasserkammer zugeführt werden. Die
Einzelkammern haben zu diesem Zwecke seitliche Oeffnungen, welche, wie dies Fig. 162
erkennen lässt, das Wasser vom Oberkessel durch die beiden seitlichen Schächte den
einzelnen Abteilungen der vorderen Kammer zuströmen lassen.
Der Gehre kessel wird in den Grossen von 20 bis 300 qm
Heizfläche und in der Regel für 10-14 Atm. Betriebsdruckgebaut. Jeder Kessel
wird mit einem Ueberhitzer ausgestattet, der aus einer wagerechten Rohrreihe
besteht, die über den Wasserröhren angeordnet wird (Fig. 158). Die
einzelnen Rohre sind vorn durch Kupferkrümmer mit dem Verteilungsrohr verbunden, so
dass eine unabhängige Ausdehnung der Rohre eintreten kann. Hinten wird der Dampf
durch ein Sammelrohr wieder vereinigt und in die Hauptleitung geschickt. Der
Ueberhitzer gestattet mit Rücksicht auf die Einbaustelle nur eine massige
Ueberhitzung, etwa bis um 40°; für höhere Ueberhitzung muss eine andere Anordnung
gewählt werden.
Der Ueberhitzer steht durch abstellbare Leitungen mit dem hinteren Teile des
Wasserraumes im Oberkessel und mit der Ablassleitung in Verbindung (Fig. 160). Infolgedessen kann der Ueberhitzer beim
Anheizen, und nach Bedarf auch während des Betriebes, mit Wasser gefüllt werden,
wobei der Ueberhitzer dann die Wasserrohre in ihrer Leistung unterstützt.
Der in den Fig.
158-160 dargestellte Kessel hat eine
wasserberührte Rohrheizfläche von 183,2 qm, eine dampfberührte Rohrheizfläche
(Ueberhitzerfläche) von 17,9 qm und eine sonstige Heizfläche an den Kammern und am
Oberkessel von 15,9 qm. Die Rostfläche beträgt 4,11 qm. Der Kessel erzeugt normal
2800 kg und bei ausreichendem Schornsteinzuge bis zu 4000 kg Dampf i. d. Stunde.
Die Ausführung des Kessels ist eine in jeder Beziehung solide und vollkommene.
Der Oberkessel wird doppelreihig hydraulisch genietet, die Wasserkammern und
Verbindungsstutzen werden geschweisst.
Die hintere Wasserkammer ist durch Stehbolzen, die vordere durch die zur Bildung der
Einzelkammern eingenieteten ⊏ Eisen in wirksamer Weise versteift. Die
Rohrverschlüsse sind Innenverschlüsse mit Gummi- bezw. kupfernen Dichtungsringen;
die Dichtungen lassen sich wiederholt benutzen.
Der Feuerraum ist reichlich hoch gewählt; die Gase müssen über die Feuerbrücke hinweg
nach hinten strömen, wo ihnen nach Bedarf nochmals Luft durch Kanäle zugeführt
werden kann. Die Beschickung des Hostes erfolgt durch den bekannten selbsttätigen
Leachapparat. Es ist daher alles berücksichtigt, um
den Verbrennungsvorgang so günstig wie möglich zu gestalten. Da die Zuführung des
Brennstoffes zum Trichter des Leachapparates
ebenfalls
Textabbildung Bd. 318, S. 393
Wasserröhrenkessel System Gehre, gebaut von der Sächsischen Maschinenfabrik
vormals Hartman; Schnitt AB; Vordere Ansicht; Schnitt CD.
selbsttätig durch eine Transportschnecke erfolgen kann,
so ist auch die Tätigkeit des Heizers wesentlich erleichtert.
Textabbildung Bd. 318, S. 394
Fig. 160. Wasserröhrenkessel, System Gehre, gebaut von der Sächsischen
Maschinenfabrik vormals Hartmann; Hintere Ansicht; Schnitt EF.
Textabbildung Bd. 318, S. 394
Wasserkammer des Wasserröhrenkessels System Gehre.
Die Fig. 163
und 164
geben die Kesselanlage des Städtischen Elektrizitätswerkes Baden-Baden wieder, die
aus vier Kesseln System Alban von je 125 qm
Kesselheizfläche und je 25 qm Ueberhitzerheizfläche besteht. Der Zweikammerkessel,
System Alban, wird von der Firma Walther u. Cie. in Kalk bei Köln a. Rh. gebaut und hat
nicht nurin Deutschland, sondern auch im Auslande weite Verbreitung
gefunden.
Der Albankessel, Fig. 163 und 164,
arbeitet mit 10 Atm. Betriebsdruck und ist mit einer Schrägrostfeuerung versehen.
Die Roststäbe haben in der oberen Hälfte seitliche Ansätze, welche sich gegenseitig
zu Roststufen ergänzen. Das Gewölbe ist bis auf 400 mm der Rostfläche genähert. Die
obere Rostfläche ist hiernach hauptsächlich zur Vergasung des Brennstoffes bestimmt.
Die vollständige Verbrennung vollzieht sich erst über der zweiten unteren Hälfte der
Rostfläche.
Der Ueberhitzer hat die in D. p. J., 1899, 312, 99 bis 101
näher beschriebene Konstruktion.Siehe auch
den Sonderabdruck: „Die Anwendung des überhitzten Dampfes.“ Verlag:
Polytechn. Buchhandlung R. Schulze,
Mittweida. Die einzelnen ∪förmig
gebogenen Rohrelemente sind durch besondere Verbindungsstücke, die ausserhalb der
Feuerung liegen, zu einer einzigen Rohrschlange verbunden, die vom Dampfe der ganzen
Länge nach durchströmt werden muss. Die Verbindungsstücke entsprechen in ihrer
Konstruktion den Rohrkapselverschlüssen, die von der Firma Walther & Cie. auch bei ihren „Root“-Kesseln verwendet werden.
Textabbildung Bd. 318, S. 395
Wasserröhrenkessel von Walther & Cie.
Bei dem in den Fig. 163 und 164 dargestellten
Kessel sind 12 Ueberhitzerrohre hintereinander geschaltet; da nun die Länge eines
∪-förmigen Rohres 6,5 m beträgt, so ist die gesamte Rohrlänge des Ueberhitzers 12 .
6,5 = 78 m; bei einem Aussendurchmesser der Rohre von 0,102 m, also einem Umfang von
0,32 m, ergibt sich dann die schon erwähnte Heizfläche des Ueberhitzers von 78 .
0,32 = 25 qm. Bei der auf 78 m ermittelten Rohrlänge des Ueberhitzers ist nur der in
der Feuerung liegende Teil berücksichtigt. Rechnet man noch für die Länge der
ausserhalb der Feuerzüge liegenden Verbindungskappen der Rohre etwa 4 m und für die
Zuleitung vom Kessel zum Ueberhitzer und von diesem zur Dampfleitung eine Länge von
etwa 6 m, so muss der Dampf, ehe er vom Kessel in die eigentliche Dampfleitung
kommt, einen Weg von 88 m zurücklegen. Soll der Dampf auf diesem nicht
unbeträchtlichen Wege einen merklichen Spannungsverlust nicht erleiden, so darf die
Dampfgeschwindigkeit in der Ueberhitzerrohrleitung keinen erheblichen Wert erlangen;
dass dieser Bedingung bei dem Kessel Fig. 163 und 164 trotz
der Hintereinanderschaltung der Ueberhitzerrohre genügt ist, zeigt die folgende
Rechnung.
Nimmt man eine Dampferzeugung von 16 kg pro Stunde und qm Heizfläche des Kessels an,
so könnte ein Kessel von 125 qm Heizfläche in der Stunde 16 . 125 = 2000 kg Dampf
liefern. Da das spezifische Gewicht des Dampfes von 10 Atm. Ueberdruck 5,53 kg
beträgt, so würde die stündliche Gesamtdampfmenge ein Volumen von 2000 : 5,53 = 362
cbm aufweisen. Das durch den Ueberhitzer getriebene Dampfvolumen pro Sekunde würde
also rund 0,1 cbm betragen. Da nun ferner der lichte Durchmesser der Rohre etwa 95
nun, ihr Querschnitt also 0,0071 qm beträgt, so wäre die Dampfgeschwindigkeit
innerhalb des Ueberhitzers 0,1 : 0,0071 = 14,1 m,also genügend klein, um keinen
erheblichen Spannungsabfall befürchten zu müssen.
Selbst wenn man mit einer Dampferzeugung von 20 kg pro Stunde und qm Heizfläche
nehmen würde, bliebe die Dampfgeschwindigkeit immer noch klein genug.
Durch Absperrventile kann der Ueberhitzer aus dem Dampfstrome ausgeschaltet werden;
der gesättigte Dampf strömt dann vom Kessel unmittelbar in die Dampfleitung. Eine
Ausschaltung des Ueberhitzers aus dem Strome der Heizgase ist allerdings nicht
ausführbar, doch haben die Heizgase, wenn sie an den Ueberhitzer gelangen, schon ¾
der Heizfläche der Wasserröhren bestrichen, sind also schon erheblich abgekühlt.
Immerhin wird man den Ueberhitzer nur vorübergehend ohne Schaden während des
Betriebes aus dem Dampfstrome ausschalten dürfen.
Die Röhrendampfkesselfabrik E. Willmann, Dortmund, baut
Einkammerkessel nach eigenen Patenten, ferner Zweikammerkessel und
Grosswasserraum-Röhrenkessel nach dem System Mac-Nicol.
Die Fig.
165-167 stellen einen Zweikammerkessel von 248 qm Heizfläche und 5,26 qm
Rostfläche für einen Betriebsdruck von 12 Atm. dar. 148 Röhren von 95 mm äusseren
Durchmesser und 5 m Länge sind in 8 Horizontalreihen angeordnet. Die beiden
Wasserkammern sind 200 mm weit und haben 20 mm Wandstärke in den Stirnflächen; die
Schmalseiten haben 25 mm Wandstärke. Die vordere Wasserkammer besitzt im Oberkessel
einen kräftig nach hinten gebogenen Aufsatz zur Beförderung des Wasserumlaufs. Die
hintere Wasserkammer ruht auf Rollen. Die Planrostfeuerung ist mit einer durch die
Feuerbrücke erfolgenden sekundären Luftzuführung versehen. Die Kanäle liegen im
Seitenmauerwerk und können an der vorderen Stirnmauer durch Schieber abgeschlossen
werden.
Eine vollständige neue Anordnung und Konstruktion gegenüber den früheren Ausführungen
weist der Ueberhitzer auf. Während bei den früheren Ausführungen der Ueberhitzer aus
geraden Röhren von verhältnismässig grossem Durchmesser bestand und der Einbau
unmittelbar über den Wasserröhren erfolgte (vergl. D. p. J. 1899, 312, 81 u. 82), also eine Konstruktion und Anordnung des
Ueberhitzers, ähnlich wie beim Gehrekessel (Fig.
158-160) vorlag, zeigt die jetzige
Ausführung ∪ förmig gebogene Rohrschlangen von kleinem Durchmesser. Es sind drei
Dampfkammern vorhanden. Der Dampf strömt von jedem Oberkessel in die entsprechende
äussere Dampfkammer, durcheilt die Rohrschlangen, sammelt sich dann in der mittleren
Dampfkammer, um von hier in die Hauptleitung zu gelangen. Natürlich besteht auch die
Möglichkeit, den gesättigten Dampf direkt in das Rohrnetz zu führen, ebenso wie der
Ueberhitzer aus dem Gasstrome ausgeschaltet werden kann, und zwar durch Umlegen
einer einzigen Absperrklappe. Die neue Konstruktion des Ueberhitzers gewährleistet
eine höhere und gleichmässigere Ueberhitzung.
Die Führung der Heizgase ist aus der Zeichnung ersichtlich; der Fuchs kann durch eine
drehbare Klappe geschlossen werden.
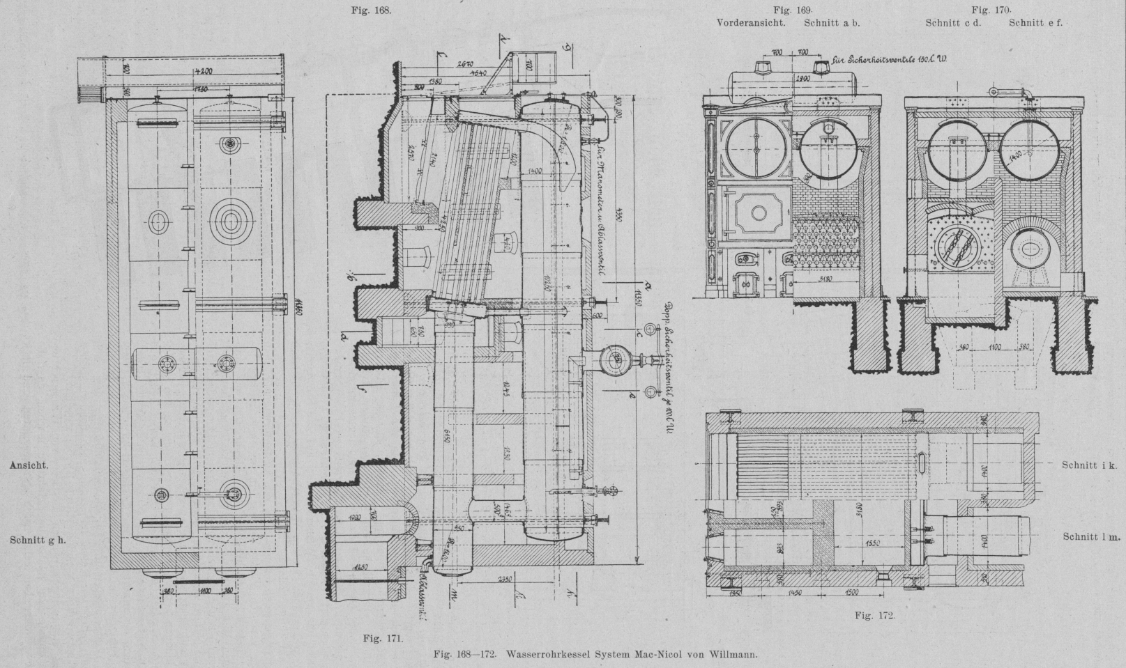
Die Fig.
168-172 bringen einen Mac-Nicolkessel nach den
Ausführungen von E. Willmann zur Darstellung. Dieser
Kessel hat eine Heizfläche von 250 qm, eine Rostfläche von 5,74 qm und ist für 10
Atm. Ueberdruck gebaut. Der Mac-Nicolkessel kann als
die Vereinigung eines Zweikammerwasserröhrenkessels mit einem Walzenkessel angesehen
werden; er wird daher auch deren Vorzüge und Nachteile in sich vereinigen.
Textabbildung Bd. 318, S. 396
Röhrendampfkessel mit Ueberhitzer von Willmann.
Der Wasserröhrenkessel besteht aus 126 Röhren von 95 mm äusseren Durchmesser und 4,25
m Länge, in 7 Horizontalreihen angeordnet. Die vordere Wasserkammer ist wie beim
gewöhnlichen Zweikammerkessel ausgebildet und besitzt auch den der Wasserbewegung
dienenden Aufsatz.
Die hintere Wasserkammer steht mit den beiden Oberkesseln nur durch je einen Stutzen
von 130 × 400 mm Weite in Verbindung; dagegen setzt sich die Wasserkammer nach
hinten in Form zweier Walzenkessel von je 6,15 m Länge, 0,95 m Durchmesser und 11 mm
Wandstärke fort. Der mit Flansch versehene Verbindungsschuss hat 16 mm
Wandstärke.
Die Rohrwand der hinteren Wasserkammer ist dort, wo die Anbringung von Stehbolzen
nicht möglich war, durch Ankerbügel mit je drei Ankern versteift.
Die Oberkessel haben eine Länge von 10,25 m, sind also mehr als doppelt so lang wie
das Röhrenbündel. Ihr Durchmesser beträgt 1,4 m, bei 17 bezw. 15 mm
Wandstärke.Die Oberkessel stehen an ihrem hinteren Ende mit den beiden
Walzenunterkesseln durch je einen zylindrischen Stutzen von 0,5 m Weite und 15 mm
Blechdicke in Verbindung.
Die Wasserbewegung wird durch die starke Erwärmung des Wassers im Röhrenbündel
veranlasst. Das Wasser steigt in der vorderen Wasserkammer in die Höhe, fliesst in
den Oberkesseln nach hinten und sinkt durch die weiten Verbindungsstutzen in die
Unterkessel, um von hier nach vorn dem Röhrenbündel zuzuströmen.
Die Stutzen auf der hinteren Wasserkammer sollen nur den in den Walzenkesseln
erzeugten Dampf aufnehmen und ihn direkt in den Dampfraum führen. Die Stutzen
reichen daher im Oberkessel bis zum höchsten Wasserstand.
Um das Gewicht der Oberkessel ohne Beanspruchung der Unterkessel direkt auf das
Fundament zu übertragen, sind an jedem Oberkessel oben drei Bleche mittels
Winkeleisen angenietet; die Bleche sind andererseits wieder an je ein Paar
querliegende ∪ Eisen genietet. Die ∪ Eisen ruhen an den Enden auf eingemauerte Stützen aus ⌶ Eisen.
Die Heizgase bestreichen zuerst das Röhrenbündel, dann den vorderen Teil der
Oberkessel in einem Horizontalzuge und schliesslich den hinteren Teil der Oberkessel
und die beiden Walzenunterkessel in auf und absteigenden Zügen. Die hintere Wand der
hinteren Wasserkammer wird nicht von den Heizgasen bestrichen.
Die Oberkessel sind in der Längsnaht dreireihig, in der Rundnaht zweireihig, die
Unterkessel in der Längsnaht zweireihig und in der Rundnaht einreihig überlappt
genietet.
Der Wasserröhrenkessel, System Petry-Dereux, ist in den
Fig.
173-175 wiedergegeben. Der dargestellte Kessel umfasst eine Heizfläche von
174 qm; hiervon entfallen
Textabbildung Bd. 318, S. 397
Wasserrohrkessel System Mac-Nicol von Willmann
Vorderansicht; Schnitt a b; Schnitt
c d.; Schnitt e f.; Schnitt i k.; Schnitt l m.
160,92 qm auf die 108 Wasserröhren von 95 mm äusserem
Durchmesser und 5 m Länge, 7,79 qm auf den etwa bis zur Hälfte den Heizgasen
ausgesetzten Oberkessel und 5,29 qm auf die beiden Wasserkammern. Die Rostfläche
umfasst 3,91 qm; die Betriebsspannung darf 12 Atm. betragen.
Textabbildung Bd. 318, S. 398
Wasserröhrenkessel mit Ueberhitzer von Petry-Dereux
Schnitt a b
Der Oberkessel ist 6,5 m lang und hat 1,2 m Durchmesser bei 14,5 mm Wandstärke; er
ist in der Längs- und Rundnaht zweireihig überlappt genietet, in der letzteren
jedoch in der einen Reihe mit doppelt so grosser Teilung. Vorn wird der Oberkessel
durch den umgelegten Rundeisenanker getragen, der das Gewicht auf zwei wagerechte
⌶Eisen überträgt, die auf ⌴ Eisensäulen ruhen. Ausserdem stützt sich die vordere Wasserkammer auf
die Stirnmauer fest ab, während die hintere Wasserkammer in der üblichen Weise auf
Rollen gelagert ist.
Im Oberkessel befindet sich ein kastenförmiger Einbau über der vorderen Wasserkammer,
in welchem mittels besonders geformter Richtbleche eine Abscheidung des
mitgerissenen Wassers infolge der Stosswirkung erfolgen soll. Uebrigens ist der
Kessel noch mit einem Dampfüberhitzer von etwa 50 qm Heizfläche ausgerüstet. Das
Verteilungsrohr ist senkrecht; von demselben gehen 10 wagerecht Liegende
Rohrschlangen von verschieden grosser Länge zu dem schrägliegenden Sammelrohr,
welches auf den Kessel führt und hier ein Sicherheitsventil von 50 mm lichter Weite
trägt. Ausserdem ist unmittelbar am Oberkessel an einem 110 mm weiten Stutzen ein
Doppel Sicherheitsventil mit je 80 mm lichter Weite angebracht. Dieses Ventil ist
für den nach Russland gelieferten Kessel mit einem nach dem russischen Gesetz
notwendigen verschliessbaren Kasten versehen.
Bei stark angestrengtem Betriebe von Wasserröhrenkesseln musste man häufig die
Erfahrung machen, dass die untersten Rohrreihen sehr rasch durchbrannten und
leckwurden.
Textabbildung Bd. 318, S. 398
Fig. 176. Hintere Wasserkammer des Röhrenkessels von Petry-Dereux.
Die Erklärung dieser Erscheinung ist darin zu sehen, dass die
untersten Rohre durch die Berührung mit den heissesten Gasen und infolge der direkten
Wärmeausstrahlung der glühenden Brennstoffmassen verhältnismässig viel mehr Wärme
aufnehmen, als die oberen Rohre. Die untersten Rohre haben daher die stärkste
Dampfentwicklung; infolgedessen musste ihnen das Wasser besonders reichlich
zugeführt werden. Bei der natürlichen Umlaufbewegung des Wassers sucht sich dasselbe
aber immer den kürzesten Weg, d.h. es wird den oberen Röhren stärker zuströmen, als
den unteren. Die Gefahr des Krummziehens oder des Durchbrennens der unteren Rohre
ist daher um so grösser, je mehr Rohrreihen übereinander liegen, je stärker der
Kessel beansprucht wird und je unreiner das Speisewasser ist.
Textabbildung Bd. 318, S. 399
Fig. 177. Kammerverschluss des Röhrenkessels von Petry-Dereux.
Eine energische Kühlung der untersten Rohrreihen durch möglichst unmittelbare
Zuführung des Umlaufwassers ist daher als die erste Bedingung für die dauernde
Haltbarkeit der Rohre anzusehen. Die Firma Petry-Dereux
in Dürenführt zu diesem Zwecke die hintere Wasserkammer ihrer
Wasserröhrenkessel nach Fig. 176 aus. Durch den
Einbau einer Scheidewand wird das aus dem Oberkessel zurückströmende Umlaufwasser
den unteren Rohrreihen in erster Linie zugeführt. Es ist klar, dass auf diese Weise
die unteren Rohre unter allen Umständen genügend Wasser erhalten müssen und dass
damit das Ueberhitzen, starke Inkrustieren und Krummziehen derselben infolge von
Wassermangel ein für allemal beseitigt ist. Dabei behindert die Einrichtung dieser
Scheidewand das Reinigen und Auswechseln der Rohre in keiner Weise.
Gegenüber jedem Rohr befindet sich in der Scheidewand eine Oeffnung, welche durch
einen Deckel mit bajonettförmigem Verschluss, ohne jede Verschraubung, geschlossen
wird. Dieser Deckel kann durch das gegenüberliegende Deckelloch der Kammer
passieren, da er im Durchmesser kleiner ist; die Reinigung und das Auswechseln der
Rohre ist also durch die Scheidewand in keiner Weise behindert.
Der Kammerverschluss ist in Fig. 177 dargestellt; es
ist ein Innenverschluss ohne besonderes Dichtungsmaterial. Der konische Rand der
Verschlussplatte ist möglichst dünn gehalten, um etwas zu federn. Das Einbringen der
Verschlussplatten geschieht durch einige etwas weitere Deckellöcher, deren
Verschlüsse wieder durch ein ovales Handloch eingeführt werden.
(Fortsetzung folgt.)