| Titel: | Die Turbinen auf der Pariser Weltausstellung 1900. |
| Autor: | Wilhelm Müller |
| Fundstelle: | Band 315, Jahrgang 1900, S. 670 |
| Download: | XML |
Die Turbinen auf der Pariser Weltausstellung
1900.
Von Wilhelm Müller,
Cannstatt.
(Schluss von S. 645 d. Bd.)
Die Turbinen auf der Pariser Weltausstellung 1900.
Ganz besondere Beachtung verdienen auch die in der Ausstellung der Ingenieurwerke in Gruppe VI, Klasse 29 der Abteilung des
Deutschen Reiches ausgestellten Pläne ausgeführter grösserer Wasserkraftanlagen, welche zum Unterschied der seither einzeln
betrachteten Objekte als Ganzes einschliesslich der Wasserbauten in ihrem Zusammenhang vorgeführt, zur Vervollständigung und
Kennzeichnung des gegenwärtigen Standes des Turbinenbaues beitragen.
Unter den von O. Intze, Geheimer Regierungsrat und Professor in Aachen, ausgestellten Zeichnungen und Plänen, die den Grand Prix erhielten, kommen
u.a. für unsere Uebersicht in Betracht:
I. Neues Wasserwerk der Stadt Solingen: Einrichtungen der Pumpstation mit Turbinen für das Wupperwasser und der Hochdruckturbinen für das Wasser ausdem Sammelbecken des Sengbachthales nebst Pumpen und Dynamomaschinen für elektrische Kraftübertragung nach Solingen. Das Nutzgefälle
beträgt 3,70 bis
5,20 m, die Turbinen machen 100 Touren für elektrischen Antrieb und 60 Touren in der Minute für Pumpenantrieb, der
Pumpenhub beträgt 0,725 m. Die Turbinen mit stehender Welle treiben 300pferdige Generatordynamos an. Beachtenswert ist, dass
bei dieser Anlage ein dreifaches 300pferdiges Pelton-Rad für Pumpenbetrieb, 180 Umdrehungen in der Minute, und ein zweifaches
200pferdiges Pelton-Rad für elektrischen Betrieb Aufstellung gefunden haben, die mit 40 bis 60 m Druck des Sengbachbeckens
arbeiten. Die Jonval-Turbinen mit 2,40 m äusserem Durchmesser erhielten für den Leitschaufelkranz einen entsprechenden Aufsatz
zur Anbringung einer Ringschütze.
II. Kraftanlage Lend-Gastein, Lageplan, Längen- und Querprofil. Turbinen- und Dynamoanlage für 7500 PS, bestehend in: Fünf Hochdruckturbinen für je
780 l in der Sekunde, bei 96 m Gefälle, Tourenzahl 150 in der Minute, Nutzleistung pro Maschineneinheit 750 PS. Ferner
vier Hochdruckturbinen für je 1200 l in der Sekunde bei gleichem Gefalle, Tourenzahl 525 in der Minute, Nutzleistung 1150
PS. Die genehmigte grösste Triebwassermenge für den Stollen der Gasteiner Aache beträgt
8 cbm in der Sekunde. Die Wasserzuführung erfolgt durch eiserne Rohrleitung. Die Turbinen sind nach System Girard mit stehender Welle durch Escher, Wyss und de. in Zürich geliefert, die Anlage wurde 1897 bis 1898 ausgebaut und ist seit 1899 für die Aluminium-Industrie-A.-G. Neuhausen in Betrieb.
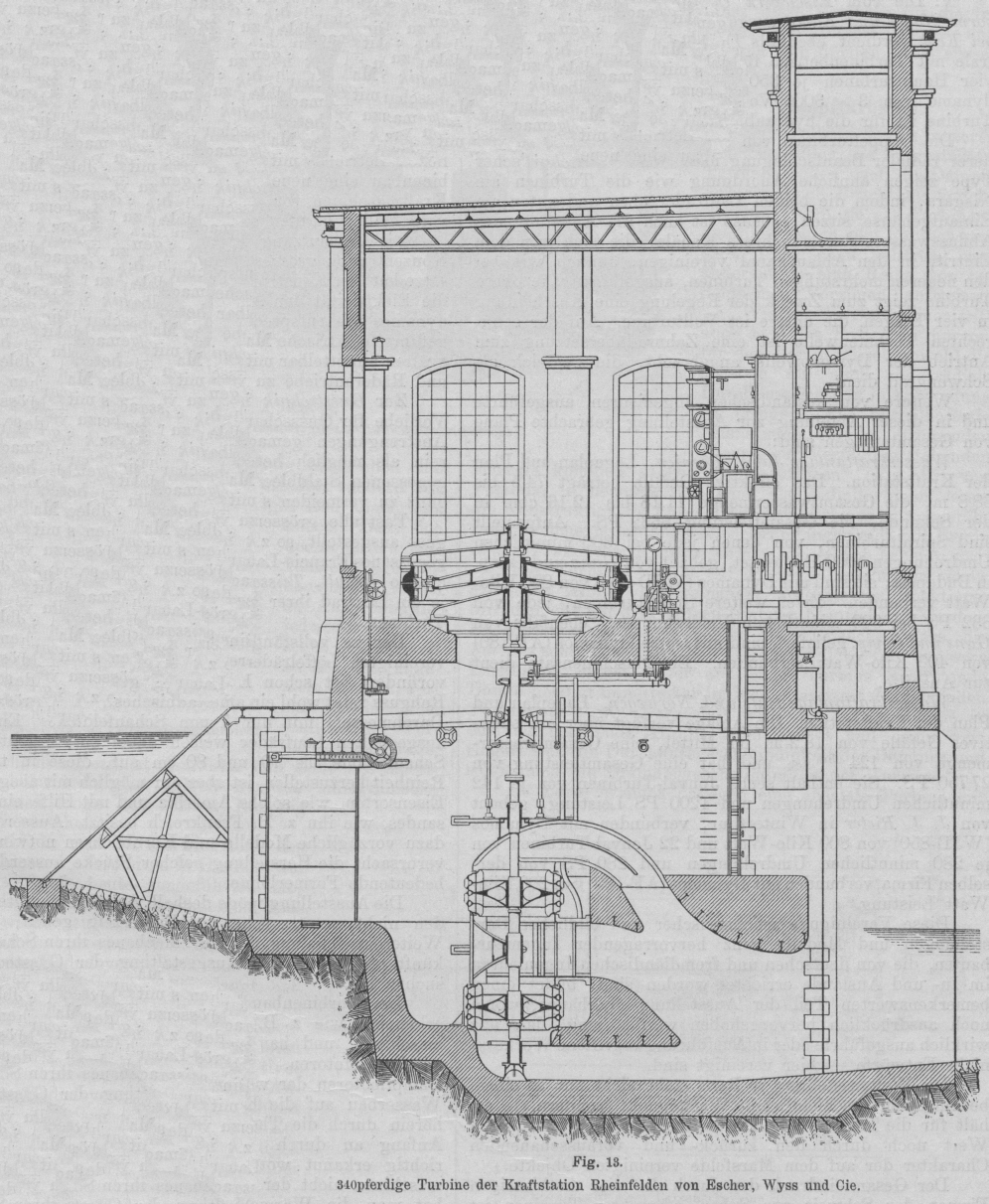
III. Kraftübertragungsanlage Rheinfelden. Die Kraftübertragungswerke zu Rheinfelden haben den Zweck, die Wasserkräfte des Rheines nutzbar zu machen und mittels Elektrizität
industriellen und gewerblichen Unternehmungen auf einem Umkreis von rund 25 km zur Verfügung zu stellen. Hierzu wurde der
Rhein in seiner ganzen Breite durch ein Grundwehr abgedämmt und die verfügbaren Wassermassen durch einen Oberkanal nach der
Zentrale geleitet, wo 20 Turbinen für eine Leistung von je 840 PS aufgestellt sind. Die Turbinen sind als Reaktions-Francis-Turbinen,
Patent Escher, Wyss und Cie., mit radialem Wasserdurchfluss gebaut: Radialturbinen mit Wasserzuführung von aussen (Fig. 13). Jede derselben besteht aus zwei Paaren gleicher Turbinenräder von 2350 mm Durchmesser und 1240 mm Höhe. Die einzelnen Räder
sind dabei vierkränzig, jedes Laufrad ist mit einer vollen Nabe versehen, so dass immer zwei Kränze nach oben und zwei nach
unten ausgiessen müssen. Die Turbinen werden durch Ringgitterschieber, die gehoben oder gesenkt werden, geregelt und zwar
genügt eine Hebung von 150 mm, um die Schieber voll zu öffnen. Die unteren Turbinenräder besitzen vierfache Schieber, die
im ganzen geöffnet oder geschlossen werden, da diese bei allen Gefällsverhältnissen voll laufen müssen. Die oberen Turbinenräder
hingegen sind mit zwei einfachen, voneinander unabhängigen Ringgitterschiebern versehen. Bei höherem Gefälle reicht die Beaufschlagung
der vier Kränze der unteren Räder zum Betriebe völlig aus. Die oberen bleiben dann vollständig geschlossen. Sinkt das Gefälle
und nimmt demzufolge die Wassermenge zu, so werden zunächst die beiden unteren Kränze der oberen Turbine und bei weiterer
Abnahme des Gefälles auch die beiden oberen Turbinenkränze geöffnet, so dass die ganze Turbinenanordnung beaufschlagt wird.
Jede Turbine ist mit einer Dynamomaschine dergestaltgekuppelt, dass auf der senkrechten Turbinenwelle sich unmittelbar der Anker der Dynamo befindet. Von den 20 im Maschinenhaus
befindlichen Turbinendynamos erzeugen 12 Stück Gleichstrom für elektrochemische Zwecke, der in mehreren unmittelbar neben
der Zentrale gelegenen elektrochemischen Werken Verwendung findet. Die übrigen acht Dynamos erzeugen Drehstrom mit einer Spannung
von 6800 Volt, der die erforderliche Energie für Licht- und Kraftzwecke liefert.
Textabbildung Bd. 315, S. 671
Fig. 13.340pferdige Turbine der Kraftstation Rheinfelden von Escher, Wyss und Cie.
IV. Thalsperre im Urfthale unterhalb Gemünd i/Eifel und Kraftanlage bei Heimbach a/Ruhr für Hochdruckturbinen vorläufig von zusammen 10000 PS, sowie für einen Druck von 71 bis 107 m Wassersäule. Zusammenhang der
Kraftstation bei Heimbach a. d. Ruhr durch Druckrohrleitungen und durch einen Druckstollen von 3000 m Länge mit dem Stauwasser
des Sammelbeckens bei Gemünd.
Zur Erzeugung von 10000 PS sind acht Hochdruckturbinen von je 1250 PS vorgesehen, als vorläufig angenommene zeitweise erforderliche
Maximalleistung.
Die mittlere Leistung soll 6400 PS in 7200 Arbeitsstunden pro Jahr betragen. Das Kraftwasser wird aus einem Sammelbecken im Urfthale bei Gemünd, 45 ½ Millionen Kubikmeter Stau enthaltend, bei einem Niederschlagsgebiet von 375
km entnommen.
Das Motorengebäude ist für sechs grosse, zwei mittlere und eine kleine Turbine angelegt. Der Betriebsdruck in den Turbinen
schwankt zwischen 71 m bei leerem und
107,5 m bei vollem Becken. Für die Zuleitung des Kraftwassers sind Stahlblechrohre von 1,50 m Weite verwendet.
V. Die vom Eisenwerk Uhlenhorst, A.-G. Hamburg, vorm. Nagel und Kamp ausgeführte Anlage im Rheinhafen bei Kehl verdient ebenfalls Erwähnung: Elektrische Zentrale mit Turbinenbetrieb für 2,380 m Gefälle. Leistung: vier Hauptturbinen
je 350 PS, welche vier Drehstromdynamo von 3 × 3000 Volt Spannung antreiben. Eine Turbine ist für die hydraulische Regelung
vorgesehen.
Die Doppelturbinen von 3,10 m Durchmesser mit innerer radialer Beaufschlagung nach bekannter Nagel'scher Type zeigen ähnliche Anordnung wie die Turbinen am Niagara, indem die beiden Laufräder oben und unten am Einlaufgehäuse
sitzen, ebenso ist auch die Ableitung des Abflusswassers durch mehrere Kanäle, die sich vor dem Eintritt in den Ablaufkanal
vereinigen, ähnlich wie bei den neueren mehrstufigen Turbinen, ausgeführt. Die obere Turbine zeigt zum Zweck der Regelung
eine Abscheidung in vier Etagen, die untere ist Vollturbine. Auf der senkrechten Turbinenwelle ist eine Zahnradübersetzung
zum Antrieb der Dynamo welle angebracht, die zugleich als Schwungrad dient.
Weitere von ausländischen Ingenieuren ausgeführte und in dieser Abteilung zur Ausstellung gebrachte Pläne von Gesamtanlagen
sind:
Wasserkraftanlage Jaice, Bosnien. Lageplan und Plan der Kraftstation. Das effektive Gefälle beträgt 74,5 bis 68,8 m, die Gesamtwassermenge
11,18 bis 12,16 cbm in der Sekunde, die Gesamtleistung 8632 PS. Aufgestellt sind Spiralturbinen, von denen jede bei
300 minutlichen Umdrehungen 1000 PS leistet, gebaut von Ganz und Comp. in Budapest; sie sind mit Dynamos (WJD-800) von 800 Kilo-Watt verbunden. Zwei weitere Spiralturbinen, jede von
632 PS bei 300 minutlichen Umdrehungen, ebenfalls von Ganz und Comp. geliefert, sind mit Doppeldynamos (AF-180) von 400 Kilo-Watt verbunden. Ein Maschinensatz dient zur Aushilfe.
Wasserkraftanlage Hafslund, Norwegen. Lageplan und Plan der Kraftstation. Die Anlage verfügt über ein effektives Gefälle von 18,2 m im Mittel, eine Gesamtwassermenge
von 124 cbm/Sek. und hat eine Gesamtleistung von 27750 PS. Sie enthält sechs Jonval-Turbinen von je 142 minutlichen Umdrehungen und 1200 PS
Leistung, gebaut von J. J. Rieter in Winterthur, verbunden mit Dynamos (WJD-850) von 800 Kilo-Watt und 22 Jonval-Turbinen von je 280 minutlichen Umdrehungen
und 280 PS von derselben Firma, verbunden mit Dynamos
(AF-180) von 200 Kilo-Watt Leistung.
Diese Vereinigung zeichnerischer und bildlicher Darstellungen und Modelle ganz hervorragender Ingenieurbauten, die von deutschen
und fremdländischen Ingenieuren im In- und Auslande errichtet worden sind, bildet einen bemerkenswerten Teil der Ausstellung
überhaupt, wobei noch ausdrücklich hervorgehoben werden mag, dass nur wirklich ausgeführte oder in Ausführung begriffene Werke
– nicht Entwürfe – hier vereinigt sind.
Die Weltausstellung in Paris steht nicht nur an einem bedeutsamen geschichtlichen Wendepunkt, sondern sie erhält für die Technik
der Kraftmaschinen einen besonderen Wert noch durch den zurück- und vorausschauenden Charakter der auf dem Marsfelde vereinigten
Objekte.
Der Gesamteindruck der durch die vier erstklassigen Firmen der Schweiz zur Schau gebrachten Turbinen ist wirklich ein vorzüglicher
und ohne jede Einschränkung muss der Besucher derselben dem schweizerischen Gewerbefleiss und seiner hochentwickelten Industrie
das Zeugnis ausstellen, dass beide auf der Höhe der Zeit stehen und, sowohl in Bezug auf Gesamtanordnung, technische Ausführung
und Durchbildung der Einzelheiten, wie Solidität und Formvollendung der Erzeugnisse die Konkurrenz auf dem Weltmarkt nicht
zu scheuen brauchen.
Die achsiale Jonval-Turbine ist gänzlich verschwunden,überhaupt finden sich achsiale Turbinen (Fontaine, Girard) nur noch bei einigen französischen Werkstätten vor.
Ferner ist zu beobachten, dass die einzelnen Laufräder selten mehrere Schaufelkränze bekommen, und dass mehrfache Turbinen
auf einer Achse vereinigt, bevorzugt werden, weil man eben durch die Beschaufelung trotz aller Annäherung eine Uebereinstimmung
der Wasser- und Radgeschwindigkeiten bei mehreren ineinander gelegten Schaufelkränzen praktisch nicht vollständig erreicht.
In Zapfenkonstruktionen ist wesentlich Neues nicht zu bemerken mit Ausnahme der Zapfenentlastungen durch Oeldruck und der
Zapfenkühlung durch Wasserzirkulation (Rieter).
Wie der Dampfmaschinenbau in der Ausnutzung des Dampfes bedeutende Fortschritte zeigt und unausgesetzt Verbesserungen zur
Erreichung des höchsten wirtschaftlichen Betriebes aufweist, so bereitet sich auch im Turbinenbau eine neue Aera in der Vervollkommnung
dieser Kraftmaschinen vor, und hierzu dürfte das Radialsystem vornehmlich berufen sein.
Die Ausnutzung bedeutender Wasserkräfte und die Konzentration grosser Leistungen der einzelnen Maschinensätze hat den Konstrukteuren
neue Aufgaben gestellt, wozu die Elektrizität den Anstoss gab. Der Bau von Generatordynamos mit entsprechend grossem Durchmesser
hat dazu geführt, elektrische Maschinen von 1000 und mehr Pferdekräften unmittelbar mit den Turbinenspindeln zu verbinden,
und Räderantriebe zu vermeiden.
Zur Gusstechnik ist zu bemerken, dass wieder mehr Vorliebe für Gusschaufeln zu bestehen scheint, indem alle Anstrengungen gemacht werden,
dieselben so dünn und rein als möglich herzustellen, da Lockerungen der eingegossenen Stahlblechschaufeln bei hohen Gefällen
selten ganz zu vermeiden sind.
Fast alle grösseren Firmen haben Laufräder in Rohguss ausgestellt, so z.B. Escher, Wyss und Cie. ein sauber gegossenes Francis-Laufrad von beträchtlichen Abmessungen, ebenso Brault, Teisset und Chapron und Singruen Frères je ein Laufrad ihrer grössten Nummer der amerikanischen Turbinen.
Der zu vollständigen Reihen in aufsteigender Grösse vereinigten Löffelräder, die sich fast bei allen Ausstellern vorfinden,
ist schon Erwähnung geschehen. Den besten Rohguss zeigt wohl ein amerikanisches Laufrad (22 Zoll engl. Durchmesser) mit nur
7 mm Schaufeldicke. Einige der ausgestellten Laufräder weisen dabei eine beachtenswerte Schaufelhöhe bis 70 und 80 cm auf,
diese in tadelloser Reinheit herzustellen, ist aber nur möglich mit ausgesuchten Eisensorten, wie solche Amerika und mit Hilfe
eines Gussandes, wie ihn z.B. Frankreich besitzt. Ausserdem sind dazu vorzügliche Modelle und Kernbüchsen notwendig und verursacht
die Herstellung solcher Stücke ausserdem noch bedeutende Formerlöhne.
Die Ausstellung möge deshalb für die beteiligten Kreise den nicht zu übersehenden Fingerzeig geben, dass die Weiterentwickelung
des Turbinenbaues ihren Schwerpunkt künftig auch in der Ausgestaltung der Gusstechnik zu suchen hat.
Der Turbinenbau lässt ähnliche Entwickelungsphasen erkennen, wie z.B. der Bau von Dampf- und Gaskraftmaschinen, und hauptsächlich
derjenige von elektrodynamischen Motoren. Nur besteht zwischen Wasser- und Dampfmotoren der wesentliche Unterschied, dass
man im Wasserbau auf die Konstruktion der Turbine von vornherein durch die Theorie hingeführt wurde, welche von Anfang an
durch wissenschaftlich gebildete Fachleute richtig erkannt worden war, während dies bei Dampfmaschinen nicht der Fall ist.
Erst Mitte der 70 er Jahre hat man die Wärmelehre eingehend erforscht, wodurch der Bau der Dampfmaschine erst etwa ein Jahrzehnt
später zufolge der durch die Elektrizität gestellten neuen Aufgaben eine rapide Entwickelung annahm; Die theoretische Begründung
der Wirkungsweise des Dampfes hinkte somit der Praxis nach und ist heute noch nicht als abgeschlossen zu betrachten, während
umgekehrt für die Konstruktion der Turbinen wissenschaftliche Erwägungen von Anfang an die Grundlage beim Bau dieser Motoren
bildeten.
Trotz theoretischer Durchdringung des Gegenstandes ist der Turbinenbau heute noch bei Ausführungen für aussergewöhnliche Verhältnisse auf das Experiment angewiesen. Riva in Mailand probierte für die Kraftstation in Paderno zuerst mehrere Laufräder auf den höchsten Nutzeffekt aus, um danach
die Turbinen für diese Anlage zu bauen. Piccard und Pictet in Genf sind bei dem Entwurf für die zweite Serie 5000pferdiger Niagaraturbinen von der früheren Konstruktion insofern abgewichen,
als sie die Wasserzuführung nicht mehr gabelförmig nach oben und unten für zwei getrennt arbeitende Laufräder, sondern von
unten nach oben für ein doppelkränziges Rad angeordnet haben. Dass sich der moderne amerikanische Turbinenbau ausschliesslich auf Ausprobierung jedweder
praktischen Möglichkeit stützt, ist allgemein bekannt; dort sind Turbinen aus schliesslich Versuchsgegenstände. Diese Methode
beherrscht Charakter und Ziele des amerikanischen Turbinenbaues. Doch konnten amerikanische Turbinen sich lange nur schwer
Eingang in Europa verschaffen.
Textabbildung Bd. 315, S. 673
Fig. 14.500 K.-W.-Turbo-Alternateur, System Brown-Boveri-Parsons.
Textabbildung Bd. 315, S. 673
Fig. 15.Schema der Schaufelung an Parsons Dampfturbinen.
Ueberblickt man die Entwickelung des Turbinenbaues, insbesondere in Hinsicht auf die stärksten bis heute ausgeführten Motoren,
so ist man geneigt anzunehmen, dass derselbe wieder auf seine Anfangsstadien, auf die Ideen Fourneyrori's zurückgreift, d.h. dass das Radialsystem aufs neue starke Beachtung und Weiterbildung erlangt hat, was bestätigt, dass der
geniale Erfinder von Besançon das Wesen der Turbinen im Kernpunkte erfasst hatte. Bei seinem ersten Entwurf begegnet man schon
konstruktiver Ausgestaltung der Einzelheiten für die Anforderungen des Betriebes: Zugänglichkeit zum Laufrad, hohe Tourenzahl,
leichte Kegelfähigkeit, somit schon allen denjenigen Eigenschaften, die man heute von einer guten Turbine verlangt.
Der Entwickelungsgang des hier behandelten Maschinensystems wäre nur durch Anstellung umfassender Bremsversuche und Ermittelung
weiterer Erfahrungskoeffizienten, sowie Ausprobierung jeder Variation der verschiedenen Bauarten zu fördern. Die Umsicht und
Sorgfalt, mit welcher diese Versuche auszuführen sind, verlangen jedoch eine mit allen Hilfsmitteln der modernen Messkunst
ausgerüstete hydraulische Versuchsanstalt grossen Stils, um sichere Schlüsse auf den Wert oder Unwert von Turbinen zu ziehen. Hierdurch wäre auch die Möglichkeitgeboten, Konstruktionsänderungen auf den Erfolg zu prüfen und zu verhüten, dass Turbinen zur Versendung gelangen, für welche
der Besteller das Lehrgeld zu bezahlen hat.
Hand in Hand damit hätte die Vervollkommnung der Methode zur Ermittelung der verbrauchten Wassermenge zu gehen, weil hierin
noch immer der schwächste Punkt der Leistungsuntersuchungen von Wassermotoren liegt.
Dass diese Versuche für die Industrie von grossem Interesse und Nutzen sein dürften, steht ausser Frage.
Dampfturbinen.
Zur Vollständigkeit unserer Uebersicht über die ausgestellten Turbinen sollen auch die Dampfturbinen noch Beachtung finden,
einesteils, weil sie als Turbinenanordnungen in den Rahmen unserer Ueberschau gehören, und anderenteils eine Reihe von bedeutsamen
Vorzügen aufweisen. Wie bei Wasserturbinen tritt auch hier das Bestreben hervor, für den Dampfbetrieb sowohl die achsiale
als auch die radiale Durchflussrichtung in Anwendung zu bringen. Für vorteilhafteste Ausnutzung der im strömenden Dampfe zur
Verfügung stehenden Energie kommen sogen.
„Stufenturbinen“ (Fig. 15) von Parsons, in neuester Zeit auch als Radialturbinen, sowie die Konstruktion de Laval als Achsialturbinen zur Ausführung, welche bedeutungsvollen Erfindungen sich mit Erfolg in die Praxis der Kraftmaschinen
eingeführt haben.
Die Turbine von C. A. Parsons besteht aus einer grösseren Anzahl hintereinander aufgestellter Reaktionsturbinen, die auf dem ganzen Umfang beaufschlagt
werden. Es ergibt sich daraus sofort die Thatsache, dass die Parsons'sche Turbine sich hauptsächlich für grössere Leistungen eignet. Der aus einer Turbine austretende Dampf gelangt unmittelbar
in den Leitapparat der folgenden Turbine u.s.w. Dergestalt wird das totale Gefälle in eine entsprechende Anzahl Teile zerlegt
und damit verringert sich die Durchflussgeschwindigkeit des Dampfes und somit auch die Umfangsgeschwindigkeit der Turbine.
Textabbildung Bd. 315, S. 673
Fig. 16.Längenschnitt einer Parsons-Turbine.
De Laval wendet dagegen eine achsiale Turbine mit einem Schaufelkranze an, der Leitapparat derselben besteht aus mehreren Düsen von
kreisförmigem Querschnitt.
Auf der Pariser Ausstellung sind sowohl die de Laval'sche (Fig. 17 bis 19) als auch die Parsons'sche Turbine (Fig. 14 und 16) in mehreren Exemplaren vertreten und zum Teil in Betrieb zu sehen, die erstere in der französischen und in der schwedischen
Abteilung, die zweite in der englischen und in der schweizerischen Abteilung.
Seit Jahren sucht man das Problem der einfachen rotierenden Dampfmaschine zu lösen, welche besonders zur direkten Kuppelung an Dynamomaschinen, Pumpen, Gebläse und derartige
umlaufende Maschinen, die grosse Geschwindigkeit verlangen, konstruiert wurde. Der unmittelbare Antrieb wird deshalb bevorzugt,
weil ein zwischengeschalteter Riemen immer schlägt.
Die kleinen Dimensionen, das geringe Gewicht und der stossfreie Gang sind in vielen Fällen ausschlaggebend für die Bevorzugung
dieses Maschinensystems. Da der Dampfverbrauch ebenso sparsam als jener der besten Kolbendampfmaschinen von gleicher Kraftleistung
unter gleichen Betriebsverhältnissen, auch bei geringer Belastung ein hoher Nutzeffekt vorhanden ist, so ist es erklärlich,
dass innerhalb weniger Jahre die Dampfturbinen eine grosse Verbreitung und vielseitige Anwendung finden konnten, gewiss ein
Merkmal ihrer vorteilhaften Eigenschaften.
Textabbildung Bd. 315, S. 674
Fig. 17.30pferdiger Dampfturbinenmotor, System de Laval.
Für die Dampfturbinen haben sich nur wenige Aussteller eingefunden:
Société de Laval in Paris, Brady in Chicago, Frues, Alexander in Nicolaistadt (Finnland), Akticbolaget de Lavals Angturbin in Stockholm, Ekermann, C. F., und Liedbeck in Stockholm, Maison Brequet in Paris, A.-G. für Dampfturbinen, System Brown-Boveri-Parsons in Baden (Schweiz), unter denen die Akticbolaget de Laval in Stockholm und Brown-Boveri-Parsons in Baden die hervorragendsten sind.
Erstere sind durch eine besondere Gruppe vertreten, enthaltend:
1. Dampfturbinenpumpe, Type KKP:
Leistung 2800000 l Wasser pro Stunde bei 7 m Förderhöhe,
Gewicht 6530 kg,
Aeussere Dimensionen (die Röhren nicht inbegriffen):
Länge
4300
mm
Breite
2130
„
Höhe
1400
„
2. Dampfturbinendynamo, Type β D:
Leistung 4600 Watt,
Gewicht 380 kg,
Aeussere Dimensionen:
Länge
1460
mm
Breite
420
„
Höhe
575
„
3. Dampfturbinengebläse, Type AF:
Leistung 1600 cbm Luft pro Stunde bei 250 mm Wassersäulendruck,
Gewicht 224 kg,
Aeussere Dimensionen:
Länge
1310
mm
Breite
750
„
Höhe
775
„
4. Dampfturbinendynamo, Type DDZ:
Leistung 9900 Watt.
Diese Maschine ist seit Februar 1893 im Gotenburger Wasserwerk ununterbrochen in täglichem Betrieb gewesen, ohne dass irgend
welche der ursprünglichen Teile ausgetauscht oder repariert worden sind.
Der fünfte Ausstellungsgegenstand: Apparat zur Demonstrierung der Eigenschaften der federnden Turbinenwelle zieht das Interesse des Fachmannes auf sich.
Die grosse Tourenzahl des Turbinenrades ist dadurch ermöglicht, dass die Turbinenwelle federnd gemacht worden ist. Zufolge
dieser Anordnung hören alle heftigen Vibrationen auf, sobald die sogen. kritische Geschwindigkeit überschritten wird, und die Lager werden so nicht der
Gefahr des Heisslaufens ausgesetzt. Zugleich wird der Gang der ganzen Maschine ruhig und geräuschlos.
Die kritische Umdrehungszahl stimmt mit der Vibrationszahl der Welle überein, wenn sie, ohne zu rotieren, nebst dem Turbinenrade
frei hin und her oscillieren darf, nur von ihrer eigenen Federkraft beeinflusst. Diese Vibrationszahl wird durch nachstehende
Formel bestimmt:
n_0=300\,\sqrt{\frac{P}{Q}}
P = Federkraft der Welle bei 1 cm Federung,
Q = Gewicht des Turbinenrades in Kilogramm.
(Das Gewicht der Welle ist in obenstehender Formel nicht in Betracht genommen.) Die Welle mit dem Rotator in dem ausgestellten
Demonstrationsapparat hat ihre kritische Geschwindigkeit bei etwa 2000 Umdrehungen in der Minute, was 21 Umdrehungen in der
Minute an der Handkurbel entspricht. Besonders hervorzuheben ist die plötzliche Abnahme des Drehungswiderstandes in dem Augenblicke,
wo die kritische Geschwindigkeit überschritten wird. Dies hat seinen Grund in dem Aufhören der Vibrationen und der Abnahme
der Lagerreibung.
Im Betriebe befinden sich Laval'sche Dampfturbinen in der französischen Abteilung, teilweise zur Erzeugung von elektrischem Licht, teilweise für Pumpenbetrieb
bei der Société de Laval in Paris, ferner in der Ausstellung des „Maison Brequet“ in Paris, und bei der Wasserpumpstation der „Compagnie Worthinglon“.
Die Dampfturbine ist kein unreifes Experiment, sondern eine seit einer Reihe von Jahren in der Praxis erprobte Maschine, welche
sich in fast allen Ländern Europas, sowie auch in überseeischen Ländern schon in zahlreichen Exemplaren im Betrieb befindet.
Bis Ende März 1900 hat z.B. die Akticbolaget de Lavals Angturbin in Stockholm 2200 Maschinen mit einer Gesamtleistung von
65000 PS aufgestellt.
Textabbildung Bd. 315, S. 674
Fig. 18.Dampfturbinenhochdruckpumpe, System de Laval.
Laval baut seine Turbinen bis jetzt in Stärken bis 300 PS, macht aber gegenwärtig Versuche mit Modellen bis 600 PS, während nach
Parsons' System schon Turbinen bis 3000 PS ausgeführt sind. Es scheint somit, dass für massige Kraft die Laval-Turbine und für grosse
Leistungen Parsons-Turbinen zu empfehlen sind. Beide Systeme arbeiten mit Kondensation, was wirtschaftlicher ist. Die Laval'schen Turbinen machen einen maschinenmässigeren Eindruck als diejenigen von Parsons, sind konstruktiv mehr durchgebildet, Parsons-Maschinen sind bei der gleichen Leistung grösser und schwerer als diejenigen
von Laval, laufen aber langsamer. Durch Parsons'sche Turbinen ist die Lösung des Problems der rotierenden Dampfmaschine insbesondere für grosse Maschineneinheiten anscheinend
gelungen. Ausführungen in Grössen bis zu 5000 PS sollen bereits die praktischen Proben ihrer Leistungsfähigkeit bestanden
haben, und eingehende Versuche ergaben, dass mit diesen Maschinen ein ebenso geringer Dampf verbrauch als mit den gebräuchlichen
langsam laufenden Präzisionsdampfmaschinen erzielt wird. Aber abgesehen von ihrem geringen Dampfverbrauch zeichnet sich die
Dampfturbine durch ihre ausserordentliche Einfachheit, die dadurch bedingte grosse Betriebssicherheit und leichte Reparaturfähigkeit,
durch den geringen Platzbedarf und den Wegfall schwerer Fundamente aus. Der Bedarf an Schmieröl reduziert sich auf ungefähr
den zehnten Teil desjenigen einer gleich grossen Dampfmaschine und das Kondensat bleibt ganz frei von Verunreinigungen durch
Oel.
Textabbildung Bd. 315, S. 675
Fig. 19.Grosse Dampfturbine, System de Laval.
In Verbindung mit einer Dynamo stellt die Turbodynamo die denkbar einfachste und vollkommenste Verbindung einer Dampfmaschine
mit einer elektrischen Maschine dar. In der Zentrale der Stadt Elberfeld gelangten bereits zwei solcher Parsons-Turbodynamos
von je 2000 PS und für Wechselstrom von 4000 Volt Spannung zur AufstellungZeitschrift des Vereins deutscher Ingenieure, 1900..
Nach dem von den Sachverständigen W. H. Lindley, Prof. M. Schröter und Dr. H. F. Weber erstatteten Bericht sind die Vertragsbestimmungen, dass jeder Maschinensatz eine Nutzleistung von 1000 Kilo-Watt bei 4000
Volt und 50 vollen Perioden in der Sekunde aufweist, und zwar gemessen bei induktiver Belastung mit einer Phasenverschiebung
bis herab zu cos φ = 0,8, nicht nur erfüllt; sondern wesentlich überschritten worden. Die Turbine selbst leistete bei vollem Dampfdruck von
11 at absolut 1300 bis 1400 Kilo-Watt. Nach den Versuchen hat der elektrische Regulator bei Belastungsänderungen, welche zwischen
12 und 62 % schwankten, die Umlaufszahl und damit die Spannung derart geregelt, dass die mittlere Aenderung der letzteren
1,1 % der Ausgangsspannung betragen hat. In Bezug auf den Dampf verbrauch ergab sich, dass die Kurve des zugesicherten Dampfverbrauches
von jener nach den Messungen bei rund 370 Kilo-Watt gekreuzt wird, und dass demnach der Verbrauch über dieser Leistung kleiner
als zugesichert, unter dieser Leistung grösser als zugesichert ausgefallen ist. Da indessen die Dampfturbinen weitaus überwiegend
mit hoher Belastung und selten mit weniger als ⅓ der normalen Belastung beansprucht werden, gleichen die besseren Ergebnisse
bei höheren Belastungen die Minderleistungen bei den geringen Belastungen und beim Leerlauf mehr als völlig aus.
Der ausgestellte Parsons'sche 500 Kilo-Watt-Turbo-Alternateur, dessen Gewicht 18 t und beanspruchten Raum 25' × 6'4''
(engl.), soll bei 5000 Kilo-Watt 10 kg per Kilo-Watt-Stunde Dampfverbrauch haben und bei einer Maschine von 1500
Kilo-Watt soll derselbe 8 kg per Kilo-Watt-Stunde betragen.
* * *
Am Ziele unseres Rundganges angelangt, könnte es auf den ersten Blick erscheinen, als ob der Turbinenbau den mächtigen und
prächtig aufgebauten Dampfmaschinen gegenüber an Zahl und Umfang der ausgestellten Objekte etwas zurückstehe. Zieht man jedoch
in Betracht, dass von einigen Maschinenfabriken Turbinen von 1000 und mehr Pferdekräften vorgeführt sind und bringt die Effektsumme
aller in Gruppe IV Klasse
20 vereinigten Wassermotoren mit derjenigen der ausgestellten Dampfmaschinen in Vergleich, so ergibt sich, dass die
Turbinengesamtleistung derjenigen der Dampfmotoren ebenbürtig ist.
Gerade dadurch, dass bei den Turbinen mit einfachen Mitteln und wenig Materialaufwand ganz enorme Kraftleistungen erzielt
werden, treten diese Maschinen gegenüber den vielgliederigen Zurüstungen der Dampfmotoren bescheidener in die Erscheinung.